2023年, 第44卷, 第S2期 刊出日期:2023-11-10
  

  • 全选
    |
    结构抗震及减隔震专题
  • 宁鹏, 吴涛, 陶忠, 高永林, 苏何先
    建筑结构学报. 2023, 44(S2): 1-10. https://doi.org/10.14006/j.jzjgxb.2023.S2.0001
    摘要 ( ) PDF全文 ( )   可视化   收藏
    为验证剪切型阻尼器对穿斗式木结构建筑的增强加固效果,将16个扇形剪切型阻尼器安装在穿斗式木结构四角柱榫卯节点处,分别对原结构(无控结构)模型和安装有阻尼器的结构(有控结构)模型进行峰值加速度由0.14g逐步增大至0.95g(9度多遇~9度极罕遇)的地震波激励振动台试验。对试验模型动力特性和地震响应对比分析结果表明:有控结构模型始终保持弹性状态,结构模型X向自振频率仅在输入峰值加速度0.95g地震波激励后出现下降,由1.907 Hz降为1.587 Hz,Y向自振频率始终保持3.052 Hz;Y向阻尼器发挥作用更为明显,对刚度较小部位以提供附加刚度为主,对刚度较大部位以提供附加阻尼为主,有控结构模型最小动力放大系数大于无控结构模型的,其最大动力放大系数均小于无控结构模型的;最大层间位移角均发生在Kobe波激励下结构二层层间,有控结构模型最大层间位移角大部分小于无控结构模型的;扇形剪切型阻尼器作为9度高抗震设防烈度区穿斗式木结构建筑增强加固措施是适宜的。
  • 董孝曜, 郭迅, 罗若帆, 张钦哲, 张俊, 董策, 王波
    建筑结构学报. 2023, 44(S2): 11-19. https://doi.org/10.14006/j.jzjgxb.2023.S2.0002
    摘要 ( ) PDF全文 ( )   可视化   收藏
    框架结构以其优良的抗震性能被大量应用于实际工程中,但2008年汶川地震后,框架结构暴露出强柱弱梁破坏模式未出现,而发生节点剪切破坏等诸多问题,且历次地震震害调查发现,框架结构发生不同程度破坏,而部分砌体结构保存完好。通过对四川省泸定县6.8级地震震害现场调查,选取四栋建筑阐述破坏现象,以框架、砌体两种不同结构体系予以对比,以“变形饱和”原理分析建筑破坏与完好的原因。结果表明:墙体会改变框架柱的受力变形特点,构件特性由弱延性变为强脆性,同楼层出现抗侧刚度差异较大的构件混搭,易达到结构倒塌触发位移,建筑发生破坏;虽砌体结构各轴为强脆性,但其表现为抗侧刚度分配均匀,不易达到结构倒塌触发位移,结构得以完好;“变形饱和”理论可以对建筑破坏提出合理解释,可用于指导建筑修建与既有建筑加固改造。
  • 崔玥, 杨娜
    建筑结构学报. 2023, 44(S2): 20-31. https://doi.org/10.14006/j.jzjgxb.2023.S2.0003
    摘要 ( ) PDF全文 ( )   可视化   收藏
    为提高对藏式山地古建筑研究的重视,科学评估目前藏式山地古建筑的抗震水平,分解藏式山地古建筑群为单个石木结构碉房单体,以普遍的石木碉房民居震害入手,收集2013年以来藏区所遭受的典型地震震害资料,总结石木结构的典型震害特征进行分类,并研究其震害形成机理。研究表明:碉房结构震害包括地基震害、石砌体平面外及平面内震害、木构架构件破坏和无法与石砌体协同作用震害等。根据现场调研,总结了藏式山地古建筑自身结构特征,并列举了与碉房构造的异同点,指出藏式山地古建筑的抗震薄弱位置,形成了藏式山地古建筑结构分析的简化力学模型。结果表明,由于建造位置的特殊性和普遍的藏式古建筑的构造特点,其具有墙底不等高约束、结构抗侧刚度突变、结构平面内刚度不均匀、结构鞭梢效应显著、结构扭转效应显著、土-结构相互作用等结构特征,需要着重对该类建筑进行保护性研究工作。
  • 张强, 刘文光, 何文福, 余维欣
    建筑结构学报. 2023, 44(S2): 32-40. https://doi.org/10.14006/j.jzjgxb.2023.S2.0004
    摘要 ( ) PDF全文 ( )   可视化   收藏
    针对云南省博物馆新馆大型复杂隔震结构,进行了地震观测和地震响应模拟分析。分别在博物馆基础、隔震层及顶层位置设置三向加速度传感器,并在隔震层设置位移记录仪。对2014—2015年间鲁甸、景谷和嵩明三次地震中记录到的实测加速度时程进行了地震动特性分析,并基于以上加速度时程对博物馆隔震结构进行了地震响应数值模拟分析。可知在实测地震波输入下隔震层及上部结构均处于弹性状态,数值模拟结果与实测地震动观测数据基本吻合,计算分析模型可准确反映实际结构的动力特性。将实测地震加速度时程进行放大,并基于放大加速度时程对博物馆隔震结构进行地震响应分析,结果表明:景谷地震作用下隔震结构X向层间剪力最大放大了60%、Y向层间剪力最大放大了70%,鲁甸地震作用下Y向层间剪力最大放大了90%,可知由于景谷地震和鲁甸地震的长周期特性,对于隔震结构不利;而在嵩明地震作用下隔震层与基底X向和Y向加速度比值分别为0.22和0.31,上部结构在罕遇地震下仍保持弹性,隔震效果显著。
  • 胡广杰, 叶昆
    建筑结构学报. 2023, 44(S2): 41-50. https://doi.org/10.14006/j.jzjgxb.2023.S2.0005
    摘要 ( ) PDF全文 ( )   可视化   收藏
    GB 18036—2015《中国地震动参数区划图》中规定中国目前最高的地震烈度为9度极罕遇地震,然而某些巨震反应谱甚至远超中国最高地震烈度对应的反应谱,为了应对巨震灾害,有必要发展巨震作用下更为有效的减震技术。为此,将调谐惯容阻尼器和负刚度弹簧结合,设计一种具备负刚度的调谐惯容阻尼器(TID_NS),研究基础隔震TID_NS结构的优化设计和抗震性能。考虑隔震层的非线性本构行为,采用随机线性化技术处理非线性项,并采用Clough-Penzien功率谱模型。将LRB基础隔震结构体系简化为两自由度体系,并在隔震层附加TID_NS结构,提出三种不同的优化策略,研究在不同附加负刚度比下不同优化策略对减震性能的影响。采用人工波和土耳其7.8级地震记录作为输入地震波,分别对隔震结构进行非线性时程分析,结果表明:附加负刚度的TID_NS结构可以同时降低上部结构层间位移、隔震层位移比和上部结构加速度,当附加负刚度比为-0.1时,TID_NS结构相对基础隔震结构可以降低结构动力响应约15%。
  • 鲁正, 高士凯, 周超杰, 张瑞甫
    建筑结构学报. 2023, 44(S2): 51-59. https://doi.org/10.14006/j.jzjgxb.2023.S2.0006
    摘要 ( ) PDF全文 ( )   可视化   收藏
    为减轻极罕遇地震(巨震)造成的危害,在GB 18036—2015《中国地震动参数区划图》中增加极罕遇地震作用,为此,有必要研究结构振动控制技术应对极罕遇地震灾害的有效性。依据20层非线性Benchmark结构,通过引入结构非线性损伤评价指标,定量研究颗粒惯容系统(particle inerter system,PIS)在极罕遇地震作用下对非线性多自由度结构的减震效果,阐释PIS的减震机制。研究表明:在地震激励作用下,PIS能够较好地抑制多自由度主体结构的震动,即均方根减震率均在24%以上;PIS能够有效减少主体结构产生塑性铰的数量,同时显著降低峰值节点曲屈率和构件塑性耗能,其中附加PIS的主体结构相较无控结构构件总塑性耗能均降低84%以上,表明PIS能够降低主体结构在极罕遇地震作用下进入塑性状态的程度,减少结构非线性损伤;进一步通过与颗粒调谐质量阻尼器的对比分析,发现PIS对主体结构动力响应具有更好的减震控制效果,结构顶层位移、加速度均方根响应的减震优势分别提高36.50%和20.13%。
  • 陆剑峰, 李祚华, 滕军
    建筑结构学报. 2023, 44(S2): 60-73. https://doi.org/10.14006/j.jzjgxb.2023.S2.0007
    摘要 ( ) PDF全文 ( )   可视化   收藏
    传统加权方法通常依据少量的结构损伤模式给出固定的加权系数,难以适用大量不同损伤模式下结构内力重分布时构件损伤加权关系的时变问题,而具有状态实时更新能力的网络方法理论上可以实现结构损伤后非线性内力重分布时内力传递的网络更新。为此,采用有向赋权复杂网络理论提出一种框架结构的地震损伤评价方法,基于构件之间传力方向建立有向复杂网络,再依据构件线刚度对有向复杂网络进行赋权,进而采用有向赋权复杂网络对结构传力路径进行定义,并明确网络最短传力路径,利用网络最短传力路径与结构抗侧刚度确定结构网络效率参数,通过地震前后结构网络效率的变化程度进行结构损伤评价,最后与传统损伤评价方法进行不同损伤模式下结构算例的对比验证。结果表明:所提出方法可反映地震下结构损伤程度的发展和损伤模式的变化,网络最短传力路径和结构网络效率具有可更新性,能够准确量化评价不同损伤模式的损伤程度,相比传统加权方法,结构损伤程度评价准确度提高约32%,有效解决了传统加权方法适用性差的问题。
  • 李祚华, 陆剑峰, 李仕豪, 滕军
    建筑结构学报. 2023, 44(S2): 74-84. https://doi.org/10.14006/j.jzjgxb.2023.S2.0008
    摘要 ( ) PDF全文 ( )   可视化   收藏
    构件不同的损伤次序、程度、分布及广度会形成结构不同的地震失效模式,并直接影响结构抗震韧性的损失程度和恢复快速性,传统的基于结构或楼层尺度的抗震韧性指标忽视了结构失效模式的构件尺度特征,未能建立结构失效模式与结构抗震韧性之间的内在联系。为此,依据反映结构失效模式特征的构件尺度,通过构件损伤加权法建立了结构抗震性能损失指标,不断更新构件修复过程中结构抗震性能和修复时间,并确定结构修复路径,进而提出了重建时间内结构抗震性能均值的抗震韧性指标。对RC框架结构5种不同失效模式算例进行抗震韧性分析,结果表明:随着地震峰值加速度的增大,上部楼层梁先屈服、下部楼层梁后屈服的失效模式下,结构抗震韧性下降最缓慢,薄弱层失效模式的结构抗震韧性下降最快;柱损伤前,各失效模式性能损失差异不大,柱损伤后,各失效模式性能损失开始出现显著差异;结构不可修复前,修复时间主要由梁损伤决定,损伤相对集中失效模式修复时间小于整体失效模式修复时间;先修柱后修梁的策略可进一步优化结构修复路径。
  • 鲁若帆, 张令心, 李行, 李宁
    建筑结构学报. 2023, 44(S2): 85-95. https://doi.org/10.14006/j.jzjgxb.2023.S2.0009
    摘要 ( ) PDF全文 ( )   可视化   收藏
    由大量实际震害调查和数值分析算例可知,砖砌体房屋层数越多,震害越严重。但也存在一些与之相反的现象,究其原因可能是构造柱设置的影响。为此,根据规范设计设置不同构造柱数量的不同层数砖砌体房屋,采用可考虑构造柱影响的砖砌体结构分析模型,对砖砌体房屋进行地震易损性分析,研究构造柱对砖砌体结构抗震性能的影响;同时,比较构造柱和墙厚对砖砌体结构抗震性能影响程度的差异。研究结果表明:对于设置构造柱的砖砌体结构,当地震强度较小时,结构主要由墙体承受地震作用;随着地震动强度的增加,构造柱逐渐发挥作用,特别是结构进入严重破坏和倒塌等状态时,设置构造柱极大地提高了结构的延性,防止结构倒塌;设置构造柱的砖砌体房屋的层数越多,其抗震性能越差,而构造柱设置可以使得有构造柱且层数较多的砖砌体房屋的抗震性能高于无构造柱且层数较少的砖砌体房屋,建议对层数较少的砖砌体房屋也适宜增设构造柱以保证较大地震作用下其抗震性能;当结构破坏程度较严重时,增设构造柱比增加墙厚对提高砖砌体结构的抗震性能更有效。
  • 王丛, 吕大刚
    建筑结构学报. 2023, 44(S2): 96-106. https://doi.org/10.14006/j.jzjgxb.2023.S2.0010
    摘要 ( ) PDF全文 ( )   可视化   收藏
    风险导向地震动的确定可以综合考虑场地的地震危险性和结构的地震易损性,实现一致倒塌风险。易损性函数和地震危险性函数对风险导向地震动的确定有重要影响,为此,依据不同的目标易损性和地震危险性函数对风险导向地震动决策进行研究。采用3种方法确定易损性曲线,包括易损性对数标准差和条件倒塌概率为定值、二者与设计地震动参数相关以及二者服从二元正态分布。分别采用线性的一阶近似和考虑曲率的二阶近似确定地震动区划图中Ⅱ类场地的地震危险性曲线。然后,依据上述易损性曲线和地震危险性曲线确定了风险导向地震动。在此基础上,对由3种易损性曲线确定的风险导向地震动进行了对比,并对依据一阶和二阶近似的地震危险性曲线确定的风险导向地震动进行了对比。研究表明:考虑易损性对数标准差和条件倒塌概率为定值以及二者服从二元正态分布确定易损性曲线得到的风险导向地震动相差很小(最大相差0.05%),与地震动区划图中的结果比较接近,明显高于考虑易损性对数标准差和条件倒塌概率与设计地震动参数相关确定易损性曲线得到的结果;依据一阶近似的地震危险性曲线确定的风险导向地震动比依据二阶近似得到的结果高约3%。
  • 尹世平, 曲烽豪, 王飞, 王博学
    建筑结构学报. 2023, 44(S2): 107-115. https://doi.org/10.14006/j.jzjgxb.2023.S2.0011
    摘要 ( ) PDF全文 ( )   可视化   收藏
    无筋砌体墙具有很强的脆弱性,在地震作用下容易发生破坏,但部分墙体在震后经过修复加固仍能继续承载。为研究纤维编织网增强混凝土(TRC)单面加固受损砖砌体墙的抗震性能,对3片TRC加固砌体墙和1片未加固砌体墙进行了低周往复试验,分析TRC单面加固砖砌体墙的破坏机制、滞回特性、位移延性和能量耗散。试验结果表明:TRC单面加固能够较好的约束受损墙体,改善墙体的脆性破坏特征,墙体裂缝宽度明显减小。TRC加固墙体的抗震性能得到不同程度的提高,相较于未加固墙体,未损伤单面TRC加固墙体、中度损伤单面TRC加固墙体和严重损伤单面TRC加固墙体的受剪承载力分别提高了23.4%、22.3%和13.5%;位移延性系数分别提高27%、7.5%和1.3%;耗散能量提高了78.2%、43.2%和7.1%。TRC单面加固对中度损伤墙体具有良好的加固效果,而对严重损伤墙体的加固效果有限。提出TRC加固构造柱约束砖砌体墙受剪承载力计算方法,计算值接近且低于试验值,未加固墙体、未损伤单面TRC加固墙体、中度损伤单面TRC加固墙体和严重损伤单面TRC加固墙体的受剪承载力计算值与试验值分别相差-0.1%、-4.7%、-12.0%和-14.0%。
  • 钢结构及组合结构
  • 赵昕, 杜冰洁, 王杨, 黄怡, 王钢, MORN Chornay
    建筑结构学报. 2023, 44(S2): 116-127. https://doi.org/10.14006/j.jzjgxb.2023.S2.0012
    摘要 ( ) PDF全文 ( )   可视化   收藏
    以全钢住宅结构塔楼为工程背景,提出基于敏感性分析的黏滞阻尼器关键参数及变量优化选型方法,结合现有研究与工程设计实际经验提出双激励黏滞阻尼减振设计方法,同时控制结构的风振及地震响应,以一高层钢结构塔楼为研究对象,验证该设计方法的有效性,并对结构进行集成优化设计,对双激励减振系统的经济性进行评价。研究结果表明:双激励黏滞阻尼减振系统可以同时有效控制风振及地震作用下的结构响应,提升结构的舒适性、刚度和承载性能,为主体结构提供附加阻尼比,可以通过集成优化设计调节结构构件及减振装置成本以获得最优工程总成本。
  • 李玥一, 丁然, 樊健生, 聂建国
    建筑结构学报. 2023, 44(S2): 128-138. https://doi.org/10.14006/j.jzjgxb.2023.S2.0013
    摘要 ( ) PDF全文 ( )   可视化   收藏
    为研究局部应用超高性能混凝土(ultra-high performance concrete,UHPC)的框架结构的抗震性能,以通用有限元软件MASC.MARC为平台,采用可考虑UHPC滞回本构的纤维梁单元,对1栋6层3×4跨UHPC-混凝土框架结构模型(简称“UHPC框架”)和1个钢筋混凝土框架对照模型(简称“RC框架”)进行非线性动力时程分析,研究结构在8度抗震设防烈度地震作用下的位移响应、最大层间位移角、塑性铰发展及材料应力应变等抗震性能。研究表明:UHPC框架表现出更好的变形性能,其x方向最大顶点位移比RC框架小约38%;在8度罕遇地震作用下,UHPC框架的最大层间位移角控制能力显著优于RC框架结构,其最大层间位移角比RC框架小约33%;UHPC框架塑性铰的分布数量明显小于RC框架,且多集中在梁端;UHPC的受拉能力可显著减小纵筋拉应变的发展,且UHPC框架的首层柱脚纵筋应变小于首层梁端的,使得UHPC框架更有利于满足“强柱弱梁”的抗震需求。
  • 王璐, 薛彦涛, 王翠坤
    建筑结构学报. 2023, 44(S2): 139-148. https://doi.org/10.14006/j.jzjgxb.2023.S2.0014
    摘要 ( ) PDF全文 ( )   可视化   收藏
    为了研究设置屈曲约束支撑和钢柱帽的板柱结构的抗震性能,设计了缩尺比为1∶2的2层2跨的板柱-支撑框架,在结构中设置钢柱帽、人字形屈曲约束支撑和单斜屈曲约束支撑,对其进行拟静力试验。结果表明:框架顶层位移角达到1/40,大于1/50的变形要求;框架抗侧刚度强,变形能力良好,具有较强的耗能能力;支撑作为“第一道防线”先发生屈曲,框架承载能力下降,钢柱帽作为“第二道防线”,能够防止板柱节点核心区发生破坏;设计时需保证支撑节点不先于构件破坏,建议采取适当措施予以加强;框架延性系数较小,建议适当减小支撑截面或采用低屈服点钢材。
  • 唐浩然, 丁然, 孙运轮, 陶慕轩, 樊健生
    建筑结构学报. 2023, 44(S2): 149-160. https://doi.org/10.14006/j.jzjgxb.2023.S2.0015
    摘要 ( ) PDF全文 ( )   可视化   收藏
    基于精细壳单元模型和单元应力验算准则的传统反应堆厂房结构抗震设计方法,往往难以满足高烈度厂址的设计需求。为了解决该问题,借鉴日本核电厂抗震设计规范的相关规定,针对高温气冷堆钢板混凝土筒体结构,基于有限元推覆分析结果,计算得到各层截面的宏观弯矩-曲率和剪力-剪切变形骨架曲线,并结合滞回规则,建立了结构的集中质量模型。随后基于该模型开展了结构地震响应弹塑性时程分析和优化研究。分析结果表明:建立的集中质量模型具有较好的精度,相比精细壳单元模型具有更高的建模和计算效率;在最大加速度为0.6g的地震动作用下高温气冷堆钢板混凝土结构的平面最大剪应变约为日本规范中钢板混凝土组合剪力墙极限剪应变限值的63%,仍有较大的优化空间。
  • 赵增阳, 张文元, 刘雅致
    建筑结构学报. 2023, 44(S2): 161-172. https://doi.org/10.14006/j.jzjgxb.2023.S2.0016
    摘要 ( ) PDF全文 ( )   可视化   收藏
    数次罕遇地震以及极罕遇地震震害经验表明,中心支撑钢框架结构某些支撑失效退出工作后结构仍能维持不倒。这种在主要抗侧力体系遭受严重破坏后发挥作用,防止剩余结构倒塌的能力被称为结构的储备能力。为了定量评估储备能力对中心支撑钢框架结构抗倒塌性能的贡献,按7度设防烈度设计了一组不同层数的中心支撑钢框架结构,分别建立未考虑与考虑储备能力的两种有限元模型;依据FEMA P695建议,采用增量动力非线性时程分析方法,对两种模型进行易损性分析。分析结果表明:储备能力可以有效降低中心支撑钢框架结构支撑失效后剩余结构的倒塌概率,在罕遇地震与极罕遇地震下,倒塌概率分别下降9%与24%;考虑储备能力后,中心支撑钢框架结构的倒塌安全储备系数在罕遇地震与极罕遇地震下提升幅度均超过25%;对于中低烈度区,中心支撑钢框架结构的储备能力可以保证结构在某层支撑失效后,仍能满足“大震不倒”的设防目标。
  • 李悦, 宁哲, 李志鹏, 刘春盛, 单宏兰
    建筑结构学报. 2023, 44(S2): 173-179. https://doi.org/10.14006/j.jzjgxb.2023.S2.0017
    摘要 ( ) PDF全文 ( )   可视化   收藏
    为了研究环状脱空缺陷对钢管混凝土柱抗震性能的影响,设计制作3种不同内部构造的钢管混凝土柱,进行低周往复加载试验,研究环状脱空缺陷对钢管混凝土柱的破坏模式、滞回性能、水平承载力、转角延性系数、刚度和承载力退化以及耗能能力等的影响规律。结果表明:脱空缺陷显著降低了钢管对核心混凝土的约束效应,减弱了二者协同工作能力,致使柱的承载力和转角延性系数相较于无缺陷钢管混凝土柱分别降低了16.29%和33.03%;在钢管内布置栓钉能显著提高钢管对混凝土的约束效应,促进钢管与核心混凝土的协同工作,使具有脱空缺陷的钢管混凝土柱的承载力提高5.63%,而对转角延性系数的提高更为明显,达到了9.05%。同时,增设栓钉可以使环状脱空缺陷钢管混凝土柱的累积耗能提高15.19%。
  • 潘建荣, 陈鹏, 胡方鑫, 王湛
    建筑结构学报. 2023, 44(S2): 180-187. https://doi.org/10.14006/j.jzjgxb.2023.S2.0018
    摘要 ( ) PDF全文 ( )   可视化   收藏
    为了实现钢框架结构震后快速修复,基于损伤控制原理,提出一种由耗能板和C形抗剪件通过高强度螺栓连接悬臂梁段与跨中梁段的韧性钢框架梁柱节点,柱与悬臂梁段焊接,通过梁翼缘和C形抗剪件外伸翼缘对耗能板提供面外约束,从而限制其屈曲变形,改善承载与耗能能力。对4个韧性钢框架梁柱节点进行低周循环加载试验,研究不同构造形式的耗能板与C形抗剪件对梁柱节点的变形模式、滞回曲线和骨架曲线的影响。试验结果表明:该梁柱节点可以有效转移梁端塑性铰至耗能板上,即使在层间位移角5%时,主体梁柱构件保持完全弹性;更换损伤的耗能板后,梁柱节点可以恢复原有的滞回性能;层间位移角7%时梁翼缘无法有效约束槽孔削弱型耗能板的面外变形,层间位移角3%时未加劲C形抗剪件的外伸翼缘出现较大残余变形,均不利于节点的快速修复,故建议优先采用狗骨削弱型耗能板与加劲C形抗剪件。
  • 王载, 刘牧明, 叶垚, 武启剑, 蔡润泽, 施刚
    建筑结构学报. 2023, 44(S2): 188-198. https://doi.org/10.14006/j.jzjgxb.2023.S2.0019
    摘要 ( ) PDF全文 ( )   可视化   收藏
    江苏园博园未来花园项目中,空间伞状主体结构包含多种形式的不锈钢椭圆管相贯节点。针对该项目中典型的三种空间节点(DY形、KK形、KT形),按照最不利设计荷载组合计算主支管的内力,据此内力确定设计荷载,对节点主支管进行比例加载,获得三种节点在设计荷载作用下的管壁变形及关键位置应变,并在此基础上继续加载至破坏。结果表明:所有节点管壁变形极小,在设计荷载作用下测点处于弹性工作状态;当荷载分别达到2.80倍和4.20倍设计荷载时,DY形、KK形节点支管进入屈服,承载力由支管屈服控制;加载至5.80倍设计荷载时,KT形节点尚未进入屈服;所有节点的承载力均有较大富余。
  • 顾金超, 杜文风, 汤朋山, 高博青, 董石麟
    建筑结构学报. 2023, 44(S2): 199-208. https://doi.org/10.14006/j.jzjgxb.2023.S2.0020
    摘要 ( ) PDF全文 ( )   可视化   收藏
    装配式节点的研发是网壳结构装配化发展的关键环节之一。借鉴中国传统木结构榫卯节点的构造方法,提出了一种榫卯式空心球节点。为研究该节点的受力性能,运用三维建模软件SOLIDWORKS和有限元分析软件ANSYS建立了29个不同尺寸和参数的榫卯式空心球节点模型,分析了空心球壁厚、榫头宽度、齿宽度、齿间距以及齿高度等参数对节点转动性能的影响,探讨了节点受弯极限状态的破坏模式,推导了节点初始转动刚度及弹塑性转动刚度的计算式。分析结果表明:对空心球壁厚、榫头宽度、齿宽度和齿间距分别进行参数优化后,节点初始转动刚度分别增加了34.45%、3.25%、4.69%和4.29%。不同参数节点受弯极限状态呈现杆件屈曲与空心钢球屈曲两种破坏模式;拟合得到的节点转动刚度计算式,其计算结果误差较小,准确度高。
  • 侯超, 刘夏璐, 赵文杰
    建筑结构学报. 2023, 44(S2): 209-219. https://doi.org/10.14006/j.jzjgxb.2023.S2.0021
    摘要 ( ) PDF全文 ( )   可视化   收藏
    由钢管混凝土弦杆与空钢管腹杆组成的钢管混凝土K形节点受力性能优越、外形美观,在大型桁式基础设施中得到广泛应用。当该类结构服役于海洋环境中时,通常受到交变荷载与腐蚀的长期耦合作用,严重影响其安全性。为研究长期荷载与随机局部腐蚀耦合作用下钢管混凝土K形节点的应力集中系数,建立了考虑钢管外壁随机腐蚀形貌、材料性能时变劣化以及材料间非线性约束的有限元分析模型。分析了体积腐蚀率、蚀坑几何特性与空间分布特性等参数对节点应力集中系数的影响规律,并与常用于简化设计的均匀腐蚀工况进行对比。结果表明:在均匀腐蚀作用下,体积腐蚀率是影响节点应力集中系数的关键参数,最大应力集中系数首先出现在腹杆冠趾处,并随着弦杆体积腐蚀率的增加而向受拉侧弦杆冠趾移动;而在随机局部腐蚀作用下,节点应力集中系数受多因素耦合的复杂影响,随着蚀坑三维几何参数、空间分布位置的改变呈非线性变化。基于参数分析结果,分别提出了均匀腐蚀与随机局部腐蚀两种工况下钢管混凝土K形节点应力集中系数的简化计算方法,计算结果与数值分析结果吻合良好。
  • 田坤, 李向民, 兰学平
    建筑结构学报. 2023, 44(S2): 220-230. https://doi.org/10.14006/j.jzjgxb.2023.S2.0022
    摘要 ( ) PDF全文 ( )   可视化   收藏
    为解决自复位装置存在耗能能力较差且耗能可靠度较低、刚度不可变等问题,研发了一种多刚度碟簧-黏滞耗能自复位装置(MDVSD),利用碟形弹簧实现自复位,依靠黏滞阻尼材料进行耗能,且装置刚度可变,通过理论分析建立了理论滞回模型。设计并制作了2个MDVSD和1个多刚度自复位装置(CMSD)并完成受力性能试验,研究MDVSD耗能性能与自复位性能。试验结果表明:MDVSD滞回曲线与理论滞回模型相符,呈现多刚度特性;MDVSD耗能能力相对于CMSD显著提升,一阶刚度工作范围耗能能力最大提高738%,二阶刚度工作范围耗能能力最大提高259%;在不同幅值和加载频率下MDVSD具有稳定的力学性能,刚度未出现随变形幅值增大而退化的现象;MDVSD试件自复位过程相对于CMSD更加平稳,可以避免“冲击”效应的出现。
  • 蔡亦杰, 许伟志, 任俊奕, 王曙光, 杜东升, 解琳琳
    建筑结构学报. 2023, 44(S2): 231-239. https://doi.org/10.14006/j.jzjgxb.2023.S2.0023
    摘要 ( ) PDF全文 ( )   可视化   收藏
    为解决普通金属阻尼器在多遇地震下耗能效率低和摩擦阻尼器在罕遇地震下耗能能力不足等问题,提出一种分阶段耗能的摩擦-金属复合型阻尼器(FMCD)。为了考察金属阻尼器耗能材料(LY160和Q235)以及摩擦阻尼器的螺栓扭矩大小(80 N·m和120 N·m)等对FMCD受力性能的影响,制作了4个FMCD并对其进行拟静力循环荷载试验。试验结果表明,在止滑机制触发前,摩擦阻尼器工作,耗能效率高;加载位移大于止滑位移后,金属阻尼器工作,阻尼力增大;将摩擦阻尼器的预紧扭矩提升50%,FMCD摩擦阻尼器耗能阶段的峰值荷载和累积耗能分别提高了23%和18%;相较于采用Q235耗能的FMCD,采用LY160耗能的FMCD峰值荷载降低了7.6%,但累积耗能提高了29.9%,极限位移增加了15 mm。
  • 装配式结构
  • 鲁余勇, 薛彦涛
    建筑结构学报. 2023, 44(S2): 240-249. https://doi.org/10.14006/j.jzjgxb.2023.S2.0024
    摘要 ( ) PDF全文 ( )   可视化   收藏
    为实现全装配式混凝土框架,在混凝土构件和钢构件之间采用套筒转换连接,其中柱-柱法兰连接,梁-柱台阶式工字钢连接。通过对1榀配置U形阻尼器的全装配混凝土框架和1榀现浇混凝土框架进行低周反复荷载试验,研究配置U形阻尼的全装配式框架结构的抗震性能,分析其试验现象和破坏特征、滞回曲线、骨架曲线、刚度退化、延性等。试验结果表明:全装配式混凝土框架中的柱-柱法兰连接和梁-柱台阶式工字钢连接可靠,钢支撑可以有效实现U形阻尼器和全装配式框架在地震作用下协同受力,配置U形阻尼器的全装配式混凝土框架具有良好的耗能能力和延性,延性系数为4.9~6.9,等效黏滞阻尼系数为0.15~0.24;相同荷载下,配置U形阻尼器的全装配式混凝土框架耗散能量为现浇混凝土框架的2倍,U形阻尼器有效减轻了整体结构的损伤程度。
  • 张中昊, 贺非凡, 支旭东, 范峰
    建筑结构学报. 2023, 44(S2): 250-262. https://doi.org/10.14006/j.jzjgxb.2023.S2.0025
    摘要 ( ) PDF全文 ( )   可视化   收藏
    针对索撑单层柱面木网壳结构,采用圆木代替传统钢构件并通过半刚性螺栓球节点连接杆件,通过对方头螺钉布置数量不同的两组共12个圆木构件-螺栓球节点进行抗转动试验及数值模拟研究节点的半刚性性能;并提出一种由面外索单元交错布置的面外布索方案,研究索撑单层圆木柱面网壳的静力稳定性能。结果表明,节点半刚性由截面的缩减以及端盘与圆木之间的连接所致,且截面缩减是节点半刚性的主要成因,试验和数值模拟所得到的节点弯矩-转角曲线相互吻合,所采用的节点数值模拟方法正确;索撑单层圆木柱面网壳结构有限元模型能够在10%误差以内模拟试验中结构的整体变形及节点的荷载-位移曲线,且采用该布索方案的结构承载力和刚度均大于采用已有布索方案的结构,结构承载力随矢跨比的增大先增大后减小,随预应力、撑杆高度、节点刚度的增大而增大,而随初始缺陷、活荷载与恒荷载比值的增大而减小。
  • 武立伟, 于斐凡, 吴岳, 郭雪源, 陈海彬, 闫文赏
    建筑结构学报. 2023, 44(S2): 263-271. https://doi.org/10.14006/j.jzjgxb.2023.S2.0026
    摘要 ( ) PDF全文 ( )   可视化   收藏
    为研究装配式内置格构式圆钢管混凝土异形柱框架的抗震性能,设计了2榀两层两跨足尺中框架和边框架,通过低周往复加载试验,分析了框架破坏机制、滞回性能、变形能力、耗能能力和刚度退化。结果表明:装配式内置格构式圆钢管混凝土异形柱框架破坏机制为典型的梁铰机制,满足“强柱弱梁”设计要求;中框架和边框架滞回曲线饱满,延性和耗能能力较好,刚度退化平稳,框架破坏时层间位移角达到1/23,远高于强震下弹塑性层间位移角1/50的限值,内置钢管混凝土的存在改变了结构承载机制,在外部混凝土脱落后,结构内力重分布,形成内置格构式钢管混凝土桁架受力体系;该装配式节点连接安全可靠,结构仅进行钢管混凝土的有效连接,无需进行纵向钢筋的连接,具有较好的经济性。
  • 李祚华, 葛磊, 齐一鹤, 陈杰, 田得元, 滕军
    建筑结构学报. 2023, 44(S2): 272-281. https://doi.org/10.14006/j.jzjgxb.2023.S2.0027
    摘要 ( ) PDF全文 ( )   可视化   收藏
    为提升模块化结构的抗侧能力和耗能能力,提出了基于塑性可控节点和防屈曲钢板剪力墙的耗能减震模块化结构体系设计方法,提高模块化结构的抗侧能力和耗能能力。以一栋6层模块化装配式教学楼结构为例,根据结构受力特点和性能提升需求合理布置了耗能减震部件。罕遇地震、极罕遇地震作用下的弹塑性分析结果表明:通过合理布置耗能减震部件减轻了结构损伤程度,有效降低了层间位移角和基底剪力,优化后结构在极罕遇地震作用下可达到“不倒”的性能目标,提升了结构抗倒塌能力。
  • 赵勇, 刘科, 王晓锋, 赵广军
    建筑结构学报. 2023, 44(S2): 282-296. https://doi.org/10.14006/j.jzjgxb.2023.S2.0028
    摘要 ( ) PDF全文 ( )   可视化   收藏
    为了完善坐浆法钢筋套筒灌浆连接预制柱(简称“坐浆法预制柱”)的施工工艺和研究其抗震性能,制作了8个坐浆法预制柱并对其进行了拟静力试验,与连通腔法预制柱和整浇柱进行对比,研究了坐浆法预制柱的破坏形态、滞回曲线、耗能能力、骨架曲线、延性及承载力,分析了结合面做法、坐浆法产品和轴压比对坐浆法预制柱抗震性能的影响。结果表明:坐浆法预制柱均发生接缝压弯破坏,且破坏集中在接缝区域;坐浆法预制柱的峰值荷载、耗能能力和延性均与连通腔法预制柱和整浇柱相似;设置粗糙面对坐浆法预制柱的峰值荷载、耗能能力和延性影响不大;峰值荷载时,接缝水平滑移、柱转动变形、柱弯曲变形和柱剪切变形约占柱顶侧移的10%、50%、35%和5%。根据试验结果,建立考虑剪力影响的坐浆法预制柱接缝压弯承载力计算方法、压弯剪作用下的接缝剪力-滑移模型及考虑接缝水平滑移和套筒区作为刚域的柱顶侧移计算方法;建议的荷载-变形模型考虑了多种影响因素,与试验结果相接近,便于坐浆法预制柱的结构性能化设计。研究结果表明,工程上可推广应用坐浆法工艺,且采用坐浆法时预制柱底可不进行粗糙面处理。
  • 郭瑞, 杨虎, 李慧, 郭应军
    建筑结构学报. 2023, 44(S2): 297-303. https://doi.org/10.14006/j.jzjgxb.2023.S2.0029
    摘要 ( ) PDF全文 ( )   可视化   收藏
    为改善装配式混凝土柱的抗震性能,提出在RC柱潜在塑性铰区采用ECC替代普通混凝土的装配式ECC/RC柱。为研究装配式ECC/RC柱的抗震性能,设计并制作了1根现浇RC柱和4根装配式ECC/RC柱,通过拟静力试验,研究ECC高度和配箍率对柱破坏形态、滞回特性、耗能能力以及刚度退化等的影响。结果表明:与现浇RC柱相比,装配式ECC/RC柱承载能力以及耗能能力得到提升,同时柱损伤程度得到明显改善,震后可恢复性大幅度提升;对于装配式ECC/RC柱,在其他条件相同情况下,增加ECC高度提高了柱承载能力、耗能能力和变形能力,避免塑性铰区上移,但对柱的刚度退化影响不大;而提高配箍率降低了柱的变形能力,导致塑性铰区上移,但对柱的刚度退化和耗能能力影响较小。
  • 何敏娟, 刘学郑, 王艺静, 李征
    建筑结构学报. 2023, 44(S2): 304-314. https://doi.org/10.14006/j.jzjgxb.2023.S2.0030
    摘要 ( ) PDF全文 ( )   可视化   收藏
    螺栓-钢填板连接是现代胶合木结构最为常用的节点形式。为研究一种用于胶合木梁柱连接的标准化钢填板节点的承载力,对4组标准化U形钢填板的足尺节点进行了单调与单向重复加载试验。试验结果表明:随着钢填板尺寸增大,节点的初始刚度和极限承载力明显提高;达到最大荷载时,节点发生木材劈裂破坏。依据试验结果得到节点屈服承载力与极限承载力试验值,并对屈服承载力与极限承载力进行计算分析。屈服承载力标准值分别根据欧洲规范EN 1995-1-1:2004与中国GB 50005—2017《木结构设计标准》中公式计算,与试验值拟合匹配度R2分别为0.07与-0.74,其中按EN 1995-1-1:2004得到的计算结果与试验值更接近,而根据GB 50005—2017计算得到的屈服承载力标准值较试验承载力偏低。通过基于LEFM理论的EN 1995-1-1:2004计算得到极限承载力,其中柱端屈服破坏承载力均小于梁端的,因此屈服承载力标准值取决于柱端屈服破坏承载力,且与试验承载力更接近,与试验值拟合匹配度R2=-0.31。此外,提出极限承载力计算的半经验半理论公式,计算结果与试验值拟合匹配度R2=0.82。
  • 胡淑军, 周琪, 曾思智, 支清
    建筑结构学报. 2023, 44(S2): 315-323. https://doi.org/10.14006/j.jzjgxb.2023.S2.0031
    摘要 ( ) PDF全文 ( )   可视化   收藏
    在装配式混凝土框架-Y形偏心钢支撑结构中,为使损伤仅发生在耗能段,需保证耗能段与预制混凝土梁间形成可靠连接。为此,提出一种弯剪分离式预制混凝土梁-耗能段组合节点,设计3个不同抗剪连接件截面尺寸和1个更换耗能段的试件,并进行往复加载试验,得到其破坏模式、滞回曲线、骨架曲线、割线刚度、耗能能力和各部件应变分布等。结果表明,各试件中耗能段均经历了腹板屈服、腹板和翼缘屈曲、腹板开裂、翼缘开裂和破坏等过程,耗能段的超强系数和塑性转角分别达到1.85 rad和0.15 rad,与相应纯耗能段的试验结果相同;增大抗剪连接件长度和截面面积可避免预制混凝土梁上产生裂缝或损伤;对损伤的耗能段进行更换,整个过程仅需45 min,且修复后试件的抗震性能与修复前基本相同。另外,弯剪分离式组合节点中抗剪连接件承担全部剪力,对穿螺杆承担全部弯矩,有效实现弯矩与剪力的分离,具有承载能力强、装配效率高以及震后可快速修复等特点。
  • 于斐凡, 武立伟, 孙玉丽, 陈海彬, 郭雪源, 祁佳睿, 马旭
    建筑结构学报. 2023, 44(S2): 324-330. https://doi.org/10.14006/j.jzjgxb.2023.S2.0032
    摘要 ( ) PDF全文 ( )   可视化   收藏
    为研究装配式内置圆钢管混凝土L形异形柱节点抗震性能,设计了3个足尺梁柱节点,通过低周往复加载试验,分析不同轴压比下梁柱节点的滞回性能、承载力与变形能力、刚度退化和耗能能力。结果表明:梁柱节点发生梁端塑性铰破坏,内置圆钢管混凝土在柱底混凝土压溃后,可继续承担结构自身质量;在一定范围内,随着轴压比的增大,梁柱节点荷载和位移特征值均呈增大趋势,位移延性系数均大于2,弹性和弹塑性层间位移角可达1/127和1/43;与45°斜向加载相比,沿0°加载梁柱节点的延性较好,屈服荷载和极限荷载有所降低。
  • 李成玉, 王义龙, 陈焰周, 吴东平
    建筑结构学报. 2023, 44(S2): 331-340. https://doi.org/10.14006/j.jzjgxb.2023.S2.0033
    摘要 ( ) PDF全文 ( )   可视化   收藏
    基于损伤控制理念,设计了一种可更换连接件的H型钢柱滑移摩擦柱脚节点。该柱脚节点将能量耗散机制与震后修复机制相结合,从而提高其抗震韧性。对2组共6个柱脚节点进行初始、第一次修复和第二次修复后的低周往复加载试验。对比了初始试件和修复后试件的破坏形态、滞回曲线、耗能能力和刚度退化等抗震性能指标。结果表明:柱脚节点具有良好的耗能能力,主要通过摩擦耗能实现;柱脚节点的损伤仅集中在连接件的转角处,钢柱底部的可摇摆构造有效避免了柱脚区域钢柱的损伤;柱脚节点第一次修复,即重新拧紧螺栓,整体抗震性能可基本恢复,但在再次加载中会加重连接件损伤;柱脚节点第二次修复,即通过更换摩擦板、高强螺栓和连接件,整体抗震性能可恢复至初始水平。
  • 地基基础与地下结构
  • 包小华, 喻益亮, 刘春讯, 赵德博, 陈湘生, 崔宏志
    建筑结构学报. 2023, 44(S2): 341-349. https://doi.org/10.14006/j.jzjgxb.2023.S2.0034
    摘要 ( ) PDF全文 ( )   可视化   收藏
    为研究地震作用下深层地下空间多个结构间的相互作用机制,采用水-土完全耦合有限元方法建立包括上部结构、桩基、地铁车站、隧道、仓储等多个结构的复杂模型,采用实体单元弹塑性本构模型模拟土体,采用梁单元与柱单元弹性模型模拟结构。分析地层的加速度响应特征、车站中柱剪力、隧道弯矩、地层与车站位移,并采用Taguchi法分析地震加速度、结构空间位置、结构弹性模量等因素的影响。结果表明:随着场地结构的复杂程度增加,地层中结构周围测点处的加速度响应减小;车站、车站-隧道、车站-隧道-仓储工况下的车站结构位移较小,增加桩基与上部结构,车站中柱剪力和隧道弯矩大幅度减小,但车站结构的位移显著增大;车站中柱剪力主要受到隧道弹性模量和地震加速度影响,车站与地表竖向位移主要受到地层性质和地震加速度影响。
  • 包小华, 喻益亮, 李丽娟, 陈湘生, 彭鹏, 崔宏志
    建筑结构学报. 2023, 44(S2): 350-358. https://doi.org/10.14006/j.jzjgxb.2023.S2.0035
    摘要 ( ) PDF全文 ( )   可视化   收藏
    在地震作用下土体液化后不仅丧失承载能力,而且液化土也会在不均等应力作用下发生流动,导致地下结构发生较大位移。因此,根据土体的循环移动本构关系,建立水-土完全耦合的数值模型,并采用离心机振动台试验验证该模型的有效性;研究黏性土置换、单侧排水地连墙以及两者的联合措施分别在中震(0.25g)和巨震(0.60g)作用下对车站的上浮位移以及车站剪力的控制效果。结果表明:单侧排水地连墙可快速消散近场中的超孔隙水压力,使超孔隙水压比N<1;联合处理措施对地震中车站的上浮和地震后的沉降均具有较好的控制效果。在中震作用下,采用单一处理措施与联合处理措施都具有较好的抗上浮效果;在巨震作用下,联合处理措施抗浮效果更好,相比未经处理措施,可减少95.2%上浮位移。
  • 蒋家卫, 黄文婷, 荀郑, 赵凯, 李兆焱, 杜修力
    建筑结构学报. 2023, 44(S2): 359-366. https://doi.org/10.14006/j.jzjgxb.2023.S2.0036
    摘要 ( ) PDF全文 ( )   可视化   收藏
    为研究海底沉管隧道在横向地震作用下的动力响应特征,以港珠澳大桥沉管隧道为研究背景,基于ABAQUS软件平台建立了海水-海床-管片相互作用的三维有限元模型,考虑了海床土体非线性动力特性和隧道混凝土塑性损伤。采用动力时程分析方法研究隧道在不同地震峰值加速度激励下的地震响应特征。结果表明:沉管隧道最先出现损伤的区域为中墙与顶板连接处,但折拱段的震后损伤最为严重,是沉管隧道的最薄弱部位;在输入地震峰值加速度大于0.4g的情况下,隧道管片折拱段与侧墙等区域会面临震后渗水的次生灾害风险。研究成果可为水下沉管隧道的抗震性能设计提供参考。
  • 吴江斌, 王阿丹, 黄昱挺, 魏家斌
    建筑结构学报. 2023, 44(S2): 367-374. https://doi.org/10.14006/j.jzjgxb.2023.S2.0037
    摘要 ( ) PDF全文 ( )   可视化   收藏
    某超高层建筑高度230 m,由于其上部结构荷载大,对地基承载力和沉降控制要求高,且场地地层以粉质黏土和粉土为主,夹有粉砂及细砂层,所以采用超长灌注桩基础。先后开展了两组现场试桩试验,A组桩桩径为1 m,以埋深为93 m的细砂层作为桩端持力层,采用桩端和6道桩侧后注浆;B组桩桩径为1 m,以埋深为78 m的粉质黏土层作为桩端持力层,采用桩端和2道桩侧后注浆。现场试桩实测结果显示:A、B组桩均满足承载力及沉降控制要求,但B组桩更加经济合理,且B组桩比A组桩更利于桩端阻力的发挥;埋深23 m以上桩侧摩阻力增强系数小于勘察报告中的建议取值,埋深40~80 m桩侧摩阻力增强系数与勘察报告中的建议取值吻合较好,而A组桩桩端阻力增强系数明显小于勘察报告中的建议取值,B组桩桩端阻力增强系数明显高于勘察报告中的建议取值,超长桩设计中应充分考虑泥皮引起的桩侧摩阻力软化和注浆后的桩侧摩阻力及桩端阻力增强作用。
  • 陆金钰, 舒海港, 姜昊瑞
    建筑结构学报. 2023, 44(S2): 375-384. https://doi.org/10.14006/j.jzjgxb.2023.S2.0038
    摘要 ( ) PDF全文 ( )   可视化   收藏
    为研究日益增多的地下结构对上部结构的地震响应影响,基于有限元分析软件ABAQUS实现并优化了土体的本构模型,并在此基础上设置Benchmark钢框架和地铁车站,建立地下结构-软土地基-钢框架结构共同工作有限元分析模型。通过对模型进行参数化动力时程分析,探究在不同软土地基刚度、钢框架层数和地下结构与上部结构水平距离下软土地基和地下结构对钢框架结构地震响应的影响,分析结果表明:软土地基会对地震波有过滤和放大作用,其对地表处地震波的影响效果与地震波种类和软土地基刚度有关;地下结构的存在对地震波有散射和反射作用,在相同地震动激励下,地下结构对地表的峰值加速度有放大效果;考虑地下结构和软土地基影响后,上部钢框架结构的最大层间位移与地震波的种类,上部钢框架结构的刚度,软土地基的刚度和上下部结构间的水平距离等因素密切相关。
  • 王卫东, 魏家斌, 吴江斌
    建筑结构学报. 2023, 44(S2): 385-392. https://doi.org/10.14006/j.jzjgxb.2023.S2.0039
    摘要 ( ) PDF全文 ( )   可视化   收藏
    目前高频免共振钢管桩逐步应用于我国软土地区,但其土塞效应研究有待深入。为此,在上海地区某场地进行高频免共振钢管桩试桩,研究其沉桩时和沉桩后的土塞效应。试桩沉桩深度为52 m,桩端持力层为⑦砂质粉土。试验结果表明:土塞闭塞程度较低,土塞增长率基本在80%~140%之间波动,沉桩后土塞接近满芯;龄期32、60 d和90 d的桩端阻力较小,龄期90 d时桩的端阻比仅为7.0%;各龄期桩端阻力实测值显著小于考虑土塞效应的估算值(1 232 kN),龄期90 d仅为估算值的26.5%;沉桩加速度幅值估算值基本大于3.6g,显著弱化动侧摩阻力,从而导致土塞效应很弱;高频免共振钢管桩土塞闭塞程度较低,估算基桩承载力时不宜考虑土塞效应。
  • 基础理论与共性技术
  • 刘立平, 雷海明, 李瑞锋, 肖闲, 邓飞
    建筑结构学报. 2023, 44(S2): 393-402. https://doi.org/10.14006/j.jzjgxb.2023.S2.0040
    摘要 ( ) PDF全文 ( )   可视化   收藏
    为研究山地吊脚框架结构底部不等高嵌固特性所导致的扭转效应,采用理论分析、试验研究和数值模拟相结合的方法分析吊脚柱截面相同情况下柱长比β(吊脚层短柱与长柱长度的比值)对于结构弹性阶段扭转效应的影响。结果表明:在吊脚柱截面相同情况下,随柱长比的减小,吊脚结构的抗侧刚度、抗扭刚度及其所受的扭矩逐渐增大,扭转角先增大后减小,且在柱长比为0.5~0.667时达到峰值;短柱因扭转引起的非受力方向剪力随柱长比的减小而增大。整体结构的扭转变形和构件的扭转效应随柱长比变化规律不同,宜分开考虑,整体结构的扭转变形在柱长比大于扭转角达到峰值时的柱长比βt时,可基于现行规范通过扭转位移比进行判断;柱长比小于扭转角达到峰值时的柱长比时,宜用扭转角作为结构扭转指标。构件的扭转效应随柱长比减小而增大,在柱长比小于βt时,扭转在短柱端产生的附加内力不能忽略,短柱处于双向剪力快速增加的弯剪扭复杂受力状态,设计中应给予关注。
  • 杨易, 李秋生, 万腾骏
    建筑结构学报. 2023, 44(S2): 403-410. https://doi.org/10.14006/j.jzjgxb.2023.S2.0041
    摘要 ( ) PDF全文 ( )   可视化   收藏
    为了精细化模拟不同优化措施对超高层建筑烟囱效应的缓解效果,以长沙某地标超高层建筑T1主塔(高度452 m)为研究实例,开展了两次冬季强烟囱效应的现场实测研究,获得了直达电梯在自然气象条件下强烟囱效应压差分布特性的实测数据;基于多区网络模型方法,编制了数值模拟程序HiSTACK,分析电梯的烟囱效应压差特性,并与实测结果对比;采用数值模拟分析三种缓解强烟囱效应的优化效果。实测结果分析表明:直达电梯厅门烟囱效应最大压差实测值达135.71 Pa,超过电梯系统抗压阈值,是导致电梯系统故障的直接原因;建筑抗烟囱效应设计考虑不周如建筑底部与裙楼空间多处联通、室内隔断设置不合理以及围护结构气密性差等,是导致该建筑发生强烟囱效应的主要原因。数值模拟结果显示:直达电梯压差分布和实测结果基本相符,验证了HiSTACK数值模拟程序的适用性和准确性;增强大厅层幕墙气密性、建筑顶部增设前室门和冷却电梯井道等措施可有效缓解电梯烟囱效应压差,可将最大烟囱效应压差降低18.3%~41.5%。
  • 刘昊鹏, 李爽, 王浩然
    建筑结构学报. 2023, 44(S2): 411-426. https://doi.org/10.14006/j.jzjgxb.2023.S2.0042
    摘要 ( ) PDF全文 ( )   可视化   收藏
    韧性结构具有良好的抗震性能和自复位效果,为研究填充墙对韧性框架抗震性能的影响,建立了韧性填充墙框架的精细化有限元模型,利用数值模拟结果提出了一种荷载-位移曲线的简化预测方法。结果表明:韧性填充墙框架不会发生脆性破坏,预应力钢筋的初始预应力对韧性填充墙框架的承载力影响显著,改变砂浆和砌块的强度会导致填充墙传力模式的改变,填充墙的撑杆作用沿着对角线方向发展,角钢横向开孔对承载力有较大影响。将韧性填充墙框架的受力分解为韧性纯框架与填充墙,分别计算韧性纯框架和填充墙在弹性、弹塑性和塑性阶段的待定参数,并利用线性插值法分别叠加,得出韧性填充墙框架的简化荷载-位移曲线,与有限元模拟结果吻合良好。
  • 金浏, 张江兴, 宋博, 李冬, 杜修力
    建筑结构学报. 2023, 44(S2): 427-437. https://doi.org/10.14006/j.jzjgxb.2023.S2.0043
    摘要 ( ) PDF全文 ( )   可视化   收藏
    为研究最小配箍率钢筋混凝土(RC)梁的剪切性能及尺寸效应行为,完成了集中荷载作用下6根最小配箍率RC梁的剪切破坏试验,研究其剪切破坏模式及失效机制,分析结构尺寸对RC梁的剪力-挠度曲线、斜裂缝宽度、混凝土应变、纵筋应变及箍筋应变的影响,定量揭示最小配箍率RC梁名义抗剪强度的尺寸效应规律。研究表明:最小配箍率RC梁名义抗剪强度存在尺寸效应;随梁高增加,裂缝数量增多,斜裂缝宽度增大,相应的混凝土拉应变增大,箍筋应变增大,纵筋应变减小;前期基于数值模拟结果建立的尺寸效应理论公式计算结果与试验结果误差小于20%,能够定量描述结构尺寸对最小配箍率RC梁名义抗剪强度的影响;建议的规范修正公式能够较好反映结构尺寸对最小配箍率RC梁受剪承载力的影响。
  • 周阳升, 黄越, 曹芙波, 李刚, 陈建东, 苏天, 崔涛, 王晨霞
    建筑结构学报. 2023, 44(S2): 438-446. https://doi.org/10.14006/j.jzjgxb.2023.S2.0044
    摘要 ( ) PDF全文 ( )   可视化   收藏
    为研究氯盐冻融循环作用对箍筋约束再生混凝土与钢筋的黏结性能退化机理,以冻融循环次数、钢筋锚固长度和再生混凝土强度等级为试验变量,设计了32个中心拉拔试件,并与未配箍筋的试件进行对比分析,得到平均黏结应力-滑移曲线和黏结应力沿锚固长度分布规律。结果表明:再生混凝土平均黏结应力-滑移曲线与普通混凝土相似;黏结性能受冻融循环次数和混凝土强度等级影响较大,混凝土强度等级为C20、C30、C40的试件冻融循环90次后黏结强度分别损失了49%、40%、17%;黏结性能受冻融作用的损伤程度随锚固长度的增加先提高后降低,其中锚固长度为5倍钢筋直径的试件受冻融损伤最严重。依据试验结果,构建了相对黏结应力沿锚固位置的分布函数,建立了适用于氯盐冻融作用后箍筋约束下钢筋与再生混凝土黏结-滑移本构关系,并与已有试验数据对比,结果较为吻合。
  • 王庆贺, 许迪舜, 杜威, 张逸超
    建筑结构学报. 2023, 44(S2): 447-456. https://doi.org/10.14006/j.jzjgxb.2023.S2.0045
    摘要 ( ) PDF全文 ( )   可视化   收藏
    为预测单面传湿边界条件下再生混凝土内部收缩变形的时效分布,结合传湿学基本理论与CEB-FIP 90规范中建议公式,建立再生混凝土水分扩散系数的表达式,并采用现有的相对湿度分布实测数据验证表达式的准确性;在此基础上进行参数分析,量化再生粗骨料取代率与湿度边界条件等因素对再生混凝土内部相对湿度分布的影响;引入混凝土自由收缩与相对湿度的数学关系,建立并验证再生混凝土在单面湿度边界条件的收缩变形时效分布模型。研究结果表明:考虑再生粗骨料取代率影响提出的再生混凝土水分扩散系数公式,可有效预测再生混凝土内部相对湿度分布,预测结果与实测结果相差在15%以内;再生粗骨料取代率和湿度边界条件对混凝土内部相对湿度分布的影响明显,取代率为100%的混凝土较取代率为0%的混凝土中部湿度增大0.6%~4.2%,相同厚度时,单面传湿条件下混凝土内部相对湿度的不均匀分布程度较双面传湿条件时更明显;基于相对湿度分布提出的混凝土收缩分布模型,可有效预测单面传湿条件下的再生混凝土收缩分布,预测结果与实测结果相差在15%以内。
  • 陈晨, 赵羽习, 徐丹丹, 曾滨
    建筑结构学报. 2023, 44(S2): 457-464. https://doi.org/10.14006/j.jzjgxb.2023.S2.0046
    摘要 ( ) PDF全文 ( )   可视化   收藏
    为了研究不同环境下后张梁内预应力筋应力时变规律,设计4根预应力混凝土试验梁,分别置于室外遮蔽环境、自来水干湿循环、氯盐溶液干湿循环、氯盐溶液干湿循环并箍筋通电四种环境,采用振弦式锚索测力计测量预应力筋应力。试验结果表明:环境温度与预应力筋应力变化呈正相关。与室外遮蔽环境的试验梁相比,自来水干湿循环下预应力筋应力增大约3%,与潮湿环境导致的混凝土湿胀相关。与自来水干湿循环相比,氯盐溶液干湿循环后预应力筋应力增大约2.5%,与氯盐引起的盐胀相关。箍筋锈蚀后预应力筋应力提升约4%,箍筋锈蚀导致的锈胀力会在试件纵向引起变形。此外,分析了箍筋锈蚀对预应力筋应力变化值的影响规律,建立箍筋锈蚀率与预应力筋应力变化值之间的关系,计算结果与试验结果较为吻合。
  • 徐曼, 许庆, 曾滨, 李京泽
    建筑结构学报. 2023, 44(S2): 465-473. https://doi.org/10.14006/j.jzjgxb.2023.S2.0047
    摘要 ( ) PDF全文 ( )   可视化   收藏
    为建立考虑抗弯刚度、支承条件和集中质量等典型服役特征的预应力拉索索力与自振频率的推定关系,依据梁单元基本振动方程,通过理论推导与多种服役条件下拉索实测试验研究,提出了多影响因素下拉索索力与自振频率映射关系理论解析式和拟合参数,最终建立了振动法测试中考虑服役特征的索力计算统一推定显式公式。结果表明:长径比小于150的拉索,其抗弯刚度不可忽略,跨中集中质量对拉索自振频率影响显著;统一推定公式在长径比大于50、两端支承条件明确、跨中单一集中质量等多种服役条件下可以满足误差小于5%的工程应用要求;复杂支承或集中质量条件工况下仍需补充试验确定拟合参数。
  • 刘慧鹏, 胥祥, 周福霖, 赵阳, 王钰, 傅向荣
    建筑结构学报. 2023, 44(S2): 474-482. https://doi.org/10.14006/j.jzjgxb.2023.S2.0048
    摘要 ( ) PDF全文 ( )   可视化   收藏
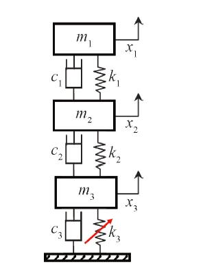
    在显式积分法中增加可预估的算法阻尼,研究了一类显式二阶积分方法,该方法从哈密顿体系动力通解出发,对齐次项采用二阶泰勒展开式分解和对非齐次项采用高斯积分方法求解,形成递推基本格式,再根据积分稳定的谱半径分析,引入超收敛因子α构建全新的单因子超收敛显式二阶积分法。该方法避免了整体刚度矩阵求逆和总矩阵相乘等的运算,也无需进行整体刚度、质量、阻尼矩阵的组集,是一种快速的新型动力显式积分法。数值算例分析表明:显式二阶积分法具有良好的稳定性,在特定步长以下,结果不会发散,且具有可预估的算法阻尼,对中高阶振型具有过滤的特性;算法在合适的步长下,结果精度和与常用积分方法一致。误差分析表明,算法的阻尼和相位差与经典算法Wilson-θ法的基本一致。
  • 张皓, 魏德胜, 胡立新, 李六连, 李东升, 樊健生
    建筑结构学报. 2023, 44(S2): 483-490. https://doi.org/10.14006/j.jzjgxb.2023.S2.0049
    摘要 ( ) PDF全文 ( )   可视化   收藏
    利用模型分析和试验分别得到的结构特征量建立优化目标函数是结构模型修正的关键。但非线性结构的特征量不如线性结构的丰富,而且不易通过常规试验技术提取;特别是在随机振动工况下,非线性结构的动力特性将更加复杂,对其进行理论研究或试验分析都存在困难,因此也不易实现模型修正。等效线性化是进行非线性系统随机振动分析的有力手段;同时,等效线性系统的唯一性使其有望成为非线性系统的重要特征量之一。利用相对坐标提出一种非线性系统等效线性化的数值计算方法,并利用所得到的等效线性系统作为非线性系统特征量建立模型修正目标函数,从而提出了一种基于等效线性化数值计算方法的非线性模型修正策略。结果表明:该策略能够准确进行非线性系统的等效线性化数值计算,并有效提升非线性模型的精确度,实现非线性模型修正。