2022年, 第43卷, 第12期 刊出日期:2022-12-05
  

  • 全选
    |
    结构抗风专题
  • 黄铭枫, 唐归, 陶慕轩, 廖孙策, 高迈, 聂鑫
    建筑结构学报. 2022, 43(12): 1-10. https://doi.org/10.14006/j.jzjgxb.2021.0539
    摘要 ( ) PDF全文 ( )   可视化   收藏
    赛格广场大厦5·18振动事件表明不能忽略楼顶桅杆高阶涡激振动对主体结构的影响,为此,根据相关设计资料和实测数据,分别建立了赛格广场大厦楼顶双桅杆结构的有限元模型与考虑桅杆动力特性改变的修正模型,利用双桅杆绕流CFD(computational fluid dynamics)数值模拟所得气动力荷载时程,计算分析了双桅杆结构在刚度退化前后的风致振动响应特性。推导得出了悬臂钢管涡激振动幅值估算公式,研究了双桅杆的气动力荷载空间分布模式与荷载激励频率对双桅杆风致振动特性的影响。计算结果表明:赛格广场大厦楼顶桅杆的长期累积损伤导致刚度降低是桅杆发生高阶大幅涡振的原因之一;在频率为2.12 Hz的理想涡激力作用下,考虑刚度退化的桅杆修正模型风致振动响应幅值最大,与涡振幅值理论公式预测值202 mm相近,基本符合赛格大厦顶部桅杆风致振动幅值的实际观测情况,文中工作在一定程度上重现了5·18赛格广场大厦楼顶桅杆结构大幅涡激振动的现象。
  • 刘小兵, 姜会民, 吴倩云, 孙亚松, 杨群,
    建筑结构学报. 2022, 43(12): 11-19. https://doi.org/10.14006/j.jzjgxb.2021.0425
    摘要 ( ) PDF全文 ( )   可视化   收藏
    在实际工程中,线形布置双方柱结构的来流风向具有不确定性。为准确掌握线形布置双方柱的气动特性随风向角的变化规律,通过刚性模型测压风洞试验获得了多个不同风向角(风向角α的变化范围为0°~90°,变化步长为5°)下线形布置双方柱在不同间距比(双方柱的中心距与单方柱的边长之比L/D的变化范围为1.2~8)时的气动力系数时程,分析了升力系数时程的幅值谱,研究了风向角对线形布置双方柱斯托罗哈数的影响。研究结果表明:线形布置双方柱的斯托罗哈数按风向角可分为四类,即α=0°(串列布置)、0°<α≤35°、35°<α<80°和80°≤α≤90°;α=0°时,双方柱的斯托罗哈数变化不大,整体较单方柱的值小;0°<α≤35°时和35°<α<80°时,双方柱的斯托罗哈数分别在临界间距比2≤L/D≤3和1.8≤L/D≤2时发生跳跃,发生跳跃后表现出显著的放大效应;80°≤α≤90°时,双方柱的斯托罗哈数在1.2≤L/D≤1.4时较单方柱的值小,在1.4<L/D<3时规律不明显,在3≤L/D≤8时与单方柱的值接近。
  • 唐龙飞, 刘昭, 郑朝荣, 武岳,
    建筑结构学报. 2022, 43(12): 20-30. https://doi.org/10.14006/j.jzjgxb.2021.0568
    摘要 ( ) PDF全文 ( )   可视化   收藏
    超高层建筑具有轻质高柔的特点,强风作用下其气弹效应明显;且水平风向角沿高度偏转,导致超高层建筑的风荷载和风致响应与不考虑风向偏转时有明显不同。为此,完成了风向偏转角为25°的偏转风场及其无偏等效风场下一方形截面千米级超高层建筑的气弹模型试验,基于试验所得的模型顶点加速度时程,结合Hilbert-Huang变换方法和改进的随机减量法识别了气动阻尼比,对比分析了风向角、折减风速和有无风向偏转对气动阻尼比、极值加速度、涡激共振临界风速和锁定区的影响规律,探究了偏转风作用下千米级超高层建筑的风致响应、气弹效应和涡激振动等特性。研究结果表明:风向角对气动阻尼比和极值加速度影响较大,会显著改变其变化规律和涡激共振临界风速;基于频域分析所得的涡激共振临界风速小于由气动阻尼比或极值加速度确定的涡激共振临界风速,表明后者所反映的涡激共振特性具有滞后性,将导致结构不安全;相比无偏等效风作用,偏转风作用下水平向气动阻尼比较大,结构的顶点极值加速度较小,角部极值加速度的最大降幅可达38.3%。
  • 赵彦国, 何艳丽
    建筑结构学报. 2022, 43(12): 31-40. https://doi.org/10.14006/j.jzjgxb.2021.0348
    摘要 ( ) PDF全文 ( )   可视化   收藏
    目前对于索网加劲气承式膜结构的设计,通常将模型简化为索网与膜面直接连接,而忽略索网与膜面之间的摩擦滑移,这种简化处理方法对大跨度气承式膜结构的设计安全造成很大的隐患。为此,利用ANSYS软件,将气承式膜结构索膜之间的摩擦滑移作为接触问题来考虑,建立接触模型,并对其进行初始形态分析和风荷载响应分析。结果表明:当不考虑索膜接触滑移的影响时,会高估索网对膜面的约束作用,计算的膜面位移偏小,索网轴力偏大,且容易出现应力集中的现象;考虑索膜接触滑移时,索网对膜面的约束能力明显下降,在风荷载作用下膜面的位移明显增加,迎风面处的膜面和索网甚至会发生分离。因此需要考虑索膜接触滑移才能正确进行气承式膜结构的风致响应分析,避免安全事故的发生。
  • 孙瑛, 武涛, 武岳,
    建筑结构学报. 2022, 43(12): 41-48. https://doi.org/10.14006/j.jzjgxb.2021.0342
    摘要 ( ) PDF全文 ( )   可视化   收藏
    目前针对金属屋面系统抗风性能的评估有多种试验标准,这不利于结构设计。为此,参考美国ANSI/FM 4474-2004、欧洲ETAG 006: 2007和加拿大CSA A123.21-04,对同一型号的直立锁边屋面系统开展了静态抗风揭试验与动态抗风揭试验,得到了屋面系统的破坏形式、承载力和损坏现象等,并进一步比较了试验方法对屋面系统风揭破坏全过程的影响。对比研究表明:试验方法对屋面系统的破坏形式与承载力均有明显影响;在静态加载下屋面系统更容易发生脱扣破坏,而在动态加载下屋面系统则更容易发生撕裂破坏,且同一个荷载等级下循环次数越多,则屋面系统发生撕裂破坏时的荷载值越小,因此,基于所在地区的风荷载特性确定荷载循环至关重要。比较屋面系统风揭破坏过程中出现的损坏现象发现,不同试验方法下屋面系统均出现了接触印痕、抗风夹明显转动、卷边局部分离以及永久塑性变形等损坏现象。因此,可以认为试验方法对屋面系统的风揭破坏过程影响不大。
  • 结构加固
  • 张勤, 朱潇鹏, 顾祥林, 解雨璇, 赵永胜
    建筑结构学报. 2022, 43(12): 49-58. https://doi.org/10.14006/j.jzjgxb.2021.0671
    摘要 ( ) PDF全文 ( )   可视化   收藏
    为明确纤维网增强水泥基(TRC)复合材料加固对低延性钢筋混凝土(RC)柱抗震性能的提升作用,对6根TRC加固RC柱和2根未加固柱分别进行低周反复加载试验,研究TRC加固层纤维织物网层数、剪跨比、轴压比及配箍率对RC柱地震破坏模式的影响,分析TRC加固对低延性RC柱承载能力、变形性能、荷载-位移曲线及耗能能力的影响规律,并给出TRC加固柱等效阻尼比计算方法。结果表明:TRC加固可以明显改善RC柱的低延性地震破坏特性;与未加固柱相比,TRC加固柱的屈服荷载、侧向承载力、延性及耗能能力均有不同程度的提高,且提高幅度随加固层中纤维网布设层数的增加而增大,当采用4层纤维网加固时,柱屈服荷载、承载力、延性提高程度分别可达31.3%、37.8%、109.2%,且总滞回耗能是未加固柱的11倍;所建立的RC柱等效黏滞阻尼比计算模型,可用于地震作用下TRC加固弯剪破坏型RC柱耗能能力评估。
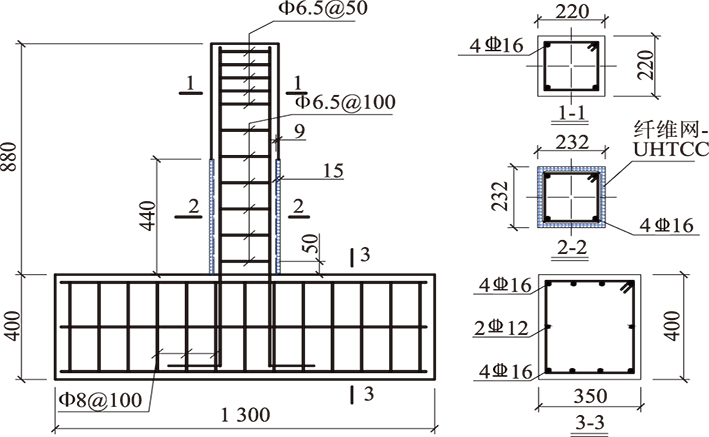
  • 侯利军, 徐冉, 张秀芳, 郑人逢, 徐世烺, 陈达, 欧阳峰
    建筑结构学报. 2022, 43(12): 59-69. https://doi.org/10.14006/j.jzjgxb.2021.0513
    摘要 ( ) PDF全文 ( )   可视化   收藏
    外包纤维网-超高韧性水泥基复合材料(UHTCC)作为一种高性能复合加固方式,具有高强、高耐久性的优势。针对纤维网-UHTCC加固钢筋混凝土(RC)柱,开展5个加固RC柱和1个未加固柱的水平低周反复加载试验,研究纤维网层数、加固高度和轴压比等参数对加固柱抗震性能的影响。试验结果表明:采用纤维网-UHTCC加固RC柱可有效约束核心混凝土变形,抑制柱身裂缝扩展,延缓屈服后柱的刚度退化,显著提高柱的变形、延性和耗能能力;随着纤维网层数的增加,柱的变形能力和延性显著提升,而承载能力提高较小;从变形和破坏形态角度分析,三层纤维网加固的综合效益较优;当轴压比从0.15增大至0.30时,加固柱的承载力提升明显,且延性和耗能能力仍保持较高水平;当加固区高度为1.2~2倍截面高度时,抗震能力基本相当,建议加固高度为1.2倍截面高度。提出了纤维网-UHTCC加固RC柱的荷载-变形骨架曲线理论计算方法,计算结果与试验曲线吻合较好。
  • 卢亦焱, 赵晓博, 李杉, 李伟捷
    建筑结构学报. 2022, 43(12): 70-81. https://doi.org/10.14006/j.jzjgxb.2021.0318
    摘要 ( ) PDF全文 ( )   可视化   收藏
    外套钢管夹层混凝土加固法利用了钢管混凝土组合结构的优良受力特性,具有材料利用率高、截面增加少和施工简便等优点,然而,目前针对组合加固柱承载力计算方面的研究成果不具有统一性和广泛的适应性,制约了该加固技术的推广应用。为此,提出外套钢管夹层混凝土加固RC短柱轴压承载力统一计算方法。该方法首先考虑混凝土约束作用的差别及钢管屈曲特性的不同,将各种截面形式组合加固柱转化为外圆内圆的截面形式。然后从截面受力平衡、材料本构方程及不同材料之间的变形协调出发,推导出具有统一表达式的外套钢管夹层混凝土加固RC短柱轴压承载力计算方法。对已有的研究成果中共计81个不同截面形式组合加固轴压短柱承载力进行计算并与试验结果对比,计算结果与试验结果比值的平均值为0.947,标准差和变异系数分别为0.077和0.081,表明采用提出的计算模型可精确且偏于安全地计算外套钢管夹层混凝土加固RC短柱的轴压承载力。
  • 李可, 王宇, 李志强, 朱俊涛
    建筑结构学报. 2022, 43(12): 82-90. https://doi.org/10.14006/j.jzjgxb.2021.0441
    摘要 ( ) PDF全文 ( )   可视化   收藏
    高强钢绞线网增强工程用水泥基复合材料(ECC)是一种高性能复合材料,可以将其用于钢筋混凝土(RC)梁抗弯加固。为研究ECC配合比、纵向钢绞线配筋率和公称直径等因素对加固梁受弯性能的影响,进行了该复合材料加固无损RC梁受弯性能试验。结果表明:高强钢绞线网增强ECC抗弯加固方法可大幅提升RC梁受弯开裂荷载、承载力、刚度及延性,并显著降低裂缝宽度;随着纵向钢绞线配筋率、ECC弹性模量和抗拉强度提高,加固梁的开裂荷载、承载力、刚度均增大;增大ECC极限拉应变可提高加固梁延性,但采用公称直径较大的钢绞线或钢绞线配筋率过大会降低加固梁延性。基于试验结果和相关力学理论,提出了高强钢绞线网增强ECC加固无损RC梁受弯承载力计算公式,计算结果与试验结果吻合良好。
  • 邓朗妮, 周峥, 黄晓霞, 雷丽贞, 廖羚
    建筑结构学报. 2022, 43(12): 91-101. https://doi.org/10.14006/j.jzjgxb.2021.0476
    摘要 ( ) PDF全文 ( )   可视化   收藏
    为明确碳纤维-光纤光栅(CFRP-OFBG)板加固对钢筋混凝土梁疲劳性能的提升作用,对5根采用内嵌光纤光栅应变传感器的碳纤维板加固的钢筋混凝土梁和两根未加固梁进行静载和常幅疲劳试验。分析了不同应力水平下碳纤维-光纤光栅板加固梁的疲劳破坏模式、疲劳寿命、跨中挠度、应变演变等情况,并与未加固梁进行对比。结果表明:随着疲劳循环次数增加和疲劳荷载幅值的增大,整个试验过程疲劳破坏呈现四阶段发展规律;加固梁跨中挠度、钢筋拉应变、混凝土压应变变化趋于平缓,直到疲劳破坏才会发生突变。 其中,CFRP-OFBG板对加固梁疲劳应变监测数据与电阻应变片数据吻合良好;在相同循环次数和疲劳荷载限值下,加固梁的疲劳变形较未加固梁的有所减小,加固梁承载力比未加固梁提高约45%。通过理论分析和试验结果拟合,推导剩余强度公式,提出一种基于剩余强度的疲劳累积损伤模型来预测疲劳寿命。相比于试验结果,采用该模型所预测加固梁的疲劳寿命偏大,误差为8.57%。
  • 敬登虎, 叶辛, 鲍宁
    建筑结构学报. 2022, 43(12): 102-112. https://doi.org/10.14006/j.jzjgxb.2021.0549
    摘要 ( ) PDF全文 ( )   可视化   收藏
    采用正交钢板带加固砖砌体墙可以有效提高其受力性能,但竖向钢板带受压时易发生局部屈曲。为研究竖向钢板带与砖砌体的协同受压工作机理,对竖向钢板带加固砖砌体的轴心受压性能进行试验研究,设计了1个未加固试件和9个竖向钢板带加固试件,影响参数包括钢板带宽度、钢板带厚度、钢板带中预压应力,分析了试件的开裂与峰值荷载、荷载-位移曲线、钢板带的应变及其所承担荷载的变化规律。结果表明:竖向钢板带加固砖砌体可以有效提高其峰值荷载和轴向刚度;螺栓杆对孔壁的挤压力会使得砖砌体提前出现裂缝;钢板带中施加预压应力可提高加固砖砌体的开裂荷载,但较大的预压应力会降低峰值荷载;加固砖砌体的荷载-位移曲线呈二次抛物线型;在预压应力和截面尺寸适当的情况下,增加钢板带的宽度或厚度可取得同样的加固效果。最后,提出了竖向钢板带加固砖砌体的轴心受压承载力计算方法,其对峰值荷载具有较好的预测精度。
  • 混凝土及组合结构
  • 王静峰, 赵吉航, 沈奇罕, 李国强
    建筑结构学报. 2022, 43(12): 113-122. https://doi.org/10.14006/j.jzjgxb.2021.0411
    摘要 ( ) PDF全文 ( )   可视化   收藏
    圆端形椭圆钢管混凝土在桥拱和桁架等结构中逐步被推广应用,然而由于施工工艺、服役环境和材料缺陷等不利因素,可能导致其出现脱空缺陷。为研究脱空缺陷对圆端形椭圆钢管混凝土相贯节点受力性能的影响,设计了10个圆端形椭圆钢管混凝土T形相贯节点并进行节点的支管加载轴压性能试验,研究脱空率、相贯类型和主支管径比等参数对其在支管轴压荷载下破坏模式、承载力、刚度和延性的影响,揭示了节点域应变分布规律和典型受力特征,并基于组件法和节点破坏机理,提出考虑脱空缺陷影响的圆端形椭圆钢管混凝土T形相贯节点支管受压的承载力计算方法。结果表明:脱空缺陷的存在会削弱圆端形椭圆钢管混凝土T形相贯节点的承载力和刚度,并随着脱空率的增大,节点的承载力和刚度持续减小;由于脱空缺陷和支管轴压荷载影响,带脱空缺陷圆端形椭圆钢管混凝土T形相贯节点可能出现支管受压屈曲、主管脱空区局部凹陷和主管挠度过大等破坏现象;提出的理论计算方法可准确预测带脱空缺陷圆端形椭圆钢管混凝土T形节点在支管受轴力作用下的承载力。
  • 魏国强, 王文达, 毛文婧
    建筑结构学报. 2022, 43(12): 123-134. https://doi.org/10.14006/j.jzjgxb.2021.0227
    摘要 ( ) PDF全文 ( )   可视化   收藏
    为研究经历地震损伤后方钢管混凝土柱的耐火性能,通过低周往复加载试验形成不同程度损伤,进行了8根方钢管混凝土柱震损后耐火试验。主要分析了震损程度和轴压比对震损后火灾下柱的截面温度分布、破坏形态、变形以及耐火极限的影响。试验结果表明:对于不同震损程度的钢管混凝土柱,相同位置测点温度无明显差异,震损对钢管和混凝土升温影响不明显;无损伤、轻度损伤和中度损伤钢管混凝土柱在高温下呈现整体弯曲变形,而严重震损钢管混凝土柱变形则主要集中在跨中损伤部位,呈现“折线”变形;震损引起的跨中损伤,导致钢管混凝土柱在高温下较早地出现了侧向位移,加速了其失效,降低了耐火极限;当轴压比为0.29时,轻度、中度和严重损伤钢管混凝土柱耐火极限分别下降至无损伤柱的61%、58.3%和41%,而轴压比为0.46时,轻度损伤对耐火极限无明显影响,严重损伤钢管混凝土柱耐火极限降低为无损伤柱的77%;随着轴压比的增大,震损对耐火极限的影响逐渐减弱。
  • 张艺欣, 刘阳, 阮杰, 刘洋, 钟沛杰, 任彧
    建筑结构学报. 2022, 43(12): 135-144. https://doi.org/10.14006/j.jzjgxb.2021.0552
    摘要 ( ) PDF全文 ( )   可视化   收藏
    装配式核心钢管混凝土 (PCSTRC) 柱可用于混合结构中的柱-柱快速拼装。为研究其抗震性能,设计并进行了5个 PCSTRC 柱、2个现浇 CSTRC 柱以及1个钢筋混凝土柱的足尺拟静力加载试验,结合数字图像相关 (DIC) 技术对柱加载全过程的变形进行了量测。分析了 PCSTRC 柱与现浇柱在破坏形态、承载力、滞回耗能和变形性能等方面的差异,以及轴压比、配钢率和装配位置对 PCSTRC 柱抗震性能的影响。结果表明: PCSTRC 柱均发生预期的弯曲破坏模式,滞回曲线饱满,承载力、刚度和耗能能力与现浇柱接近,极限位移角与延性略有增加,钢筋套筒可有效传递钢筋应力,核心钢管增强了竖向连接的可靠性;PCSTRC 柱与现浇柱的曲率分布差异主要集中在钢筋套筒及套筒下端拼接区域,在总水平位移中由滑移机制所产生的刚体转动变形占比增大。
  • 郑永乾, 梁王赓, 林益豪
    建筑结构学报. 2022, 43(12): 145-156. https://doi.org/10.14006/j.jzjgxb.2021.0554
    摘要 ( ) PDF全文 ( )   可视化   收藏
    多室T形钢管混凝土柱作为建筑结构的边柱,会受到不同角度荷载的作用。为研究不同加载角度下多室T形截面钢管混凝土柱的受力性能,进行了7个多室T形截面钢管混凝土柱试件和1个无肋对比试件的偏压性能试验研究,试验主要参数包括加载角度(45°、90°、135°和180°)、荷载偏心率(0、0.25和0.5)和长细比(31.5和41.9)。结果表明:采用多室截面能够有效延缓T形截面钢管混凝土柱的局部屈曲,承载力比无肋试件提高10.8%;加载角度135°对应的承载力最大,180°对应的承载力最小,最大相差17.3%;随着荷载偏心率或构件长细比的增加,柱峰值荷载下降,峰值荷载对应的柱中挠度增加。采用有限元软件建立了不同加载角度下多室T形截面钢管混凝土柱偏压的有限元模型,有限元计算结果与试验结果吻合良好。在参数分析基础上,获得了不同加载角度下多室T形截面钢管混凝土柱稳定系数和相对轴力-弯矩相关曲线简化计算方法,简化计算结果得到了试验结果的验证。
  • 余玉洁, 聂熙哲, 赵凤涛, 丁发兴, 陈俊, 郭风琪
    建筑结构学报. 2022, 43(12): 157-166. https://doi.org/10.14006/j.jzjgxb.2021.0508
    摘要 ( ) PDF全文 ( )   可视化   收藏
    为研究适用于中高层钢结构住宅中的钢管混凝土边柱-横肋波纹钢板异形剪力墙的抗侧力性能,针对C形剪力墙及增设竖向加劲梁和内置钢管混凝土柱构造的两种改进C形剪力墙开展了基于层间位移角控制的拟静力试验研究,考察了三种构造下剪力墙的承载力和失效模式、变形能力、刚度及耗能能力。研究表明:钢管混凝土边柱-横肋波纹钢板异形剪力墙有效实现了竖向荷载由钢管混凝土柱承担、水平抗剪由波纹钢板承担的分离式承载;波纹钢板在宽厚比较大时仍然会产生面外失稳,并造成受剪承载力的突降;设置加劲梁和内插方钢管混凝土隔断柱的复合墙体构造均能有效约束波纹钢板的失稳行为,使得波纹钢板实现剪切板域的剪切屈服并得到饱满的滞回曲线;两种改进构造下横肋波纹钢板异形剪力墙表现出良好的延性和耗能能力。
  • 蒋路, 赫约西, 杨宇焜, 徐国军, 黄亚男
    建筑结构学报. 2022, 43(12): 167-178. https://doi.org/10.14006/j.jzjgxb.2021.0569
    摘要 ( ) PDF全文 ( )   可视化   收藏
    为研究装配式部分包覆钢-混凝土组合剪力墙(简称“装配式PEC剪力墙”)的抗震性能,完成了3个短肢剪力墙和4个一般剪力墙的低周反复加载试验,观察装配式部分包覆钢-混凝土组合剪力墙在水平循环荷载下的破坏全过程,并分析该类剪力墙的滞回性能、承载力、变形能力、刚度退化和耗能能力。研究表明:组合剪力墙破坏时均表现为典型的压弯破坏,滞回曲线较为饱满,耗能性能良好;对于短肢剪力墙,随着区格数量的减少,承载力和延性随之降低;对于一般剪力墙,区格数量、增设纵筋和腹板开孔等构造措施对承载力和延性影响不大;极限层间位移角范围为1/83~1/56,基本满足罕遇地震下对组合剪力墙层间位移角限值的要求,说明装配式部分包覆钢-混凝土组合剪力墙具有良好的变形能力。同时,建立有限元模型,由有限元分析所得滞回曲线、骨架曲线与试验结果吻合,破坏模式一致,表明有限元模型合理可靠,可为后续PEC剪力墙参数分析提供依据。
  • 马恺泽, 马煜东, 邢国华, 刘伯权
    建筑结构学报. 2022, 43(12): 179-188. https://doi.org/10.14006/j.jzjgxb.2021.0471
    摘要 ( ) PDF全文 ( )   可视化   收藏
    为了研究配筋超高性能混凝土梁的受剪性能,对1根配筋高强混凝土梁和8根配筋超高性能混凝土梁进行了受剪性能试验,主要变化参数包括剪跨比、钢纤维体积掺量和配箍率等。试验结果表明:所有梁的破坏模式均为剪切破坏,与配筋高强混凝土梁相比,配筋超高性能混凝土梁裂缝的发展更充分、宽度更小、分布更密集;钢纤维体积掺量和配箍率的增大均会提高梁的刚度、变形能力和承载力,并延缓其刚度退化速率;剪跨比的增加虽然可以提高梁的变形能力,但是降低了其承载力和刚度;混凝土开裂后,钢纤维可以“桥接”裂缝,与箍筋共同承担裂缝处的拉力,延缓箍筋应变的发展。最后,基于修正压力场理论,提出了配筋超高性能混凝土梁受剪承载力计算方法,并与法国AFGC-Setra 2013和韩国KCI-2012中建议的计算方法进行了对比,结果表明,建立的计算方法可以准确地预测配筋超高性能混凝土梁的受剪承载力。
  • 刘茜, 张津滔, 高子祁, 郭瑞,
    建筑结构学报. 2022, 43(12): 189-198. https://doi.org/10.14006/j.jzjgxb.2021.0403
    摘要 ( ) PDF全文 ( )   可视化   收藏
  • 竹木结构
  • 薛建阳, 梁譞文, 宋德军, 吴晨伟
    建筑结构学报. 2022, 43(12): 199-209. https://doi.org/10.14006/j.jzjgxb.2021.0603
    摘要 ( ) PDF全文 ( )   可视化   收藏
    为研究竖向偏心荷载对柱头科斗栱受力性能的影响,对3个柱头科斗栱足尺试件进行不同偏心率下的竖向加载试验,得到了斗栱的破坏形态、刚度退化和变形能力。轴心受压破坏模式主要是大斗的压溃和正心瓜栱与单翘的劈裂,偏心受压时大斗和平板枋出现明显的转动,造成斗栱的抗压刚度与承载力降低。采用ABAQUS有限元软件对3种偏心率的斗栱进行有限元分析,模拟结果与试验结果吻合较好。在此基础上,对斗栱进行了参数分析,研究了竖向荷载偏心率,木材的抗压强度、弹性模量和摩擦系数对其受力性能的影响。结果表明:竖向荷载的偏心率越大,则斗栱的转动角度越大,其承载力越低;当偏心率为0.3时,斗栱的承载力比轴心受压时降低了41.64%;进入塑性阶段后,偏心受压斗栱的刚度退化较显著;随木材顺纹抗压强度和顺纹弹性模量的增加,斗栱的竖向承载力提高;木材的摩擦系数越大,斗栱产生的竖向位移越小。
  • 谢启芳, 张保壮, 张利朋, 苗壮
    建筑结构学报. 2022, 43(12): 210-222. https://doi.org/10.14006/j.jzjgxb.2021.0514
    摘要 ( ) PDF全文 ( )   可视化   收藏
    干缩裂缝是木柱构件中的主要残损之一。为研究自然干裂木柱的受力性能,对9根不同干裂程度和不同柱高的圆木柱进行了轴压试验,基于各木柱的破坏形态、荷载-轴向位移、荷载-侧移、荷载-应变等关系曲线,分析了干裂木柱的破坏机制及其承载力和刚度退化规律。试验结果表明:干缩裂缝对木柱的破坏模式影响较小,干裂木柱和完好木柱的破坏形态均表现为受压屈曲破坏;当干裂木柱的综合残损程度介于4.8%~23.73%之间时,干缩裂缝对木柱的受压承载力、初始轴压刚度以及延性有着显著影响;当综合残损程度小于4.8%时,干缩裂缝对木柱的受压性能影响较小;相同柱高下干缩裂缝会使得柱中轴向和横向峰值应变增加;木柱峰值荷载对应的裂缝张开位移随着裂缝深度损失率的增加而增大。基于干裂木柱试验结果及其受力机理,通过考虑稳定系数、截面面积损失和初始偏心距影响的多参数耦合作用,提出了干裂木柱综合残损程度量化指标,建立了干裂木柱受压承载力和刚度退化模型。经验证,受压承载力和刚度退化模型计算结果与试验结果吻合较好。
  • 谢启芳, 张毅, 吴亚杰, 张利朋
    建筑结构学报. 2022, 43(12): 223-232. https://doi.org/10.14006/j.jzjgxb.2021.0416
    摘要 ( ) PDF全文 ( )   可视化   收藏
    为减轻胶合木结构的地震损伤和提升结构抗震性能,提出在木柱柱脚套入钢质柱靴,柱靴通过设置碟形弹簧的高强螺栓与基础连接,形成一种基于摇摆原理的配置柱靴胶合木柱。对4个1/2缩尺的配置柱靴胶合木柱进行了低周反复荷载试验,研究了柱靴底板宽度、碟形弹簧初始预紧力与刚度对木柱抗侧力、滞回性能及自复位性能等的影响。结果表明:不同于普通螺栓钢填板柱脚的横纹劈裂破坏,配置柱靴胶合木柱主要表现为与柱靴接触部位木材的横纹局部损伤;在竖向荷载和碟簧预紧力的共同作用下,配置柱靴胶合木柱的滞回曲线为典型的“双旗帜形”,木柱表现出良好的自复位能力和耗能能力;增大柱靴底板宽度、碟形弹簧初始预紧力和刚度,均会增大木柱的抗侧力、耗能能力与自复位能力。在分析配置柱靴胶合木柱工作机理的基础上,建立了配置柱靴胶合木柱弯矩-位移角简化模型,模型计算结果与试验结果吻合较好。
  • 王雪亮, 李菁, 王秀鑫, 李文定, 张明茸, 曹万铖, 陈金良
    建筑结构学报. 2022, 43(12): 233-242. https://doi.org/10.14006/j.jzjgxb.2021.0401
    摘要 ( ) PDF全文 ( )   可视化   收藏
    针对轻木-混凝土混合结构在地震作用下上部木结构反应放大的问题,提出在两种结构层间采用木制隔震装置形成隔震体系,并设计两层足尺模型进行地震模拟振动台试验,研究该体系的层间隔震效果。依次输入峰值加速度为0.10g~0.40g的3种地震波,分别对层间隔震模型和非隔震模型在纵横向的地震响应进行试验研究。结果表明:木制隔震装置有效降低了上部轻木结构的加速度反应,隔震层上下最大加速度降幅可达38%;隔震结构的相对位移集中于隔震层,上部轻木结构的层间位移较小,起到了良好的隔震作用;罕遇地震作用下,隔震层发生明显的相对位移,Taft波、人工波和El Centro波作用下最大相对位移分别为82.26、82.92 mm和57.2 mm,说明隔震装置能有效降低模型的地震反应,且隔震效果与输入地震波的频谱特性有关。此外,下部混凝土结构与上部轻木结构的刚度比对隔震装置的隔震效果有一定的影响,刚度比较大时,其隔震机理及效果类同于基底隔震,试验结果表明隔震效果良好;当刚度比较小时,其隔震机理及效果类同于TMD被动调谐减震,要达到理想的减震效果有待进一步的参数优化。
  • 田黎敏, 李宸, 廖述荟, 寇跃峰, 郝际平
    建筑结构学报. 2022, 43(12): 233-242. https://doi.org/10.14006/j.jzjgxb.2021.0429
    摘要 ( ) PDF全文 ( )   可视化   收藏
    为延缓胶黏剂的失效,防止薄壁钢管过早发生屈曲,同时应对竹材防火、防虫、防腐性能差的缺点,提出一种CFRP约束竹条-薄壁圆钢管组合柱。制作9个短柱和4个长柱并对其进行轴心受压试验,继而基于验证后的有限元模型,分析竹条厚度、CFRP层数、钢管截面以及长细比对轴压性能的影响规律,在此基础上提出组合柱轴压承载力理论计算公式。研究结果表明:组合柱的破坏模式为柱中材料破坏、端部压溃破坏及整体失稳;组合柱的承载力随着竹条厚度和钢管直径的增加而增大,随着长细比的增大而减小;CFRP在中小长细比(λc≤50)组合柱中的环箍作用显著,但在大长细比(λc>50)组合柱中作用有限;组合柱发生整体失稳破坏的长细比界限值为19;各参数对组合柱承载力提升效率的影响不同。试验、有限元模拟及理论分析的结果吻合较好,承载力公式的计算结果与试验或有限元分析结果的平均误差均低于5.0%,最大误差均低于10%,说明轴心受压承载力计算公式具有较高的精度,适用于预测CFRP约束竹条-薄壁圆钢管组合柱的承载力。
  • 张家亮, 童科挺, 何佳伟, 单奇峰, 李玉顺
    建筑结构学报. 2022, 43(12): 255-266. https://doi.org/10.14006/j.jzjgxb.2021.0567
    摘要 ( ) PDF全文 ( )   可视化   收藏
    为进一步提高钢-竹组合结构抗震性能,提出自变形耗能节点、翼缘摩擦型耗能节点、转动摩擦型耗能节点与后张预应力耗能节点的构造方法,设计制作了9个节点试件,并对其实施低周反复加载试验,观测节点变形形态与破坏特征,得到节点梁端位移-荷载滞回曲线与骨架曲线,并探讨骨架曲线特征点计算方法,分析各类型耗能节点的承载力、刚度、延性、耗能水平与转动性能,并与设置带肋T形连接件的节点进行对比。结果表明:各类型耗能节点构造合理,具有较高的承载力、安全储备与良好的滞回耗能水平;CSIRO法与CEN法可较好地预测自变形耗能节点、翼缘摩擦型耗能节点与后张预应力耗能节点的[JP2]屈服荷载,几何法、等能量法与最远点法适用于转动摩擦型耗能节点屈服荷载的测算;各耗能节点均为中高延性节点,具有与带肋T形连接件节点相当的初始转动刚度与大于0.03 rad的塑性转角;与带肋T形连接件节点相比,耗能节点位移延性系数提升了13.05%~63.48%,转动摩擦型耗能节点与后张预应力耗能节点的屈服转角与塑性转角提高了27.23%~86.85%。
  • 基础理论与共性技术
  • 李雄彦, 刘人杰, 景辉, 薛素铎, 樊钦鑫, 卢珍
    建筑结构学报. 2022, 43(12): 267-275. https://doi.org/10.14006/j.jzjgxb.2021.0653
    摘要 ( ) PDF全文 ( )   可视化   收藏
    由于振动台尺寸的限制,面向工程的大跨度空间结构振动台试验存在动力缩尺模型比例小的问题,缩尺模型设计和加工较为困难。针对上述问题,采用奥氏体304不锈钢作为替代材料,基于热挤压成型技术制作符合相似关系的非标准截面杆件,利用氩弧焊完成杆件与节点的连接。以兰州奥体中心综合馆跨度94 m的弦支穹顶屋盖结构1∶20动力缩尺模型设计制作为例,阐述了小比例动力缩尺模型的材料选择、杆件设计与加工方法、动力相似关系确定方法、附加质量设计和连接节点设计与加工方法等。基于有限元模拟和振动台试验,对比了原型结构和缩尺模型在静载下的节点位移和杆件内力以及二者的自振频率。结果表明:提出的小比例缩尺模型设计方法具有材料易于获得、杆件和节点易于加工、节点连接可靠的特点,原型结构和缩尺模型的相似关系吻合较好。
  • 石开荣, 林金龙, 姜正荣, 区彤
    建筑结构学报. 2022, 43(12): 276-289. https://doi.org/10.14006/j.jzjgxb.2021.0301
    摘要 ( ) PDF全文 ( )   可视化   收藏
    针对自由曲面空间网格结构形状优化问题,将模拟植物生长算法(PGSA)引入结构形状优化领域。根据PGSA基本原理,提出双生长点并行生长机制、迭代稳定性判断机制及增强型随机多向搜索机制,并和基于生长空间限定与并行搜索算法(GSL&PS-PGSA)相结合,建立了基于融合GSL&PS-PGSA的自由曲面空间网格结构形状优化方法。该方法以广义形状参数表征形状优化设计变量,可有效避免产生奇异结构并提高优化效率。在此基础上,给出了相应的形状优化模型及流程,并采用MATLAB及ANSYS二次开发语言APDL编制了优化程序。对典型合理拱结构曲面及自由曲面网壳结构进行算例分析,结果表明:所提出的PGSA新机制显著提升了算法的寻优能力及稳定性;基于融合GSL&PS-PGSA的自由曲面空间网格结构形状优化方法,其优化效果明显,发掘了结构的合理形态,改善了结构的受力性能,适用于多变量、多荷载组合及复杂约束的大规模自由曲面空间网格结构形状优化,为复杂形体空间结构的设计选型提供了新的途径。
  • 崔京兰, 郑延丰, 罗尧治
    建筑结构学报. 2022, 43(12): 290-299. https://doi.org/10.14006/j.jzjgxb.2021.0444
    摘要 ( ) PDF全文 ( )   可视化   收藏
    空间网格结构的形态创建需要同时考虑建筑外形的美观性、结构受力的合理性和施工建造的便捷性。基于可展曲面的几何特性提出了一种复合可展曲面网格结构形态创建方法。首先基于Bézier函数给出了单一可展曲面的几何描述,并通过引入G0(两个曲线端点连续的连接)、G1(一阶微分连续的连接)连接条件提出了复合可展曲面的构建方法;其次,基于曲面表面积最小化的优化数学模型给出了复合可展曲面形态存在的判定方法;将曲面离散为网格结构后,利用结构系统应变能最小化的优化数学模型,建立了复合可展曲面网格结构的形态创建方法。从设计变量变化范围、导线拼接方式、初始直纹面等方面,通过算例验证了所提出的复合可展曲面网格结构形态创建方法的有效性。研究结果表明,不同的初始结构会优化得到不同的受力合理的网格结构形态。通过不同的连接方式,可以实现满足建筑意图的各种形式可展曲面结构形态。所提出的复合可展曲面网格结构形态创建方法,在保证施工建造便捷性的同时兼顾了结构受力合理性。
  • 李潇雅, 张仁波, 金浏, 杜修力
    建筑结构学报. 2022, 43(12): 300-310. https://doi.org/10.14006/j.jzjgxb.2021.0386
    摘要 ( ) PDF全文 ( )   可视化   收藏
    火灾会引起钢筋与混凝土材料力学性能的劣化,从而影响钢筋与混凝土界面的黏结-滑移性能。为研究不同高温工况下变形钢筋与混凝土的黏结性能,建立了考虑混凝土材料非均匀性和带肋钢筋表面特性的三维细观模型。通过拉拔试验模拟验证了细观力学模型的有效性,并分析不同高温工况对黏结性能的影响。结果表明:采用考虑混凝土非均匀性的数值模型,可以更好地观察钢筋与混凝土界面间的黏结破坏机理;相较于高温下的试件,冷却后的试件黏结性能较好;自然冷却和洒水冷却对试件黏结破坏机理、钢筋应力分布和黏结应力-滑移曲线的影响不大;不同高温工况下,黏结强度随温度升高呈线性下降趋势,极限滑移与温度之间表现出非线性增长关系。通过对不同高温工况下黏结强度和滑移的分析,结合经验公式,给出了预测高温下和冷却后黏结性能的计算式,其能较好地描述高温下、自然冷却后和洒水冷却后,变形钢筋与混凝土之间黏结强度和极限滑移随温度的变化。
  • 许强, 叶继红,
    建筑结构学报. 2022, 43(12): 311-321. https://doi.org/10.14006/j.jzjgxb.2021.0326
    摘要 ( ) PDF全文 ( )   可视化   收藏
    在钢结构中梁柱的连接多以半刚性连接为主,可靠的半刚性连接数值计算方法对于钢结构设计和分析具有重要的工程实用价值。为此,基于杆系离散元(MDEM)理论,提出了离散元分析模型,通过在杆件末端设置虚拟的多自由度弹簧单元以模拟钢结构的半刚性连接行为。与传统有限元法不同,在离散元法中,虚设的零长度弹簧单元无长度但有质量,并且作为基本分析单元,直接参与计算过程,其响应即为半刚性连接行为。算例分析表明:在半刚性连接离散元模型中,通过改变零长度弹簧刚度可实现对刚接、铰接和半刚性连接的模拟;半刚性连接会显著降低结构整体刚度,静力荷载作用下若将其简化为刚性,会高估结构的承载能力;当施加的动荷载频率与结构基本频率相近时,与刚性和线性连接相比,非线性连接时材料的塑性变形会引起能量耗散,从而避免产生共振。