2018年, 第39卷, 第S1期 刊出日期:2018-09-05
  

  • 全选
    |
    结构抗风专题
  • 庄翔, 郑毅敏, 郑晓芬, 董欣
    建筑结构学报. 2018, 39(S1): 1-8. https://doi.org/10.14006/j.jzjgxb.2018.S1.001
    摘要 ( ) PDF全文 ( )   可视化   收藏
    通过刚性模型风洞测压试验,对4种不同圆角率(即圆角半径与模型短边迎风宽度之比分别为0、5%、10%和20%)的矩形截面高层建筑表面风荷载特性进行研究。对比了不同圆角率下建筑表面的风压分布与相关特性:圆角处理使得建筑迎风面边缘倒圆角处出现较大平均风压、极值风吸力和脉动风压;在侧风面上,平均与脉动风压梯度变化范围随圆角率的增大而逐渐减小,且横向相关性明显增强。分析了建筑顺风向与横风向的整体风力,圆角处理通过促进再附着从而减小尾流宽度,可降低高层建筑的顺风向阻力和倾覆弯矩,降幅随着圆角半径的增大而提升,同时,横风向升力和倾覆弯矩也将有所下降。
  • 单文姗, 张建, 李波, 杨光, 程孝远, 杨庆山,
    建筑结构学报. 2018, 39(S1): 9-16. https://doi.org/10.14006/j.jzjgxb.2018.S1.002
    摘要 ( ) PDF全文 ( )   可视化   收藏
    区别于标准等高柱面双跨屋盖的风荷载特性,不等高屋盖之间形成较强的干扰作用,形成特有的分布形态和数值。针对高低跨柱面屋盖结构,采用风洞试验方法进行测压试验,获得全风向角下的测压数据,并对典型风向角下的平均风压、脉动风压和全风向极值风压的分布特性进行分析。结果表明,尽管屋盖表面平均风压以负压为主,但是受到屋盖高跨部分与低跨部分相互之间的干扰效应,生成区别于等高柱面双跨屋盖的气流分离与再附效应,特别对于檐口、屋脊及屋檐角部位置,会出现负压极值乃至局部负压梯度极值。
  • 吴波, 李少鹏, 张亮亮, 李明水, 杨阳
    建筑结构学报. 2018, 39(S1): 17-22. https://doi.org/10.14006/j.jzjgxb.2018.S1.003
    摘要 ( ) PDF全文 ( )   可视化   收藏
    在正弦脉动风作用下,采用三维大涡模拟(3D LES)研究了截面宽高比为5∶1矩形柱体的非定常空气动力学特性。对比均匀流作用下柱体表面压力系数的风洞试验值与数值计算结果,二者吻合很好,验证了3D LES的计算精度。首先分析了来流波长对柱体表面平均再附长度的影响,发现当来流波长处于(0.25~5)λs0s0为自然涡脱的波长)范围时,平均再附长度随来流波长的增加而增加。而当来流为长波脉动(波长不小于5 λs0)时,平均再附长度与均匀流下基本一致。在短波脉动(波长不大于0.25λs0)来流作用下,平均再附长度与来流波长无关,但明显较长波来流的短。柱体表面平均压力系数受脉动风的影响与平均再附长度的变化一致,再附长度的减小引起平均压力系数曲线的斜率、最大吸力和分离点平均压力系数均有所增大。另一方面,柱体表面脉动压力系数随来流波长的增加而减小,对于短波(波长小于0.5 λs0)脉动来流,表面脉动压力系数与驻点脉动压力系数的比值与来流条件无关。此外,当来流波长处于(0.375~1.33)λs0范围时,尾流的漩涡脱落频率刚好等于来流脉动频率的一半,即出现了顺流向正弦脉动流作用下漩涡脱落的锁定现象。
  • 张建, 杨娜, 杨光, 杨庆山,
    建筑结构学报. 2018, 39(S1): 23-28. https://doi.org/10.14006/j.jzjgxb.2018.S1.004
    摘要 ( ) PDF全文 ( )   可视化   收藏
    针对大尺度高低跨柱面屋盖体系风压分布变化梯度较大、跨间相互干扰以及此类屋盖风压分区无相关规范可查阅等问题,在得到各种风向下最不利极值风压的基础上,采用K-means聚类的风压系数快速分区方法将高低跨柱面屋盖表面划分为多个区域,并计算了各区域的分区风压系数。同时,在高低跨柱面屋盖风压系数分区研究过程中,对K-means方法的k值取值范围和最佳k值确定方法进行针对性改进。结果表明,高低跨柱面屋盖的边缘属于风敏感部位,而中间部分风压变化较小,因而在进行大尺度平屋盖抗风设计时,采用聚类方法进行风压分区更为合理。
  • 李浩弘, 吴波, 张亮亮, 李少鹏, 杨阳
    建筑结构学报. 2018, 39(S1): 29-35. https://doi.org/10.14006/j.jzjgxb.2018.S1.005
    摘要 ( ) PDF全文 ( )   可视化   收藏
    基于1∶60节段模型风洞试验,研究了桥面附属构件对宽高比为12的宽体扁平箱梁涡激振动性能的影响。研究发现,成桥态主梁在正攻角(+5°,+3°)下发生了显著的竖弯和扭转涡振,而提高人行护栏透风率或内移检修车轨道均可同时降低两种涡振的振幅,且提高人行护栏透风率还可缩短两种涡振的风速锁定区范围。采用三维大涡模拟(3D LES)进行了施工态和成桥态的静态绕流计算,发现不合理附属构件将使箱梁上下表面均形成大范围流动分离,在迎风侧人行护栏、两道检修车轨道三处分离点产生的漩涡各自以不同频率向尾流脱落,从而诱发较强的涡振响应。
  • 结构隔震及抗震专题
  • 刘文洋, 白那, 李国强
    建筑结构学报. 2018, 39(S1): 36-43. https://doi.org/10.14006/j.jzjgxb.2018.S1.006
    摘要 ( ) PDF全文 ( )   可视化   收藏
    为研究高层屈曲约束钢板墙-混凝土框架结构的抗震性能,分别设计了一个10层钢筋混凝土框架结构和屈曲约束钢板墙-混凝土框架结构模型,进行了地震作用下动力非线性分析。结果表明:屈曲约束钢板墙可显著减小高层钢筋混凝土框架结构在地震作用下的层间位移,同时在罕遇地震作用下框架中塑性铰的数量也有大幅减少,表现出良好的抗震性能。在此基础上,综合规范对框架结构和框架-抗震墙结构抗震等级和柱轴压比限值的规定,并结合屈曲约束钢板墙-混凝土框架结构的受力特点,提出了高层屈曲约束钢板墙-混凝土框架结构的抗震设计建议。建议屈曲约束钢板墙的边缘构件按框架结构确定抗震等级和柱的轴压比限值,其他框架部分根据其承担的地震倾覆力矩比例大小,按框架结构或框架-抗震墙结构确定抗震等级和柱的轴压比限值。
  • 廖桥, 李碧雄, 石宇翔, 孟春阳
    建筑结构学报. 2018, 39(S1): 44-51. https://doi.org/10.14006/j.jzjgxb.2018.S1.007
    摘要 ( ) PDF全文 ( )   可视化   收藏
    为研究轻质墙板填充墙钢筋混凝土框架与页岩空心砖砌体填充墙钢筋混凝土框架的抗震性能差异,以及填充墙与框架的连接形式对填充墙框架抗震性能的影响,进行了2榀轻质墙板填充墙钢筋混凝土框架试件和1榀页岩空心砖砌体填充墙钢筋混凝土框架试件在水平单向重复推覆力作用下的加载试验,对试验现象、荷载-位移曲线、刚度退化曲线、塑性转角、剪切变形角、层间位移角和位移延性系数进行分析。研究结果表明:与页岩空心砖砌体相比,轻质墙板与框架协同工作的能力更强;当轻质墙板与框架为柔性连接时,初裂荷载最小,但结构的屈服荷载最大,变形能力也最强;页岩空心砖砌体与框架采用刚性连接时,峰值荷载最小,变形能力也最弱,结构的抗震性能最差;轻质墙板与框架为刚性连接时,峰值荷载最大;L形卡件对轻质墙板偏转可起到一定的约束作用;纤维网防裂带对保护轻质墙板填充墙的作用明显。
  • 侯钢领, 吴灵枢, 李孟, 宋天舒, 孙峰
    建筑结构学报. 2018, 39(S1): 52-59. https://doi.org/10.14006/j.jzjgxb.2018.S1.008
    摘要 ( ) PDF全文 ( )   可视化   收藏
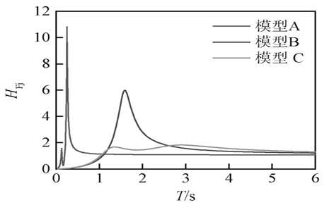
    为提高核电站的抗震安全水平,基于第III代核电站双层安全壳(内安全壳、外安全壳)的结构特点和非能动安全技术要求,提出了基础隔震(BIS)-调频质量阻尼(TMD)抗震结构。以我国“华龙一号”核电站为研究对象,以满足核电站基本安全功能对结构特殊抗震要求为目标,应用符合非能动技术要求的隔震减震技术,给出了符合双层安全壳结构特点的抗震设计理念。基于基础隔震核电站研究成果,应用上述抗震设计理念,在增加附加质量很小的情况下,实现了BIS与TMD相结合的抗震结构设计。与传统非隔震模型和基础隔震模型比较,研究了该混合抗震结构的减震机理。结果表明:混合抗震结构综合了BIS与TMD的优点,避免了BIS和TMD各自的内在缺陷,进而验证了提出的抗震结构的减震效果,可以满足核电站的特殊抗震要求。
  • 韩流涛, 葛楠, 苏幼坡, 富腾
    建筑结构学报. 2018, 39(S1): 60-70. https://doi.org/10.14006/j.jzjgxb.2018.S1.009
    摘要 ( ) PDF全文 ( )   可视化   收藏
    为解决采空区范围内建筑沉陷变形和结构抗震差的问题,提出了摩擦摆隔震-悬挂复合结构体系。依据拉格朗日方程得出了体系的运动方程,并采用MATLAB语言编制了龙格-库塔法(Runge-Kutta)的求解程序。以一幢5层的摩擦摆-隔震悬挂复合结构体系为例探讨了其减震效果。结果表明:在计算摩擦摆隔震-悬挂复合结构体系的地震动力反应时必须考虑接触面滞滑效应的影响,滞滑效应会降低体系的减震效果;除顶层的鞭梢效应外,一般楼层层间位移减震效果可达70%~80%;楼层加速度减震效果显著,第4~5层的加速度减震效果均达到约90%,而且不受所输入地震波特性的影响;摩擦系数、楼层阻尼器阻尼系数对减震效果有明显的影响,而吊杆长度、滑道半径对减震效果的影响较小。
  • 邹祖银, 李少强, 朱占元, 张自兴, 常淑珍,
    建筑结构学报. 2018, 39(S1): 71-78. https://doi.org/10.14006/j.jzjgxb.2018.S1.010
    摘要 ( ) PDF全文 ( )   可视化   收藏
    为研究带阻尼填充墙钢框架的抗震性能,设计了足尺的阻尼填充墙钢框架、普通填充墙钢框架试件和空钢框架试件各1榀,对试件进行了低周反复荷载试验。对比分析了不同试件在低周反复荷载作用下的破坏现象、滞回性能、骨架曲线、刚度退化和耗能能力等。试验结果表明:阻尼填充墙钢框架在相同的荷载作用下墙体的开裂程度比普通填充墙的轻,墙体开裂荷载有一定提高;耗能砂浆和阻尼层起到耗散地震能量的作用,阻尼填充墙钢框架具有良好的位移延性;相对于普通填充墙钢框架墙体形成的“X”剪切裂缝,阻尼填充墙钢框架的墙体裂缝被阻尼层隔断,改变了填充墙的破坏模式;耗能砂浆和阻尼层改变了填充墙的内力分布和裂缝开展方式,提高了阻尼填充墙钢框架的抗震性能。因此,耗能砂浆和阻尼层对填充墙钢框架的受力模式、滞回性能、延性等抗震性能有利,可作为结构设计时参考应用。
  • 潘毅, 陈侠辉, 赵俊贤, 白久林, 赵崇锦
    建筑结构学报. 2018, 39(S1): 79-86. https://doi.org/10.14006/j.jzjgxb.2018.S1.011
    摘要 ( ) PDF全文 ( )   可视化   收藏
    现有减震设计方法需进行繁琐的迭代,其效率有待提高。基于剪力比的概念,采用黏弹性阻尼腋撑,设置罕遇地震下腋撑与框架结构的耗能比,提出了基于剪力比的黏弹性阻尼腋撑-RC框架结构抗震设计方法。选取7条地震动记录,根据不同剪力比 α 对6层、9层、12层模型设置不同参数的腋撑,进行罕遇地震下弹塑性动力时程分析。研究了腋撑耗能占地震输入结构总能量的关系,并将各模型最大层间位移角与GB 50011—2010《建筑抗震设计规范》的规定值进行了对比。从层间位移角、层剪力、顶层最大位移值、顶层峰值加速度等方面比较了结构的减震效果。研究结果表明:对于高40m以下的框架结构,耗能比为0.6时,剪力比 α 的合理取值范围在0.10~0.20之间;剪力比α取0.15时,RC框架结构的最大层间位移角、顶层最大位移值均减少34%~45%,层剪力、顶层加速度峰值均减少19%~23%。
  • 张超, 黄炜元, 徐昕, 王艮平
    建筑结构学报. 2018, 39(S1): 87-92. https://doi.org/10.14006/j.jzjgxb.2018.S1.012
    摘要 ( ) PDF全文 ( )   可视化   收藏
    为研究扇形铅黏弹性阻尼器与加固框架结构之间的匹配关系及其对加固框架抗震性能的影响规律,用ABAQUS软件建立了对比空框架和加固框架的精细化有限元模型,结合试验试件骨架曲线及破坏形态验证了其合理性。提出扇形铅黏弹性阻尼器加固框架的综合设计原则,设定阻尼器扇形有效半径与框架柱净高之比为设计尺寸比,在此基础上,对不同设计尺寸比的加固框架进行对比分析。分析结果表明,合理设置的扇形铅黏弹性阻尼器可以显著提高加固框架的抗震性能,保护梁柱节点核心区;当设计尺寸比取值超过0.24时,会导致加固试件较早达到峰值荷载,但其后承载力又急剧衰减;建议扇形铅黏弹性阻尼器加固框架的设计尺寸比宜控制在0.1~0.2之间,实际设计中应依据不同加固需求选取相应的设计尺寸比。
  • 张艳霞, 江锟, 孙宇, 李全刚
    建筑结构学报. 2018, 39(S1): 93-102. https://doi.org/10.14006/j.jzjgxb.2018.S1.013
    摘要 ( ) PDF全文 ( )   可视化   收藏
    装配式自复位钢框架具有震后结构自动复位、结构残余变形及损伤较小、可以恢复结构正常使用功能等优势。但是当装配式自复位钢框架跨度较大时,常因刚度不足导致其层间位移角不能满足抗震设计规范限值要求。为此,提出了中间柱型阻尼器装配式自复位钢框架,在拟动力试验研究基础上,通过有限元软件ABAQUS进行数值模拟,并与试验结果进行对比分析;在数值模拟校验的基础上,通过有限元分析研究了施加竖向活荷载对中间柱型阻尼器工作机制的影响。研究结果表明:数值模拟与子结构拟动力试验结果在结构位移峰值、滞回性能、索力变化等方面吻合较好,数值模拟方法可靠;中间柱型阻尼器可提高框架结构的抗侧刚度,有效控制结构层间位移角,同时提高结构耗能能力,延缓主体结构塑性发展进而保护主体结构,减小结构残余变形并控制损伤;中间柱型阻尼器装配式自复位钢框架具有良好的自复位能力,竖向活荷载对中间柱型阻尼器滞回性能及耗能能力影响不大。
  • 白久林, 程峰, 金双双, 潘毅, 赵俊贤
    建筑结构学报. 2018, 39(S1): 103-110. https://doi.org/10.14006/j.jzjgxb.2018.S1.014
    摘要 ( ) PDF全文 ( )   可视化   收藏
    具有向前方向性效应和滑冲效应的近断层脉冲型地震动对建筑结构的破坏已受到工程界的广泛关注。为了解设置防屈曲支撑(BRB)的混凝土框架在近断层脉冲型地震动激励下的抗震性能,采用基于能量平衡的塑性设计方法完成了3个V形BRB支撑的RC框架结构的抗震设计。分别选取具有向前方向性效应和滑冲效应的脉冲型以及非脉冲型三组共36条近断层地震动,对结构进行罕遇地震作用下的非线性动力分析,研究了结构的最大层间位移角、最大顶点加速度、最大顶点位移和BRB的轴向性能;分析和评估了结构在3条典型地震动激励下的地震响应。结果表明:近断层脉冲型地震动比非脉冲型地震动对结构会产生更大的地震响应,且响应显著集中于速度脉冲时刻;BRB能充分发挥其耗能特性,提高RC框架结构体系的抗震性能。
  • 李延和, 李宁, 李林峰, 汪伟
    建筑结构学报. 2018, 39(S1): 111-117. https://doi.org/10.14006/j.jzjgxb.2018.S1.015
    摘要 ( ) PDF全文 ( )   可视化   收藏
    自控耗能无黏结部分预应力混凝土(UPPC)框架指的是在UPPC框架中采用折线型无黏结预应力筋,并在无黏结预应力筋转折处合理设置自控耗能元件来调减罕遇地震作用下无黏结预应力筋的应力,使得在罕遇地震作用时释放梁内部分预应力,形成梁铰耗能机制,从而形成强柱弱梁的延性框架。基于能力谱法,采用ABAQUS有限元软件对已有的两榀试验框架(普通UPPC框架KJ1和自控耗能UPPC框架KJ2)进行了地震烈度7度、8度和9度罕遇地震作用下的有限元分析。分析结果表明:在抗震设防烈度7度和8度罕遇地震下,两榀框架抗震能力基本相同;9度罕遇地震下,KJ1框架不存在性能点,即KJ1框架无法抵抗9度罕遇地震,KJ2框架的顶层位移虽然超过规范规定的钢筋混凝土框架结构弹塑性限值,但KJ2框架抗震能力仍优于KJ1框架。
  • 李华, 王万祯, 朱放, 吴晓聪, 倪威康
    建筑结构学报. 2018, 39(S1): 118-126. https://doi.org/10.14006/j.jzjgxb.2018.S1.016
    摘要 ( ) PDF全文 ( )   可视化   收藏
    通过对变截面方钢管轻骨料混凝土柱-H钢梁圆弧扩大头隔板贯通节点和基本型节点进行低周往复加载试验,分析了该类节点的破坏形态、滞回性能、延性、承载力、刚度退化与耗能能力等。结果表明:隔板圆弧扩大头节点先在隔板圆弧扩大区形成塑性铰,随后梁腹板焊接孔开裂,梁翼缘对接焊缝延性拉断;基本型节点在梁翼缘对接焊缝侧边开裂,裂纹扩展迅速至脆断;隔板圆弧扩大头构造明显提高了节点延性和耗能能力,有效降低了节点区焊缝过于密集和焊接热影响区的交叉影响,避免了梁翼缘对接焊缝处的应力集中和过早脆断;隔板圆弧扩大头节点的承载力、塑性转角和耗能能力较基本型节点分别提高16.09%~22.25%、17.34%~63.94%和24.97%~44.32%;加载到节点破坏时,节点域和柱内轻骨料混凝土未发生压碎、剥离、拉裂或滑移破坏,说明该类节点的抗震性能主要受钢梁与隔板间焊缝影响。
  • 郑宁, 马玉宏, 赵桂峰, 沈朝勇
    建筑结构学报. 2018, 39(S1): 127-135. https://doi.org/10.14006/j.jzjgxb.2018.S1.017
    摘要 ( ) PDF全文 ( )   可视化   收藏
    在带转换层的框支剪力墙结构中,应用基底隔震技术,形成带转换层的框支剪力墙隔震体系。在地震作用下,该体系内力传递途径复杂,得到转换梁、上部剪力墙和隔震支座的受力特点和内力变化规律是该类结构体系成功设计的关键。首先利用有限元软件ETABS对高层框支剪力墙隔震结构进行地震反应分析,然后取三维ETABS模型隔震层、转换梁及上部3层剪力墙组成二维ABAQUS简化模型,分别对剪力墙满跨、中跨和边跨布置的转换梁进行分析,研究了转换梁上部剪力墙、转换梁及隔震支座的内力变化规律。结果表明:三维模型结构在地震作用下,上部结构在水平地震作用可以按抗震设防烈度降低1度进行设计,隔震层最大位移满足支座最大容许位移的要求;二维简化模型结构在外荷载作用下,抵抗水平荷载的能力更好;不同布置的剪力墙与转换梁共同作用抵抗外部弯矩和剪力,剪力墙中跨及满跨布置时,转换梁出现应力集中,边跨布置时剪力墙出现应力集中,隔震设计时应对转换梁与剪力墙进行承载能力验算。
  • 刘杰, 伍云天, 杨永斌, 涂建敏, 周铭杰
    建筑结构学报. 2018, 39(S1): 136-143. https://doi.org/10.14006/j.jzjgxb.2018.S1.018
    摘要 ( ) PDF全文 ( )   可视化   收藏
    为了研究带螺栓连接的组合钢板联肢剪力墙结构的抗震性能,对1个1∶4缩尺的5层带螺栓连接的组合钢板联肢剪力墙试件进行了恒定轴压力下的水平低周往复加载试验,分析试件在循环荷载作用下的破坏形态、滞回曲线、骨架曲线、刚度退化、耗能能力等,得到结构的受力特征和破坏机理。研究结果表明:剪力墙墙肢以弯曲破坏为主,钢连梁以剪切破坏为主;滞回曲线无明显的捏缩效应;试件的承载力略高于理论承载力;平均延性系数为2.39,破坏时的位移角介于1.88%~1.94%之间;结构体系通过钢连梁的剪切变形和墙肢底部的塑性铰变形来耗散能量,能够明显改善带螺栓连接的组合钢板联肢剪力墙的抗震性能,实现了连梁-墙肢双重设防机制。
  • 叶昆, 严文轩, 符蓉
    建筑结构学报. 2018, 39(S1): 144-152. https://doi.org/10.14006/j.jzjgxb.2018.S1.019
    摘要 ( ) PDF全文 ( )   可视化   收藏
    提出了一种基于响应面法的LRB基础隔震结构地震易损性分析方法,考虑了LRB基础隔震结构中各子结构之间(即上部结构和LRB隔震支座)地震需求的相关性。分析中考虑地震动与LRB基础隔震结构物理参数的不确定性,以均匀设计法建立地震动-LRB基础隔震结构样本,通过对有限元模型进行非线性时程分析,分别建立各子结构响应均值、方差及其相关系数与不确定参数之间的响应面模型。在此基础上,采用蒙特卡罗模拟得到LRB基础隔震结构在不同性能水准下的地震易损性曲线。分析结果表明,所建立的响应面模型精度高、结构可靠,减小了复杂有限元模型非线性时程分析计算的工作量,有效提高了LRB基础隔震结构地震易损性分析的时效性。为了准确建立LRB基础隔震结构的地震易损性曲线,应考虑各子结构地震响应需求之间的相关性。
  • 韩军, 李英民, 熊海江, 张晖
    建筑结构学报. 2018, 39(S1): 153-159. https://doi.org/10.14006/j.jzjgxb.2018.S1.020
    摘要 ( ) PDF全文 ( )   可视化   收藏
    实现RC剪力墙结构预期强震破坏模式的能力设计方法的不断改进,一直为工程师所关注。针对我国抗震设防烈度8度0.3g高烈度区RC剪力墙结构,设计了不同高度和整体性系数的结构模型,从而建立了预设延性破坏模式的分析模型。考虑大震变轴力对弯矩和剪力的影响,分析了剪力墙在大震作用的弯矩和剪力的实际需求沿结构高度的分布规律。结果表明,对于位于烈度8度0.3g区的剪力墙结构,考虑大震时轴力的变化对剪力墙受弯和受剪能力的需求影响较大;剪力墙的弯矩和剪力放大系数随结构的高度和整体性系数的增大而增大;现行规范规定的剪力墙受弯和受剪能力调整系数小于实际的需求,剪力墙中下部的弯矩和底部的剪力需求大,建议受弯能力调整沿高度采用三折线,提高剪力墙底部加强区的剪力放大系数或最小构造配筋率。
  • 蒋友宝, 杨凯麟, 孙国衡, 付涛, 陈伟
    建筑结构学报. 2018, 39(S1): 160-167. https://doi.org/10.14006/j.jzjgxb.2018.S1.021
    摘要 ( ) PDF全文 ( )   可视化   收藏
    地震作用下RC框架柱大多处于双偏压受力状态。为考虑双向偏心距随机特性的影响,采用Monte Carlo方法分析了RC框架柱的承载力抗震可靠度。基于已有的试验数据,分析了GB 50010—2010《混凝土结构设计规范》中双偏压构件抗力计算模式的不确定性及其对极限状态方程的影响。以按规范设计的典型RC框架角柱、边柱和中柱为例,结合已有荷载和抗力变量的统计概率参数,通过对荷载效应以及抗力进行抽样,分别按单偏压和双偏压情形计算了RC柱的承载力抗震可靠度。结果表明:对于规则框架结构,双偏压情形下使柱具有较低可靠度的地震作用方向(沿结构主轴)与单偏压情形并不相同;考虑双向随机偏心距后,RC柱的承载力抗震可靠度会较单向随机偏心距下的可靠度有较大程度的降低。
  • 董银峰, 梁文举, 姚鹤彬, 何铠岐
    建筑结构学报. 2018, 39(S1): 168-174. https://doi.org/10.14006/j.jzjgxb.2018.S1.022
    摘要 ( ) PDF全文 ( )   可视化   收藏
    采用时程分析法进行结构反应分析时,若需要考虑双向地震动输入,通常先按照规范要求选择一定数量的单向地震动,然后将这些地震动和相应的另一正交方向的地震动分量组合作为双向地震动。若按照GB 50011—2010中要求,同时对两个方向的地震动进行筛选,则很难选出足够数量的地震动。仅控制了一个方向的地震动反应谱与设计反应谱统计意义上相符,常会导致结构地震反应统计离散性较大。为此,提出一种对两个方向的地震动均进行控制的双向地震动选择方法,该方法可以快速地选出足够数量的符合要求的双向地震动。以多、高层钢筋混凝土框架结构为例,通过对比常规和本文方法所选双向地震动输入下结构反应的差异验证了所提方法的有效性。以70组大样本地震动输入下结构的弹性和弹塑性地震反应为基准,对比了不同地震动输入样本容量时分析结果保证率的差异,并根据对比结果给出弹性和弹塑性时程分析时地震动输入样本容量的建议取值。
  • 结构抗火及抗爆专题
  • 张玉琢, 吕学涛, 刘发起, 刘雨杰
    建筑结构学报. 2018, 39(S1): 175-182. https://doi.org/10.14006/j.jzjgxb.2018.S1.023
    摘要 ( ) PDF全文 ( )   可视化   收藏
    为研究单面受火的方钢管约束钢筋再生混凝土柱的耐火极限,采用有限元软件ABAQUS建立了ISO-834标准火灾作用下单面受火的方钢管约束钢筋再生混凝土柱有限元模型,相关试验验证之后、分析了截面温度场和应力场的变化规律。在此基础上分析取代率、混凝土强度、荷载比、含钢率、荷载偏心率、荷载角、配筋率、截面尺寸和钢材强度等参数对构件耐火极限的影响规律。结果表明:荷载偏心率和荷载角对构件耐火极限影响较为复杂,当荷载角为180°时,荷载偏心率由0.2增加到0.4,构件耐火极限增加11.2%;当荷载偏心率为0.8时,荷载角由0°增到90°,构件耐火极限降低32.2%;荷载比和截面尺寸对构件耐火极限影响明显,当含钢率为5.33%时,荷载比由0.4增到0.5,其耐火极限降低37.1%;当钢材强度为Q345时,截面尺寸由200mm增到300mm时,构件耐火极限增加66.73%。基于上述规律并结合计算结果给出了单面受火的方钢管约束钢筋再生混凝土柱的耐火极限简化计算式,可为该类柱抗火设计提供参考。
  • 陈晔, 刘晅亚,
    建筑结构学报. 2018, 39(S1): 183-191. https://doi.org/10.14006/j.jzjgxb.2018.S1.024
    摘要 ( ) PDF全文 ( )   可视化   收藏
    燃气爆炸的反应过程与荷载特征与炸药爆炸明显不同。为研究燃气爆炸对钢筋混凝土板行为响应及竖向承载力的影响,采用FLACS模拟得到了室内燃气爆炸典型的超压时程曲线,结合LS-DYNA有限元软件建立的楼板数值分析模型,研究了钢筋混凝土板在燃气爆炸下的动态响应、破坏模式及在抗倒塌过程中的受力机制和承载能力,以及混凝土、钢筋强度等因素的影响。结果表明:钢筋混凝土板在燃气爆炸荷载作用下呈典型的弯曲破坏模式,且与能量等效的TNT爆炸相比,动态响应及损伤相对较小;燃气爆炸后楼板在抗倒塌过程的初期以薄壳受力机制为主,随后由受弯机制发展为受拉薄膜机制,但因受拉薄膜效应无法有效开展而导致爆炸后楼板的承载能力出现中度下降;增大钢筋直径,减小钢筋间距,采用双层配筋方式,以及在高强度钢筋对应的适筋范围内增大混凝土强度,可有效提高楼板抗燃气爆炸的能力,并降低爆炸对板承载力的影响;增大钢筋强度虽能提高楼板抗燃气爆炸能力,但亦会增强爆炸对板承载力的影响,而在低强度钢筋对应的适筋范围内增大混凝土强度基本不会改变爆炸对板承载力的影响。
  • 黄炳生, 张冉阳, 杨放, 黄泰杰, 张益伟, 张旭, 操岳飞
    建筑结构学报. 2018, 39(S1): 192-197. https://doi.org/10.14006/j.jzjgxb.2018.S1.025
    摘要 ( ) PDF全文 ( )   可视化   收藏
    为研究火灾下受压加肋焊接空心球节点的性能,对2个足尺节点进行受火试验。通过试验得到了加肋焊接空心球节点在标准火灾下的节点表面温度场、不同荷载下节点的耐火时间、破坏形式以及位移特征。根据欧洲规范,建立了三维加肋焊接空心球节点的有限元模型,分析了火灾下节点温度发展规律及位移特征。有限元分析结果与试验结果的对比验证了有限元分析的正确性。研究结果表明:升温过程中,加肋焊接空心球节点中远离加劲肋处的球壳温度最高,靠近加劲肋以及钢管连接处的球壳温度较低;火灾下受压加肋焊接空心球节点的破坏具有突然性,破坏发生在钢管与球节点的连接处;荷载比大的球节点耐火时间短。
  • 黄炳生, 操岳飞, 杨放, 张冉阳, 黄泰杰
    建筑结构学报. 2018, 39(S1): 198-204. https://doi.org/10.14006/j.jzjgxb.2018.S1.026
    摘要 ( ) PDF全文 ( )   可视化   收藏
    为研究热冲压球壳Q235钢材高温后的力学性能,对经历400~900℃高温后由自然冷却和喷水冷却到常温空心球加工制作成的受拉试样进行拉伸试验,得到高温冷却后该材料的应力-应变曲线、弹性模量、屈服强度、抗拉强度和断后伸长率,并与普通Q235钢高温后力学性能进行了对比。研究结果表明:当经历温度不超过500℃时,钢材高温后强度与断后伸长率在两种冷却方式下变化规律基本类似,且变化很小。当经历温度超过500℃后,不同冷却方式对材料高温后强度与断后伸长率产生明显影响,且温度越高,相差越大,自然冷却方式下,随着温度的升高,强度降低而断后伸长率变大。喷水冷却方式下,抗拉强度增大而伸长率减小,屈服强度在500~700℃之间逐渐增大,700℃之后又快速下降。弹性模量受经历温度与冷却方式的影响较小。
  • 混凝土及组合结构
  • 季静, 乔升访, 韩小雷, 杨光
    建筑结构学报. 2018, 39(S1): 205-211. https://doi.org/10.14006/j.jzjgxb.2018.S1.027
    摘要 ( ) PDF全文 ( )   可视化   收藏
    针对RC框架结构可修复能力不明确的问题,提出基于构件变形的RC框架结构可修复能力评估方法。研究以柱达到严重破坏作为结构拆除的判断准则,引入结构可修复能力储备系数来量化结构可修复能力。以结构动力失稳作为结构倒塌的判断准则,对按照我国规范GB50011-2010设计的48个RC框架结构分别进行增量动力分析;探讨柱分别达到严重破坏和结构倒塌状态下的层间位移角分布规律,包括最大层间位移角和残余层间位移角。发现柱达到严重破坏的残余层间位移角均值为1.48%,主要分布在0.5%~2.5%之间,且残余层间位移角超出0.5%时柱严重破坏的概率较高;柱达到严重破坏时最大层间位移角的数据离散性比不同残余层间位移角限值对应的数据离散性更小,且在基于残余层间位移角的拆除准则中可修复能力储备系数对残余层间位移角限值变化较为敏感,表明基于柱达到严重破坏的拆除准则比基于残余层间位移角的拆除准则更合理,可用于量化结构可修复能力。
  • 李斌, 黄炜, 刘志元, 郭猛
    建筑结构学报. 2018, 39(S1): 212-221. https://doi.org/10.14006/j.jzjgxb.2018.S1.028
    摘要 ( ) PDF全文 ( )   可视化   收藏
    通过2榀1/2比例预损(空框架和复合墙)和2榀1/2比例加固试件的水平低周反复荷载作用下的受剪性能试验,对比分析各试件的破坏机制、滞回性能、承载能力、变形能力、刚度退化以及耗能能力等,研究复合墙加固受损框架及置换砌块加固受损复合墙的加固效果和抗震性能。试验结果表明:复合墙加固框架承载力、刚度、延性和耗能能力都有所提高,但是变形能力有所下降;填充砌块、混凝土肋格、受损框架之间相互支撑、相互约束,具有很好的协同工作能力;置换砌块加固复合墙在加载初期,墙体的刚度、变形能力有所提高,但达到峰值荷载后下降明显;基于水平薄弱层破坏准则,提出的复合墙加固受损框架结构的抗剪承载力计算公式,其计算值与试验值吻合较好。
  • 郭猛, 李常乐, 袁泉
    建筑结构学报. 2018, 39(S1): 222-229. https://doi.org/10.14006/j.jzjgxb.2018.S1.029
    摘要 ( ) PDF全文 ( )   可视化   收藏
    密肋复合墙是由填充砌块、混凝土框格(肋柱、肋梁)组成的网格式抗震墙,框格内填充砌块布置(拼砌)方式是影响框格层间承载力的重要因素。在前期研究工作基础上,分析了框格内不同布置方式下填充砌块的受力机制和变形特点;以既有密肋复合墙、框支-密肋复合墙试验为例,从试验角度验证了密肋复合墙的水平薄弱层破坏现象;引入砌块布置方式影响系数对水平薄弱层受剪承载力计算式进行改进,提出了不同砌块布置方式墙体的影响系数的建议取值范围。研究结果表明,水平薄弱层破坏是密肋复合墙的典型破坏现象之一,改进的受剪承载力计算式能够考虑填充砌块布置方式对承载力的不利影响,有助于提高密肋复合墙受剪设计的安全裕度。
  • 贾明明, 杨先霖, 吕大刚, 吴春
    建筑结构学报. 2018, 39(S1): 230-236. https://doi.org/10.14006/j.jzjgxb.2018.S1.030
    摘要 ( ) PDF全文 ( )   可视化   收藏
    为研究填充墙对RC空间框架抗竖向连续倒塌能力的影响,对一栋6层双跨RC框架结构采用OpenSees有限元软件进行了建模,利用集中塑性的beamWithHinges单元模拟填充墙的性能。考虑到结构的不确定性,在有限元模型的基础上采用改进的拉丁超立方体抽样法获得了性能不同的100个纯框架结构和100个框架填充墙结构,并采用PDA方法和竖向IDA方法对取得的样本进行了易损性分析和对比。分析结果表明:填充墙提高了框架结构的抗倒塌能力,发生连续倒塌概率相同的情况下,框架填充墙结构的承载能力要比纯框架结构的高10%~20%。此外,两种分析方法对纯框架结构的抗连续倒塌能力分析差别较小,而对于带填充墙的框架结构,PDA方法计算结果则偏于保守。
  • 王新堂, 田兴兴, 任鹏飞
    建筑结构学报. 2018, 39(S1): 237-245. https://doi.org/10.14006/j.jzjgxb.2018.S1.031
    摘要 ( ) PDF全文 ( )   可视化   收藏
    由腹板开孔且翼缘卷边的H形薄壁钢梁和陶粒混凝土预制板经后浇砂浆和抗剪键组装而成的组合楼板,具有轻质、高强、无需支模、装配化程度高等优势。为研究该类组合楼板的受力性能,对6组不同构造的两边简支组合楼板试件开展静载试验,分析抗剪键分布及薄壁钢壁厚的变化对组合楼板整体受力性能的影响。结果表明:对应等效均布荷载2kN/m2的组合楼板,中心挠度远小于L/500,能够承担的最大荷载值为13.25kN/m2;当混凝土严重开裂且板跨中最大挠度达到L/45时,组合楼板试件并未出现整体塌落;主钢梁上抗剪栓钉的增加,对提高组合楼板的极限荷载和整体刚度均不明显;边梁增设抗剪栓钉对组合楼板的屈服荷载及整体刚度均产生显著影响,当边梁设置与主梁同样的抗剪栓钉时,屈服荷载和整体刚度增幅分别为82.1%和35.6%。
  • 王新堂, 田兴兴, 任鹏飞
    建筑结构学报. 2018, 39(S1): 246-253. https://doi.org/10.14006/j.jzjgxb.2018.S1.032
    摘要 ( ) PDF全文 ( )   可视化   收藏
    由帽型冷弯薄壁钢梁作为组合楼板的承重骨架,与轻骨料混凝土预制板块经后浇水泥砂浆而形成轻质组合楼板。为研究其受力性能,设计并制作了5块具有不同构造特征的组合楼板试件,对其进行了简支条件下的静载试验。结果表明:该组合楼板具有较大的整体刚度和承载能力,当等效均布荷载达到正常使用状态的荷载标准值3.2kN/m2时,跨中挠度远小于L/500。当组合楼板的整体变形较大时,帽型钢梁内部的外伸腹板对提高组合楼板的整体刚度产生明显作用,极限状态下割线刚度是帽型钢梁内部无外伸腹板时的2.5倍;当次梁截面高度由20mm增至50mm时,组合板的极限荷载增幅为87.5%。
  • 赵雯桐, 杨红, 傅剑平, 李戌
    建筑结构学报. 2018, 39(S1): 254-262. https://doi.org/10.14006/j.jzjgxb.2018.S1.033
    摘要 ( ) PDF全文 ( )   可视化   收藏
    钢筋混凝土梁柱节点区非弹性变形包括梁纵筋黏结滑移和节点核心区剪切变形,对钢筋混凝土梁柱组合体的受力性能影响较大,在有限元模型中合理地考虑节点区的这两种非弹性变形是数值计算的难点和关键。利用OpenSees结构分析平台中的梁柱节点单元,根据中间层边节点的受力特点和试验结果,通过对钢筋滑移分量和剪切块分量的计算模型、参数计算方法进行改进,提出了修正梁柱节点单元模型,并以多组试验结果为依据,校核了修正梁柱节点单元模型计算的准确性和适用性。分析结果表明:修正梁柱节点单元模型能有效模拟中间层边节点的整体受力性能和局部非弹性变形特性;改进的梁纵筋滑移模型能更合理地模拟贯穿节点梁纵筋的受力特性;改进的剪切块计算模型能准确模拟节点核心区的剪应力大小,以及两个不同加载方向的节点剪应力差异。
  • 李玲, 王舸宇, 王英, 郑文忠
    建筑结构学报. 2018, 39(S1): 263-271. https://doi.org/10.14006/j.jzjgxb.2018.S1.034
    摘要 ( ) PDF全文 ( )   可视化   收藏
    将高强钢筋作为受拉纵筋时,由于钢筋屈服强度的提高,连续梁支座控制截面从受拉边缘混凝土进入受拉塑性至受拉纵筋屈服的区段变长,这一阶段弯矩调幅幅度在总弯矩调幅中所占比例增大;支座控制截面塑性铰出现推迟,截面相对受压区高度相同时塑性铰转动能力减小。为此,提出了将高强钢筋混凝土连续梁弯矩调幅分受拉纵筋屈服前、后两阶段。对以受拉纵筋屈服强度、中支座控制截面相对受压区高度、中支座支承宽度、跨高比、加载形式为控制变量的336根两跨连续梁进行参数化分析。结果表明:随着钢筋屈服强度的提高,第一阶段弯矩调幅增大、第二阶段弯矩调幅减小;随着中支座控制截面相对受压区高度增加,两阶段弯矩调幅均减小;随着中支座支承宽度的增加,第一阶段弯矩调幅增大、第二阶段弯矩调幅变化不显著;随着跨高比的增大,第一阶段弯矩调幅减小、第二阶段弯矩调幅变化不显著。建立了不同加载形式下考虑上述各参数影响的两阶段连续梁弯矩调幅系数计算公式。
  • 许见超, 陈圣刚, 郭全全, 程韶红, 叶英华, 刁波
    建筑结构学报. 2018, 39(S1): 272-278. https://doi.org/10.14006/j.jzjgxb.2018.S1.035
    摘要 ( ) PDF全文 ( )   可视化   收藏
    U形薄壁混凝土梁主要用于城市轨道交通工程,受弯-剪-扭复合作用。本文通过试验研究了一根大尺寸钢筋混凝土U形薄壁梁在弯-剪-扭复合作用下的力学性能,包括裂缝的发展与分布、钢筋应变分布以及破坏形态等。试验结果表明:弯-剪-扭复合作用下的U形薄壁混凝土梁呈现明显的空间受力特征,表现为裂缝和钢筋应变在两侧腹板上显著差异分布,同时,腹板内外侧斜裂缝以及箍筋应变的分布也存在明显差异;加载过程中纵筋应变在跨中和支座沿截面高度方向的分布基本符合平截面假定,纵筋应变沿梁跨近似线性分布;弯-剪-扭复合作用下钢筋混凝土U形薄壁梁出现了受弯矩和翘曲弯矩影响的延性弯曲破坏,且破坏仅发生在加载侧腹板,而非加载侧腹板处于相对低应力状态。
  • 张纪刚, 舒凡, 赵铁军, 刘菲菲,
    建筑结构学报. 2018, 39(S1): 279-285. https://doi.org/10.14006/j.jzjgxb.2018.S1.036
    摘要 ( ) PDF全文 ( )   可视化   收藏
    不锈钢具有良好的耐腐性与变形能力,为研究海洋平台新型不锈钢导管腿轴压性能,通过12根不锈钢管中管混凝土柱的轴压力学性能试验,分析了空心率、混凝土强度、外钢管径厚比和材质对不锈钢管中管混凝土短柱轴压破坏模式、承载力等力学性能的影响。研究结果表明:不锈钢管中管混凝土短柱呈腰鼓型破坏,其塑性变形与屈服后应化强度比普通钢试件显著,但初始刚度比普通钢试件小;空心率和径厚比越小,试件承载力越大,空心率由0增加到0.61,试件承载力下降21%;径厚比由34减小到14,试件承载力提高63%;混凝土强度越高,试件承载力越大,混凝土由43.82MPa提高到59.37MPa,试件承载力提高11%。有限元模拟所得荷载-位移关系曲线、破坏形态和承载力均与试验结果吻合较好。
  • 郑文忠, 侯翀驰,
    建筑结构学报. 2018, 39(S1): 286-290. https://doi.org/10.14006/j.jzjgxb.2018.S1.037
    摘要 ( ) PDF全文 ( )   可视化   收藏
    GB 50010—2010《混凝土结构设计规范》中规定,考虑箍筋约束作用时,箍筋间距不应大于80mm和核心截面直径的1/5;ACI 318-14《美国房屋建筑混凝土结构规范》中规定,考虑箍筋约束作用时,箍筋净间距不宜超过75mm,且不宜小于25mm。上述规范条款,一方面对大截面尺寸柱会造成箍筋过密而难以施工,另一方面缺乏对箍筋间距较大时约束作用的合理考虑方法。依据所收集的足尺约束混凝土柱试验,对约束混凝土柱轴压承载力进行分析,研究结果表明:按照Model Code 2010引入截面形状与纵向钢筋布置的影响系数、截面形状与箍筋间距的影响系数,考虑箍筋间距和矩形截面中箍筋约束的纵向钢筋间距的影响,约束混凝土柱承载力计算值和试验值吻合程度较好。可放宽GB 50010—2010和ACI 318-14对约束混凝土柱中箍筋最大间距的规定。
  • 朱利明, 王成龙, 蓝天, 苗宝丰
    建筑结构学报. 2018, 39(S1): 291-296. https://doi.org/10.14006/j.jzjgxb.2018.S1.038
    摘要 ( ) PDF全文 ( )   可视化   收藏
    为评估南京地铁4号线运行对鼓楼的影响,在地铁开通前和运行后的不同环境下采用振动测试的方法对鼓楼结构振动进行了现场实测。基于实测数据对比,分析了地铁运行对鼓楼的影响,在此基础上结合古建筑安全控制标准对鼓楼的安全性进行了评估;通过1/3倍频程谱分析,研究了引起鼓楼振动的主要频段。结果表明:地铁运行通过时,各结构测点振动量都有所增大,其中碑楼和石碑的振动量增大显著,且鼓楼结构振动具有明显的方向性,部分结构的水平方向振动速率已超出限值;鼓楼结构振动是由路面交通和地铁交通振动共同作用引起的,地铁交通振动影响占主要方面。
  • 地基基础与地下结构
  • 徐铨彪, 杨帆, 陈刚, 龚顺风, 肖志斌
    建筑结构学报. 2018, 39(S1): 297-305. https://doi.org/10.14006/j.jzjgxb.2018.S1.039
    摘要 ( ) PDF全文 ( )   可视化   收藏
    为深入研究复合配筋混凝土预制方桩的受弯性能,对该类桩建立有限元模型,开展有限元分析,从其抗裂性能、受弯承载力、变形性能及破坏特征等与试验结果进行比较。结果表明,建立的有限元模型可以较好地预测方桩的受弯性能,模拟得到的桩身裂缝分布和跨中挠度与试验结果吻合较好。根据所建立的有限元模型对不同参数的复合配筋混凝土预制方桩进行承载力分析,并与采用GB 50010—2010《混凝土结构设计规范》中受弯构件承载力计算公式的计算结果进行比较,结果显示:配置非预应力钢筋可以显著提高开裂后方桩的抗弯刚度和极限弯矩;合理设计的复合配筋混凝土预制方桩呈现以受拉区非预应力钢筋屈服,预应力钢棒被拉断,最后受压区部分混凝土被压碎的形式破坏;方桩的开裂弯矩和极限弯矩的有限元分析结果与规范公式计算值较为接近。
  • 王宁, 马瑞嘉, 罗佑新, 张松
    建筑结构学报. 2018, 39(S1): 306-313. https://doi.org/10.14006/j.jzjgxb.2018.S1.040
    摘要 ( ) PDF全文 ( )   可视化   收藏
    梅花形布桩是一种常见的布桩形式,具有相同基础面积下布桩较多的优点,但是在GB 50007—2012《建筑地基基础设计规范》及JGJ 94—2008《建筑桩基技术规范》中给出的冲切锥体范围是依据正交布桩的形式,对于梅花形布桩未做明确说明。本文中首先总结了各国规范对于桩筏基础冲切的计算规定,针对某超高层结构巨柱下厚度为5m的桩筏基础,研究了在梅花形布桩时的冲切锥体范围,并与ACI 318-14中规定的冲切锥体范围进行了对比。研究发现,冲切锥体底面呈六边形,且范围较小。为增强基础的抗冲切能力,根据冲切分析结果,在斜裂缝开展处增加了钢筋立柱,进一步分析表明,钢筋立柱能够有效限制斜裂缝的开展。
  • 吴江斌, 苏银君, 王向军, 王卫东
    建筑结构学报. 2018, 39(S1): 314-320. https://doi.org/10.14006/j.jzjgxb.2018.S1.041
    摘要 ( ) PDF全文 ( )   可视化   收藏
    上部结构的安全是实现既有建筑下地下空间开发的核心问题之一,以上海某历史建筑下地下空间开发为例,对上部结构进行竖向托换设计,并开展其对上部结构的影响分析。背景工程为地上4层砖木结构建筑,拟在建筑下方新建3层地下室,基础埋深约16m。基于施工净空条件的限制和托换构件入土深度的要求,采用低净空条件下的高承载力锚杆静压桩作为上部结构基础的竖向托换构件,着重对托换桩的分散布置、集中布置、分散结合集中布置三种方式进行了分析。并对地下空间开发过程中不同阶段上部结构受力及变形状态进行了有限元分析。结果表明:低净空条件下的高承载力锚杆静压桩可作为既有建筑竖向托换构件;竖向托换构件可采用“分散与集中相结合”的布置方式,有利于控制上部结构的变形和附加内力。
  • 张可, 李正英,
    建筑结构学报. 2018, 39(S1): 321-328. https://doi.org/10.14006/j.jzjgxb.2018.S1.042
    摘要 ( ) PDF全文 ( )   可视化   收藏
    针对地下管廊结构,设计了现浇和叠合装配式两种不同形式的节点,通过低周反复荷载试验进行地震损伤研究。试验结果表明,叠合装配式节点具有和现浇形式的节点相近的结构性能。结合试验结果,基于修正的Park-Ang双参数地震损伤模型和修正的欧进萍双参数地震损伤模型,对地下管廊结构节点的损伤模型进行了对比分析。研究表明,修正的欧进萍双参数地震损伤模型与试验结果符合较好,能正确地反映节点从开始加载到失效的整个过程,可用于此种现浇和叠合装配式节点的损伤分析。
  • 李雪红, 梁陈, 徐秀丽, 李枝军
    建筑结构学报. 2018, 39(S1): 329-336. https://doi.org/10.14006/j.jzjgxb.2018.S1.043
    摘要 ( ) PDF全文 ( )   可视化   收藏
    采用有限元软件ABAQUS,基于一致黏弹性人工边界和波动输入,建立上部建筑物-土-隧道相互作用二维平面应变模型,利用等效线性化模拟土体非线性,输入不同频谱特性的三条地震动,研究了上部建筑物的刚度、层数(高度)、与隧道间距和隧道埋深等因素对隧道地震响应的影响。分析结果表明,上部建筑物的存在对隧道地震响应的影响不可忽视,影响程度可达到30%左右。上部建筑物与隧道的间距、层数(高度)、刚度不同,对隧道地震响应的影响程度也会发生变化。其中间距和层数(高度)影响较大,间距越大,影响越小,当间距与建筑物宽度的比值超过2之后,建筑物的存在对隧道的影响可忽略;建筑物的层数越多、高度越高,对隧道的影响越大,18层时使隧道最大主应力峰值和相对变形的增加较6层时增大了20%~30%。建筑物的刚度对隧道响应的影响较小。在对隧道进行抗震设计时,应考虑上部建筑物可能对其造成的不利影响。
  • 韩丽婷, 王贵, 张大长, 王庭华, 安增军
    建筑结构学报. 2018, 39(S1): 337-343. https://doi.org/10.14006/j.jzjgxb.2018.S1.044
    摘要 ( ) PDF全文 ( )   可视化   收藏
    沿江和沿海地区的地质条件多以软弱地基为主,其地基承载力相对较低,不利于输电线路基础设计、施工和运营安全。设计并制作了单板基础、单桩基础和桩-板复合基础的上拔承载力的试验模型,开展三类基础的上拔承载力试验,研究三类试验基础的上拔承载力特性和失效模式。试验结果表明,与单板基础和单桩基础相比,桩-板复合基础的上拔荷载-位移曲线呈缓慢上升形式,桩-板复合基础具有较高的承载力和抵抗变形能力,其受力特性接近于单桩基础。此外,由复合基础的模拟分析可知,上拔加载后期板和桩的承载比例约各50%,桩和板具有较好的协同受力性能。结合现有复合桩基的相关理论,提出了基于单桩抗拔承载力的桩-板复合基础设计方法,为输电线路的复合基础设计提供参考。
  • 蒋刚, 张小兵, 肖飞, 罗春雨, 韩杰
    建筑结构学报. 2018, 39(S1): 344-349. https://doi.org/10.14006/j.jzjgxb.2018.S1.045
    摘要 ( ) PDF全文 ( )   可视化   收藏
    经典的地基承载力理论不能直接应用于下卧倾斜地层的双层地基承载力分析,利用有限差分法建立下卧倾斜地层的地基承载力数值模型,分析了下卧层埋深比和倾角、上下土层的不排水强度以及基底摩擦条件对地基承载力的影响,获得了下卧倾斜地层的双层地基不排水承载力系数曲线。研究表明:当上层土的不排水强度小于下层土时,地基承载力系数大于经典理论值(5.14),并随着埋深比的增大而减小,且趋于5.14,随着下卧层倾角的增大而增大;当上层土的不排水强度大于下层土时,地基承载力系数小于经典理论值5.14,随着埋深比的增大而增大,且趋于5.14,随着下卧层倾角的增大而减小。
  • 叶明鸽, 董金梅
    建筑结构学报. 2018, 39(S1): 350-358. https://doi.org/10.14006/j.jzjgxb.2018.S1.046
    摘要 ( ) PDF全文 ( )   可视化   收藏
    采用ABAQUS有限元法模拟了混凝土管桩桩模贯入试验过程中贯入阻力的变化规律和桩周土体的水平位移,通过试验数据与计算结果的对比,验证了采用有限元法模拟桩模贯入过程的适用性。在此基础上,探讨了桩模贯入深度、上层土体厚度、桩径、土体强度和桩土摩擦系数在桩模贯入过程中,对桩周土体水平位移和桩模贯入阻力的影响。结果表明:桩周土体水平位移与土体径向位置、桩径关系紧密,并得到了桩周土体水平位移与土体径向位置、桩径之间的关系式;上层土体厚度、桩径和桩土摩擦系数对桩模贯入阻力影响较大,总结了桩模贯入阻力与上层土体厚度、桩径和桩土摩擦系数之间的关系式。最后采用土体附加水平应力云图解释了贯入深度对桩周土体水平位移的影响;桩模贯入上软下硬土层时,桩周土体最大水平位移出现在上层软土中,计算结果可为现浇混凝土管桩在施工设计和桩土相互作用分析提供参考依据。
  • 王永洪, 张明义, 刘俊伟, 白晓宇,
    建筑结构学报. 2018, 39(S1): 359-367. https://doi.org/10.14006/j.jzjgxb.2018.S1.047
    摘要 ( ) PDF全文 ( )   可视化   收藏
    采用大型恒刚度直剪仪,系统研究超孔隙水压力对黏性土中桩土界面剪切性能的影响。根据制定的测试超孔隙水压力方案,对4个粗糙度等级(混凝土表面锯齿状峰谷距为0、2、4、6mm)的不同含水率黏性土中桩土界面在不同剪切速率下进行剪切试验。针对界面粗糙度、黏性土含水率、剪切速率3个变化参数对界面抗剪强度的影响进行分析。结果表明:界面粗糙度越大,界面超孔隙水压力越小,有效法向应力越大,黏性土颗粒与混凝土表面吸附性越大,桩土界面抗剪强度越大;黏性土含水率越大,界面超孔隙水压力越大,有效法向应力越小,黏性土颗粒与混凝土表面吸附性不能完全发挥,桩土界面抗剪强度反而减小;在剪切速率0.4~1.0mm/min范围内,剪切速率越大,界面超孔隙水压力增幅较小,有效法向应力变化不大,桩土界面抗剪强度虽有减小,但不同剪切速率下超孔隙水压力对桩土界面抗剪强度的影响不明显。
  • 周茗如, 张建斌, 卢国文, 钞鑫, 程俊夕
    建筑结构学报. 2018, 39(S1): 368-378. https://doi.org/10.14006/j.jzjgxb.2018.S1.048
    摘要 ( ) PDF全文 ( )   可视化   收藏
    针对扩孔理论在非饱和黄土劈裂注浆中的应用,将孔周围土体分为弹性区和塑性区,在弹性区中假设服从小变形理论,在塑性区中假设服从大变形理论,结合黏性土一般强度准则(SMP准则、Lade-Duncan准则、M-C准则),推导了不同理论下黄土地区在不排水条件下的劈裂注浆压力预估公式。利用现场注浆试验获得了压力P及注浆量Q的时程曲线,在P-Q-t三维散点图基础上,将理论计算结果与现场注浆数据对比分析,结果表明:基于黏性土一般强度准则推导的黄土劈裂注浆压力预估公式中,由于Land-Duncan准则及SMP准则考虑了中主应力的因素,较传统Mohr-Cunlomb模型的计算结果更加精确。对黄土注浆压力机理分析可知,当压力不大时,浆液对土体以挤密作用为主,当超过劈裂压力时,土体出现劈裂。
  • 基础理论与共性技术
  • 赵旭, 董军
    建筑结构学报. 2018, 39(S1): 379-386. https://doi.org/10.14006/j.jzjgxb.2018.S1.049
    摘要 ( ) PDF全文 ( )   可视化   收藏
    结构体系中的大空间或者核心筒的布置不规则,会给建筑抗震设计带来诸多困扰。提出优化设计的方法用于对结构刚度进行调整,以降低建筑空间布置不规则的影响。优化方法是基于进化结构优化法,建立新的灵敏度定义,以修正建筑空间布置规则性为设计目标,优化结构体系中抗侧体系的刚度分布。从建立结构模型开始,直接从建筑设计模型中,提取必要的设计参数,导入优化设计程序中进行建模,提高了建模的效率和准确度。在有限元分析过程中全部采用壳单元,并且在考虑解析准确度的基础上对壳单元进行分割,应用泰森多边形理论对荷载进行计算。在优化计算中,主要从结构整体等效应力分布的均匀性,重心与刚心的相对位置关系以及结构的两向抗侧刚度比三个方面对结构体系的应力、水平以及竖向构件刚度分布进行优化设计,调整建筑空间布局以满足布置的规则性,对进一步深化设计提供可参考的分析结果。
  • 钟根全, 周云, 李丽娟, 龚晨
    建筑结构学报. 2018, 39(S1): 387-391. https://doi.org/10.14006/j.jzjgxb.2018.S1.050
    摘要 ( ) PDF全文 ( )   可视化   收藏
    屈曲约束支撑(buckling-restrained brace, BRB)恢复力模型的合理与否直接影响BRB结构计算分析的准确度。改进的Bouc-Wen模型能很好地描述钢板装配式BRB的滞回特性。为了提高BRB改进Bouc-Wen模型参数识别的自动化程度及精度,采用GSO群智能搜索算法编写了BRB改进Bouc-Wen模型的参数识别优化程序。对不同屈服承载力的两根钢板装配式BRB滞回曲线进行了参数识别,把识别的滞回曲线与钢板装配式BRB试验结果所得的滞回曲线进行了对比。研究结果表明:采用GSO群智能搜索算法对BRB改进Bouc-Wen模型参数优化识别的方法可行,自动化程度高,拟合结果吻合良好,只需根据钢板装配式BRB试验结果所给出的力、位移以及对应的时间点便可实现对改进Bouc-Wen模型参数的自动识别。基于试验结果和相关参数的物理意义限定所识别参数取值范围的方法提高了GSO群智能搜索算法的识别效率。
  • 周欣竹, 陈翱翔, 郑建军, 张坚
    建筑结构学报. 2018, 39(S1): 392-396. https://doi.org/10.14006/j.jzjgxb.2018.S1.051
    摘要 ( ) PDF全文 ( )   可视化   收藏
    钙溶蚀是水环境中混凝土结构耐久性失效的主要原因,通过硝酸铵溶液加速溶蚀试验和损伤力学研究了溶蚀粉煤灰混凝土抗压强度随溶蚀时间的退化规律。在该试验中,水胶比为0.5,粉煤灰掺量分别为0%、10%、20%和30%。试验结果表明,溶蚀深度近似与溶蚀时间的平方根成正比;溶蚀粉煤灰混凝土的抗压强度随着溶蚀时间的增加而下降,掺加粉煤灰可以降低溶蚀混凝土抗压强度的下降率。基于试验结果,把溶蚀粉煤灰混凝土的溶蚀深度和弹性模量表示成粉煤灰掺量和溶蚀时间的函数。再引入峰值应力时未溶蚀和已溶蚀粉煤灰混凝土力学损伤变量相等的假设,利用损伤力学讨论并提出了溶蚀粉煤灰混凝土抗压强度的解析预测方法。经与试验结果比较,初步证实了该预测方法的有效性,为混凝土结构的耐久性评估和设计提供理论依据。
  • 王健, NG Pui-Lam, 苏瀚, 杜进生
    建筑结构学报. 2018, 39(S1): 397-404. https://doi.org/10.14006/j.jzjgxb.2018.S1.052
    摘要 ( ) PDF全文 ( )   可视化   收藏
    为考虑混凝土应力状态对碳化深度的影响,在混凝土碳化深度模型中增加了应力影响系数。利用已有文献的试验数据,进一步研究了应力影响系数随混凝土应力比变化的规律,并分别建立了应力影响系数随混凝土拉、压应力比变化的计算式。将建立的应力影响系数计算式与既有的3组典型计算式进行了对比,结果表明,建立的应力影响系数计算式较合理,具有较高的预测精度。对规范中的应力影响系数计算式进行了评价,结果表明,在混凝土拉应力状态下,应力影响系数取值偏于不安全;相反,在混凝土压应力状态下,取值偏于保守,因此可将文中所提计算式作为规范中应力影响系数的修正式。
  • 高瑞鑫, 余倩倩,
    建筑结构学报. 2018, 39(S1): 405-409. https://doi.org/10.14006/j.jzjgxb.2018.S1.052
    摘要 ( ) PDF全文 ( )   可视化   收藏
    结构黏胶是CFRP/钢补强体系的重要组成部分,易在环境作用下发生力学性能退化,从而影响整个补强体系的耐久性。结构黏胶一般需要两周左右的养护时间使强度得到充分发展,为了研究养护阶段不同环境作用对结构黏胶力学性能的影响,设计了4组共40个试件,考虑海洋大气环境、恒温恒湿环境和两种不同室内环境条件,研究结构黏胶吸水质量和力学性能的变化。试验结果表明,结构黏胶吸水质量随温湿度的提高而增加;与较高温度的室内常温环境相比,养护阶段在海洋大气环境与恒温恒湿环境作用下,结构黏胶的抗拉强度基本不变,但弹性模量显著降低,极限应变增加。
  • 张滨, 孙文波,
    建筑结构学报. 2018, 39(S1): 410-417. https://doi.org/10.14006/j.jzjgxb.2018.S1.054
    摘要 ( ) PDF全文 ( )   可视化   收藏
    工程设计中销轴连接的接触应力峰值及应力分布模式大多以赫兹接触理论为准则进行分析。一般认为,作用于销轴的荷载在耳板范围内均匀分布或以等效集中力形式作用于耳板中线处,但实际工程中销轴连接的边界条件并不完全符合赫兹理论的假定。为得到更为精确的销轴连接应力计算式,在有限元模型中各相关参数的设置得到验证后,对销轴连接进行了参数分析。研究摩擦系数、耳板厚度、耳板间隙和销轴直径等参数对处于弹性工作状态的销轴连接的接触应力数值及其分布规律的影响,并对大量有限元分析结果进行拟合,提出了基于赫兹接触理论修正的销轴局部接触应力峰值计算式及销轴的最大弯曲应力计算式。在建议的尺度范围内,采用修正后的应力计算式的计算结果和有限元分析结果吻合较好,且具有较高的精度,可为工程应用提供参考。
  • 韩晓健, 赵志成
    建筑结构学报. 2018, 39(S1): 418-426. https://doi.org/10.14006/j.jzjgxb.2018.S1.055
    摘要 ( ) PDF全文 ( )   可视化   收藏
    计算机视觉技术用于混凝土结构表面裂缝检测,具有现场检测方便、效率高、客观性强的特点,但图像数据分析是该技术的核心,其中裂缝提取与定量测量较为复杂。为提高裂缝图像处理效率和准确率,将深度学习和数字图像处理技术相结合,提出一种裂缝检测方法。建立基于深度卷积神经网络的裂缝识别模型,在图像上自动定位裂缝并结合图像局域阈值分割方法提取裂缝。在裂缝宽度定量测量方面,采用双边滤波算法和三段线性变换对裂缝图像进行预处理,提高了裂缝边缘识别的精确度。通过改进边缘梯度法,实现裂缝最大宽度的定位和裂缝最大宽度的自动获取。该研究为全自动识别裂缝图像及高精度测量裂缝宽度提供了一种解决方法。