2018年, 第39卷, 第10期 刊出日期:2018-10-05
  

  • 全选
    |
    结构抗风专题
  • 陈波, 程行, 张丽娜, 杨庆山
    建筑结构学报. 2018, 39(10): 1-10. https://doi.org/10.14006/j.jzjgxb.2018.10.001
    摘要 ( ) PDF全文 ( )   可视化   收藏
    通过风洞试验,采用单因素轮换法,研究了建筑物排数、列数及面积密度对平屋面低矮建筑群各位置建筑物的屋面极值风压系数干扰效应的影响规律。试验结果表明:屋面大部分区域极值风荷载干扰效应以遮挡效应为主,中心建筑物的屋面各区域、边缘和角部建筑物的角部和中心屋面区域遮挡效应尤为显著,屋面边缘中间区域出现了放大效应,最大增幅达到14%;增加建筑物排数或列数,对角部和边缘建筑物影响较大,其屋面角部和中心区域极值风压缩减效应进一步增强;3排3列建筑群中,中心建筑物屋面各区以及角部和边缘建筑物靠近建筑群中心的屋面角部区域极值风压均对建筑面积密度较为敏感,干扰因子随建筑面积密度增加而线性减小,比例系数接近-1.0,而角部建筑物和边缘建筑物中远离建筑群中心的屋面角部区域极值风压对建筑面积密度并不敏感。
  • 叶继红, 孙虎跃
    建筑结构学报. 2018, 39(10): 11-20. https://doi.org/10.14006/j.jzjgxb.2018.10.002
    摘要 ( ) PDF全文 ( )   可视化   收藏
    基于大跨平屋盖和马鞍屋盖风洞测压试验,利用面积时程法得到全风向下屋盖最不利局部体型系数,并将计算结果与我国GB 50009—2012《建筑结构荷载规范》进行对比分析,同时采用Davenport峰值因子法、Hermite矩模型理论,分别计算高斯区、非高斯区峰值因子,得到屋盖表面最不利峰值风压。结果表明:我国GB 50009—2012中关于围护结构局部体型系数的规定不尽合理,在屋盖迎风前缘拐角区域明显低估了风吸力;对于迎风前缘中部区域,规定的局部体型系数过于保守;对于屋盖的中心区域,采用单一系数低估了迎风拐角区域与中心区域交界处的体型系数。为此,基于风洞试验和理论计算结果,参考日本AIJ-2004,对两类屋盖的全风向最不利局部体型系数和峰值风压系数进行了分区界定并给出相应的建议值。
  • 王京学, 杨庆山, 刘敏, 张建
    建筑结构学报. 2018, 39(10): 21-28. https://doi.org/10.14006/j.jzjgxb.2018.10.003
    摘要 ( ) PDF全文 ( )   可视化   收藏
    屋顶光伏系统在强风或极端风气候中破坏的现象时有发生,其风荷载是主要控制荷载之一。为研究平屋盖及双坡屋盖光伏系统的风荷载特性,通过刚性模型测压试验,分析这两种典型屋盖光伏板上、下表面风压及净风压的风压特性,给出全风向角下最不利极值吸力随附属面积的衰减曲线,并与美国加州结构工程协会(SEAOC)制定的平屋盖光伏设计规范以及已有文献建议的光伏板净风压随面积的折减曲线进行了对比。结果表明:平屋盖上光伏板的最不利净风压极值吸力大于双坡屋盖,随附属面积增加而衰减加快;平屋盖上光伏板的净风压与SEAOC规范给出的净风压设计值较为接近;当附属面积较大时,已有研究建议的光伏板设计风荷载取值偏于保守。
  • 何宏明, 雷旭, 聂铭, 谢文平, 罗啸宇, 苏成
    建筑结构学报. 2018, 39(10): 29-36. https://doi.org/10.14006/j.jzjgxb.2018.10.004
    摘要 ( ) PDF全文 ( )   可视化   收藏
    为研究台风“海马”的近地面风场特性,在位于其登陆中心的观测塔离地高度位置20m和10m处安装了测风装置,分析了平均风速和风向、湍流强度、阵风因子、湍流积分尺度以及脉动风速功率谱密度等风场特征参数。结果表明:台风登陆前后的中心风速时程呈M形变化,平均风向角发生反向改变,不同高度的平均风速和风向角有所差异;湍流强度和阵风因子均在登陆时刻最大,20m和10m高度的湍流强度均值分别为0.26和0.31、阵风因子分别为1.73和1.89,均随高度和风速的增大而递减,其值较中国、美国和日本建筑规范的对应地貌规定值小,湍流强度和阵风因子关系的拟合结果相较经验公式偏大;台风经过期间的20m和10m高度处湍流积分尺度均值分别为136m和85m,随高度和风速的增大而增大,其随高度的变化趋势比美国和日本建筑规范对应地貌的结果更加明显;脉动风速功率谱密度随着风速和积分尺度的增大逐渐满足Kolmogrove-2/3律,实测结果与von Karman谱吻合较好。
  • 结构抗震专题
  • 叶昆, 骆江成, 朱宏平
    建筑结构学报. 2018, 39(10): 37-45. https://doi.org/10.14006/j.jzjgxb.2018.10.005
    摘要 ( ) PDF全文 ( )   可视化   收藏
    根据我国现行建筑抗震设计规范的要求,对基础隔震结构设计时采用将隔震层与上部结构分离计算的方法(即分离式方法),这种方法没有将设防地震作用下的水平向减震系数和罕遇地震作用下的隔震层水平变形这两方面的性能要求同时考虑,难以获得最优的隔震支座力学性能的需求参数以及用于上部结构设计的水平向减震系数。为此,以铅芯橡胶隔震支座(LRB)基础隔震结构为研究对象,采用两自由度体系的简化模型,基于等效线性化和振型分解反应谱法推导了LRB基础隔震系统力学性能参数与水平向减震系数、隔震层最大水平变形之间的简化公式,参数分析中发现,存在一个临界屈服强度比(即铅芯屈服剪力与LRB基础隔震结构总重力的比值)使得水平向减震系数取得最小值,而且当取值大于该临界屈服强度比时,水平向减震系数和隔震层最大水平变形这两个性能指标相互矛盾,无法同时取得最优解,为此将优化目标取为两性能目标的线性组合,从而确定最优屈服强度比,并根据最优屈服强度比所对应的水平向减震系数进行上部结构设计,从而建立面向多级性能设防目标的LRB基础隔震结构优化设计方法。算例分析表明,按照上述优化设计方法所得到的水平向减震系数和隔震层最大水平变形与时程分析结果基本相符,说明该方法合理可行。通过对比分析认为,采用面向多级性能设防目标的优化设计方法所设计的LRB基础隔震结构即使在巨震作用下也具有良好的抗震性能。
  • 潘鹏, 王海深, 郭海山, 刘康, 王冬雁, 齐虎, 耿娇
    建筑结构学报. 2018, 39(10): 46-55. https://doi.org/10.14006/j.jzjgxb.2018.10.006
    摘要 ( ) PDF全文 ( )   可视化   收藏
    为研究后张无黏结预应力干式装配梁柱节点在低周往复荷载作用下的抗震性能,对其进行了拟静力试验研究。试验中设计了2个常规现浇梁柱节点和4个装配式梁柱节点,包含中节点和边节点。对比分析了现浇节点和装配节点滞回性能、刚度、承载能力以及变形能力差异。试验结果表明:试验中设计的后张无黏结预应力装配式梁柱节点试件在初始刚度、承载能力、变形能力以及损伤控制等方面均优于传统的现浇节点试件,耗能能力略低;进一步研究了后穿耗能钢筋无黏结段位置对装配节点性能的影响,认为后穿耗能钢筋无黏结段设置在柱外时,装配节点呈现更高的耗能能力和变形能力;装配式节点预应力钢绞线在1/20大位移角下仍能保持弹性,梁柱接触面基本无摩擦滑移,该类装配式节点具有良好的整体性和安全性。
  • 陈文, 熊峰, 陈江, 冯波, 王威
    建筑结构学报. 2018, 39(10): 56-64. https://doi.org/10.14006/j.jzjgxb.2018.10.007
    摘要 ( ) PDF全文 ( )   可视化   收藏
    为研究干式连接装配式墙体结构(prefabricated panel structure by dry connectors,PPSDC)的抗震性能,设计了两栋1/2缩尺、二层PPSDC试验模型,分别采用螺栓连接方案和焊接连接方案,对其进行拟静力试验研究。分析其传力机理、破坏模式、滞回性能、骨架曲线及其特征点参数以及钢筋应变等,提出PPSDC的延性破坏概念和延性节点设计原则。试验结果表明:螺栓连接和焊接连接的PPSDC试验模型均具有较好的整体性和较高的承载能力;其破坏模式和破坏特征与现浇结构或等同现浇的装配式结构有明显不同,两个模型分别因底部节点区的混凝土冲切破坏和钢预埋件锚固破坏而失效;设计时应遵循“强锚固、强周边、弱钢板”的延性干式节点设计原则,选择钢连接件的连接钢板作为主要耗能部件和最薄弱环节,控制干式节点区域不同部位的破坏顺序,保证结构具有足够的延性和变形能力。
  • 卢亦焱, 易斯, 李杉, 张学朋
    建筑结构学报. 2018, 39(10): 65-74. https://doi.org/10.14006/j.jzjgxb.2018.10.008
    摘要 ( ) PDF全文 ( )   可视化   收藏
    通过8个圆钢管自密实混凝土加固钢筋混凝土(RC)柱、1个增大截面法加固RC柱和1个未加固RC原柱的低周反复加载试验,观察各柱的破坏过程,分析了其滞回曲线、骨架曲线、延性、耗能能力、刚度和承载力退化等,并研究了不同加固方式、轴压比、钢管壁厚、后浇混凝土强度对圆钢管自密实混凝土加固RC柱抗震性能的影响。结果表明:采用圆钢管自密实混凝土加固RC柱,加固部分与原柱之间协同工作性能良好,柱的破坏过程和破坏形态与普通钢管混凝土柱相似,滞回曲线饱满,转角延性系数均大于3.32,各项抗震性能指标均能满足现有的抗震性能要求,且其抗震性能优于增大截面法加固RC柱的抗震性能。在试验设计的参数变化范围内,随着轴压比的增大,圆钢管自密实混凝土加固柱的承载力和耗能能力提高,但延性降低,刚度和承载力退化变快;随着钢管壁厚的增大,圆钢管自密实混凝土加固柱的承载力、延性和耗能能力等都有显著提高,刚度退化变缓;随着后浇混凝土强度的提高,圆钢管自密实混凝土加固柱的承载力提高,但延性明显降低。
  • 王威, 张龙旭, 苏三庆, 李艳超, 高敬宇, 李元刚
    建筑结构学报. 2018, 39(10): 75-84. https://doi.org/10.14006/j.jzjgxb.2018.10.009
    摘要 ( ) PDF全文 ( )   可视化   收藏
    为研究波形钢板-混凝土组合剪力墙的抗震性能,完成了竖向波形钢板-混凝土组合剪力墙、水平波形钢板-混凝土组合剪力墙以及平钢板-混凝土组合剪力墙拟静力试验,研究了波形钢板-混凝土组合剪力墙在低周往复荷载作用下的变形能力和破坏模式,分析了荷载-位移滞回曲线、骨架曲线、各阶段特征荷载和位移值等,以及结构的破坏特征、变形和耗能能力、刚度和承载力退化。试验结果表明:波形钢板-混凝土组合剪力墙具有较大的抗侧刚度、较好的延性和耗能能力;与平钢板-混凝土组合剪力墙相比,波形钢板-混凝土组合剪力墙有较好的界面黏结性能,而平钢板-混凝土剪力墙由钢板变形引起的混凝土剥落严重;波形钢板-混凝土组合剪力墙的初始刚度较平钢板-混凝土组合剪力墙的高,竖向波形钢板-混凝土组合剪力墙的承载力和极限位移较水平波形钢板-混凝土组合剪力墙的高,波形钢板-混凝土组合剪力墙的承载力退化和刚度退化比平钢板-混凝土组合剪力墙的慢,表现出较好的受力性能。采用ABAQUS有限元软件可以较好地模拟试验,有限元分析结果表明,波形钢板的应力分布比较均匀,组合作用效应明显,适合在抗震结构中采用。
  • 金属结构
  • 董石麟, 涂源
    建筑结构学报. 2018, 39(10): 85-92. https://doi.org/10.14006/j.jzjgxb.2018.10.010
    摘要 ( ) PDF全文 ( )   可视化   收藏
    我国自2009年开始建有跨度20 m左右的索穹顶,至2016年已建成跨度超百米的索穹顶结构。但回顾国内外所建成的该类空间结构,均属于传统Fuller构想张拉整体类索穹顶。其上、下弦节点只有1根垂直于水平面的撑杆,形式比较单一,如肋环型索穹顶,上弦节点的环向水平刚度较差。为此,提出了Fuller构想单撑杆(不垂直于水平面)类索穹顶,有利于增加结构跨度。并进一步提出了非Fuller构想多撑杆(下弦节点可设置2根、3根、4根撑杆)类索穹顶。这不仅可改善结构传力性能,而且又能减少斜杆(斜索)和环索数量,方便施工张拉成形。若采用多种撑杆(包括单撑杆)且多种方式设置,当上弦选用径向布置时可归纳称之为肋环系列索穹顶,当上弦选用葵花布置时可归纳称之为葵花系列索穹顶。由肋环系列索穹顶和葵花系列索穹顶可构成多种组合形式索穹顶。研究丰富了索穹顶结构形式、体系和类型,为索穹顶的设计和选型提供了新思路、新空间。
  • 赵金友, 孙阔
    建筑结构学报. 2018, 39(10): 93-102. https://doi.org/10.14006/j.jzjgxb.2018.10.011
    摘要 ( ) PDF全文 ( )   可视化   收藏
    为了研究腹板开孔冷弯薄壁槽钢梁的屈曲性能和完善直接强度法,对开孔数量、卷边长度不同的冷弯薄壁槽钢梁进行了纯弯试验研究,其中长卷边和短卷边试件各8个,每种卷边的试件分别在腹板开设0、1、2、3个100mm×40mm的矩形孔洞。试验结果表明:腹板开孔使试件破坏模式从单一的畸变屈曲或局部屈曲变为以畸变屈曲为主的畸变-局部相关屈曲或以局部屈曲为主的局部-畸变相关屈曲;与未开孔钢梁相比,开孔钢梁的承载力有所降低,但开孔数量对钢梁承载力影响不大。采用ANSYS有限元程序对试验进行了模拟,模拟结果与试验结果吻合良好,验证了有限元分析此类开孔构件的可行性。进而开展了有限元参数分析,验证了基于折减腹板厚度法利用有限条程序CUFSM求解腹板开孔冷弯薄壁槽钢梁弹性畸变屈曲临界应力的准确性,并对此类构件的弹性局部屈曲临界应力计算公式进行了修正。基于腹板开孔冷弯薄壁槽钢梁的试验结果、有限元分析结果以及弹性屈曲临界应力求解方法,得到了此类构件在以畸变屈曲为主和以局部屈曲为主破坏模式下的直接强度法修正公式。
  • 牟犇, 李茜, 王燕, 白涌滔, 宁宁
    建筑结构学报. 2018, 39(10): 103-111. https://doi.org/10.14006/j.jzjgxb.2018.10.012
    摘要 ( ) PDF全文 ( )   可视化   收藏
    在外加强环不等高H型钢梁-方钢管柱节点抗震性能试验研究的基础上,采用有限元分析软件ABAQUS,建立了考虑不同参数影响的三维实体模型并进行了非线性有限元分析。三维实体模型分析得到的有限元结果与试验结果吻合良好,有限元模型能够较高精度地模拟节点的受力行为。研究表明:节点的破坏形式分为整体节点域剪切破坏和局部节点域剪切破坏两种;节点单侧框架柱端部弯矩增大系数是节点域形成不同破坏模式的重要控制参数,两种破坏模式的分界线是节点单侧框架柱端部弯矩增大系数约为0.92;方钢管柱的宽厚比是影响节点域屈服剪力和塑性剪力的主要因素,梁截面高度比对节点域受剪承载力影响较大,而节点域高宽比对节点域屈服剪力和塑性剪力影响并不明显。
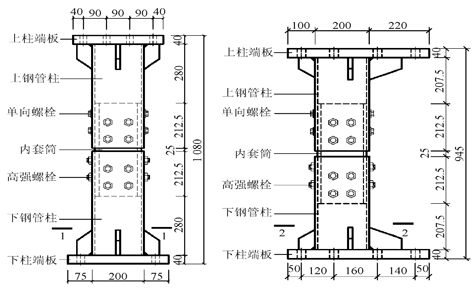
  • 刘康, 李国强, 孙建运, 刘玉姝, 陆烨, 杨晓杰
    建筑结构学报. 2018, 39(10): 112-121. https://doi.org/10.14006/j.jzjgxb.2018.10.013
    摘要 ( ) PDF全文 ( )   可视化   收藏
    对于方钢管柱-柱螺栓拼接节点,以内套筒作为连接件,以高强螺栓、单向螺栓和对穿螺栓作为紧固件。为研究节点在轴心和偏心压力作用下的受力特性、承载能力和破坏方式,对3组共8个拼接节点分别进行了静力破坏试验研究。试验结果表明:在轴压作用下,螺栓群共同分担外部荷载;在偏压作用下,节点的受弯能力可视为螺栓群和扛-撬作用贡献的线性叠加。基于此提出了节点设计公式。总体上,这两种节点形式安全可靠,但因存在螺栓滑移,适用于承受静力荷载和间接承受动力荷载的连接。
  • 木结构
  • 熊海贝, 王洁, 吴玲, 陈琳
    建筑结构学报. 2018, 39(10): 122-129. https://doi.org/10.14006/j.jzjgxb.2018.10.014
    摘要 ( ) PDF全文 ( )   可视化   收藏
    为研究穿斗式木结构的抗侧力性能,采用传统工艺和国产杉木,依据徽派建筑中木构架的制式,设计并制作了足尺穿斗式木结构模型。通过单调加载试验,研究了模型的水平承载能力、变形性能、抗侧刚度、榫卯节点和柱脚节点等抗侧力性能。结果表明:木构架最大层间位移角可达1/16,整体变形性良好;榫卯节点的受力过程经历了弹性阶段和塑性发展阶段,具有较好的转动能力;但木构架各柱的水平受力并不均匀,结构失效模式表现为个别柱脚滑移超过础石导致局部破坏。同时,榫卯连接传递弯矩能力较弱,多道穿枋、斗枋和地脚枋可有效加强结构的整体性。
  • 秦术杰, 杨娜, 胡浩然, 张雷
    建筑结构学报. 2018, 39(10): 130-137. https://doi.org/10.14006/j.jzjgxb.2018.10.015
    摘要 ( ) PDF全文 ( )   可视化   收藏
    古建筑木结构在历经几百年的服役后存在不同程度的残损,显著降低了结构的受力性能。为研究残损古建筑木结构的动力特性,选取北京故宫内具有明清古建筑特征的井亭木结构为研究对象。通过现场检测,确定结构的残损类型并分析残损原因,同时,采用环境激励法进行现场动力测试,获得结构的前3阶自振频率和振型。基于实测结果并考虑材料老化、立柱倾斜和柱脚糟朽等损伤因素,分别建立结构的完好和残损有限元模型,对其进行模态分析和地震响应计算。研究结果表明:由于重屋顶和关键节点的半刚性构造特征,木结构的自振频率相对较低;材料、构件和节点的残损降低结构刚度和自振频率;在地震动作用下,残损结构的柱脚水平反力小于完好模型,而其加速度和位移响应明显大于完好结构。
  • 综述评论
  • 卢亦焱
    建筑结构学报. 2018, 39(10): 138-146. https://doi.org/10.14006/j.jzjgxb.2018.10.016
    摘要 ( ) PDF全文 ( )   可视化   收藏
    纤维增强复合材料与钢材复合加固混凝土结构技术,结合了粘贴纤维增强复合材料(FRP)和外贴钢板加固混凝土结构两种技术,可有效改善混凝土结构的受力性能。总结近年来FRP与钢材复合加固混凝土梁、板和柱力学性能以及设计理论的研究进展,分析已有研究取得的成果和尚存的问题。分析表明:FRP与钢材复合加固技术能同时提高被加固构件的延性和承载力,有效解决了FRP加固技术的锚固问题,但关于FRP与钢材复合加固构件的力学性能、设计方法等有待深入研究。应进一步通过试验研究和有限元分析的方法,综合考虑二次受力、加固量等因素对FRP与钢材复合加固混凝土构件受力性能的影响,加固材料的设计取值、加固设计方法和FRP与钢复合材料耐久性研究等是今后关注的课题。
  • 基础理论与共性技术
  • 彭飞, 薛伟辰
    建筑结构学报. 2018, 39(10): 147-155. https://doi.org/10.14006/j.jzjgxb.2018.10.017
    摘要 ( ) PDF全文 ( )   可视化   收藏
    采用OpenSees有限元程序建立纤维增强复合材料(fiber-reinforced polymer,FRP)筋混凝土偏压柱非线性分析模型,通过已有试验结果验证了该模型的合理性。基于该模型开展了18 000根FRP筋混凝土(FRP-RC)偏压柱二阶效应的参数分析,主要参数包括材料强度、荷载偏心率、长细比、FRP筋类型和配筋方案等。分析结果表明,我国GB 50010—2010《混凝土结构设计规范》中钢筋混凝土偏压柱的弯矩增大系数低估了FRP-RC偏压柱的二阶效应。通过对参数分析结果的回归分析,得到了FRP-RC偏压柱的弯矩放大系数修正计算公式。此外,基于平衡条件和变形协调条件,推导了FRP-RC柱正截面承载力计算式。结合弯矩放大系数法和正截面承载力计算式,提出了FRP-RC偏压柱承载力计算方法。将收集的国内外43个FRP-RC偏压柱试件承载力试验值与该方法计算值进行了对比,二者吻合良好。
  • 吴香国, 张孝臣
    建筑结构学报. 2018, 39(10): 156-163. https://doi.org/10.14006/j.jzjgxb.2018.10.018
    摘要 ( ) PDF全文 ( )   可视化   收藏
    超高性能混凝土(UHPC)修复层与既有混凝土界面的黏结性能是影响修复加固效果的关键。为研究预制UHPC修复层与既有混凝土界面黏结短期性能,通过直剪试验和斜剪试验,分析了界面黏结材料、界面剪力键、混凝土强度、剪切角等对界面黏结强度及黏结滑移的影响;提出了预制UHPC修复层与既有混凝土界面的黏结滑移模型,并给出了黏结刚度建议值。结果表明:结构胶黏结试件的黏结强度较灌浆料黏结试件的强度高,在界面处设置剪力键可提高界面黏结强度;通过斜剪试验获得的界面黏结强度及黏结刚度均得到大幅提高。
  • 肖从真, 邓飞
    建筑结构学报. 2018, 39(10): 164-173. https://doi.org/10.14006/j.jzjgxb.2018.10.019
    摘要 ( ) PDF全文 ( )   可视化   收藏
    对于框架-核心筒结构,连梁抗弯刚度折减系数取值的大小会影响结构的抗侧刚度与地震响应,从而影响到地震作用在核心筒与框架之间的分配比例,最终将影响连梁的设计内力和配筋。首先改进了预设屈服模式设计方法,在一次设计后,通过设防烈度作用下的弹塑性分析,计算各连梁的实际抗弯刚度折减系数,并利用该系数对结构进行二次设计。通过对比罕遇地震下结构弹塑性性能,发现二次设计后,结构的最大基底剪力和最大层间位移角均有所减小,且剪力墙的损伤程度得到改善,而二次设计对结构的配筋量无显著影响。其次,探究连梁抗弯刚度折减系数初始值对设计结果的影响。计算表明,当连梁抗弯刚度折减系数初始值分别为0.7、0.6和0.5时,经过设防烈度地震作用下的弹塑性分析,各连梁抗弯刚度折减系数的计算值相差较小,二次设计后的配筋量亦较为接近,说明该设计方法受连梁抗弯刚度折减系数初始值的影响较小。最后,研究了改进的预设屈服模式设计方法的迭代收敛性,结果表明,连梁抗弯刚度折减系数的计算值随着迭代设计次数的增加而逐渐收敛于一系列稳定的值,并且该值与连梁抗弯刚度折减系数的初始值无关。通过计算发现,迭代设计的收敛性较快,一般进行两次迭代即可使连梁抗弯刚度折减系数的取值趋于稳定。