2018年, 第39卷, 第04期 刊出日期:2018-04-05
  

  • 全选
    |
    结构抗风专题
  • 张秉超, 全涌, 顾明
    建筑结构学报. 2018, 39(04): 1-7. https://doi.org/10.14006/j.jzjgxb.2018.04.001
    摘要 ( ) PDF全文 ( )   可视化   收藏
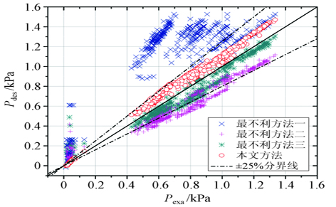
    对于围护结构的设计风荷载(一定重现期的极值风压),目前工程上普遍采用最不利值方法进行估算,这类方法不符合概率统计意义。只有统筹考虑极值风速和极值风压系数的随机性、方向性及相关性才能给出较为准确的设计风荷载。为此,提出一种全面考虑极值风速和极值风压系数随机性和方向性的围护结构设计风荷载概率估计方法。首先,提出了极值风压计算所需的三个要素,即各风向的极值风速分布、Cook-Mayne极值风压系数和风向相关性;然后,通过极值风压的概率分布理论分析,给出一个以上述三要素为输入的计算过程简便实用的围护结构风荷载估算公式;最后,以上海地区一栋高层建筑为例,通过与工程上常用最不利值方法相比,验证了本文方法的精确性和实用性。
  • 霍林生, 王银坤, 何锴, 李钢, 李宏男
    建筑结构学报. 2018, 39(04): 8-17. https://doi.org/10.14006/j.jzjgxb.2018.04.002
    摘要 ( ) PDF全文 ( )   可视化   收藏
    采用阻尼耗能抗风装置以减小强风对低矮双坡房屋的破坏,对无耗能抗风装置、设置有女儿墙及耗能抗风装置和仅有女儿墙3种屋面的村镇低矮房屋进行了风洞试验,以研究阻尼耗能抗风装置对低矮双坡屋面风压的影响。试验结果表明:耗能抗风装置对减小屋面的最不利负压效果明显,迎风屋面为主要破坏区域,如屋脊附近处、屋面与山墙接触边缘处等,平均负风压系数绝对值减小幅度可达50%;耗能抗风装置对于背风屋面的风压影响也较明显,平均负风压系数绝对值减小幅度最多可达15%。采用有限元软件对风场中低矮双坡屋面的风压进行了数值模拟,结果也表明阻尼耗能抗风装置可有效减小屋面负压。
  • 陈讷郁, 陈旭, 赵林, 葛耀君
    建筑结构学报. 2018, 39(04): 18-27. https://doi.org/10.14006/j.jzjgxb.2018.04.003
    摘要 ( ) PDF全文 ( )   可视化   收藏
    为研究钢结构冷却塔的抗风性能,以某超大型空间双曲面钢桁架冷却塔待建工程为研究对象,依据风洞试验实测了脉动风荷载数据,利用POD算法生成作用在冷却塔有限元计算模型上的风压时程,通过瞬态动力分析得到冷却塔位移响应,对比不同位置振动频率参与情况,获得了位移风振系数分布结果,并比较了结构阻尼比和质量分布对冷却塔风致行为的影响。研究结果表明:钢结构冷却塔1~4阶固有模态风振位移占主导地位,其中,位移风振系数沿环向在迎风侧(0°~40°)取值较小,介于1.70~2.12;在侧风向(40°~180°)取值较大,介于1.97~3.01;沿子午向位移风振系数随高度的增加而增大。结构总体风振系数随着阻尼比增量呈现递减趋势,随质量增量呈现递增趋势,位移风振系数分布形态相对固定。
  • 结构抗震专题
  • 郑山锁, 董立国, 左河山, 秦卿, 刘巍, 李强强
    建筑结构学报. 2018, 39(04): 28-36. https://doi.org/10.14006/j.jzjgxb.2018.04.004
    摘要 ( ) PDF全文 ( )   可视化   收藏
    通过人工气候环境模拟技术模拟近海大气环境,对6根剪跨比为5的RC框架柱试件进行了加速腐蚀,并对腐蚀后试件进行拟静力加载试验,研究不同钢筋锈蚀程度和轴压比对锈蚀RC框架柱承载能力、变形能力和耗能能力等抗震性能指标的影响。结果表明:锈蚀程度较严重的试件,加载过程中柱底部水平裂缝数量较少,裂缝之间的间距较大,裂缝宽度较宽;随锈蚀程度的增加,试件的承载力、变形能力和耗能能力均有不同程度的退化,由塑性铰区弯曲变形引起的柱顶水平位移占柱顶总水平位移的比例逐渐减小;当锈蚀程度相同时,随轴压比的增大,试件破坏形态由大偏心受压破坏转变为小偏心受压破坏,试件承载力先增大后减小,而变形能力和耗能能力逐渐减小,由塑性铰区弯曲变形引起的柱顶水平位移占柱顶总水平位移的比例呈下降趋势。
  • 薛建阳, 马林林, 林建鹏, 吴琨, 葛鸿鹏
    建筑结构学报. 2018, 39(04): 37-44. https://doi.org/10.14006/j.jzjgxb.2018.04.005
    摘要 ( ) PDF全文 ( )   可视化   收藏
    通过4个仿古建筑方钢管混凝土柱(CFST)与钢筋混凝土圆柱(RC)连接的低周反复加载试验,观察了试件在不同轴压比下的破坏形态,分析了试件的滞回曲线、骨架曲线、变形能力、耗能能力、刚度退化及承载力衰减等。试验结果表明:CFST-RC柱连接的破坏形态以弯曲破坏为主,且有一定的剪切破坏特征,CFST柱及RC柱根部均形成塑性铰,RC柱中、上部出现较为明显的剪切斜裂缝;滞回曲线较为饱满,刚度退化及承载力衰减较慢,破坏时试件的位移延性系数介于4.42~5.54之间,等效黏滞阻尼系数介于0.233~0.311之间,具有良好的变形及耗能性能。在试验设计的轴压比范围内,增大轴压比,试件的峰值荷载和延性提高;当轴压比相同时,随长细比增大,试件的峰值荷载和延性降低。
  • 任晓崧, 王显妤, 周彬, 孙华
    建筑结构学报. 2018, 39(04): 45-53. https://doi.org/10.14006/j.jzjgxb.2018.04.006
    摘要 ( ) PDF全文 ( )   可视化   收藏
    为满足砌体结构综合改造和提高结构抗震性能两个方面的实际工程需求,将原有砌体结构适当外扩,对外扩部分采用钢筋混凝土构件,从而形成后加钢筋混凝土-既有砌体的组合结构,而植筋连接能否保证新增混凝土构件与既有砌体构件的有效协同工作,是提高既有砌体结构抗震性能的关键。在已完成的小比例模型墙体水平低周反复荷载试验的基础上,设计了4片近足尺比例的纵向组合墙体模型,按照实际施工情况采用完全植筋的连接方式,进行水平低周反复荷载试验,对组合墙体的承载力、延性、滞回特性、耗能能力及破坏模式、混凝土构件的应变和钢筋的应变等进行分析。结果表明:纵向组合墙体具有良好的承载力、变形能力与协同工作能力,达到了原有墙体抗震加固的目标,说明完全植筋连接效果良好。
  • 赵花静, 李青宁, 姜维山, 张兴虎
    建筑结构学报. 2018, 39(04): 54-64. https://doi.org/10.14006/j.jzjgxb.2018.04.007
    摘要 ( ) PDF全文 ( )   可视化   收藏
    为改善高强混凝土剪力墙的变形能力,在剪力墙约束边缘构件内采用高强矩形螺旋箍筋替代传统箍筋,在墙体中采用高强矩形螺旋钢筋替代水平分布筋,设计了5个不同参数的高强螺旋钢筋约束高强混凝土剪力墙试件和1个普通钢筋混凝土剪力墙对比试件,对其进行拟静力试验。研究了轴压比、配箍特征值、配箍形式以及平均约束应力等因素对剪力墙承载力、延性和破坏形态的影响。结果表明:采用高强矩形螺旋钢筋嵌套形成的箍筋和水平分布筋,能够有效地约束高强混凝土的横向变形,提高高强混凝土剪力墙的承载力和延性,降低刚度和承载力退化,显著改善高轴压比下高强混凝土剪力墙的抗震性能。
  • 王晓燕, 卢文胜, 韩建平
    建筑结构学报. 2018, 39(04): 65-73. https://doi.org/10.14006/j.jzjgxb.2018.04.008
    摘要 ( ) PDF全文 ( )   可视化   收藏
    自复位钢板剪力墙(SC-SPSW)结构由后张预应力(PT)框架与钢板剪力墙组合而成,该类墙体由钢板剪力墙为结构提供抗侧刚度与耗能,由PT梁柱节点提供自复位力。基于ABAQUS有限元软件,采用壳单元模拟钢板剪力墙,分别建立了两层单跨和单层单跨SC-SPSW的数值模型。通过对比两层单跨SC-SPSW受力性能的数值模拟结果与试验结果,验证了该建模方法的有效性;通过改变钢板剪力墙的长度与厚度,对单层单跨 SC-SPSW的滞回性能、自复位能力、钢板剪力墙受力性能以及结构基底剪力进行了参数分析,分析了钢板剪力墙拉力带内力的分布与发展规律。结果表明:随着钢板剪力墙长度与厚度的增大,其受压承载力增大,对结构的自复位性能产生的不利影响越明显;钢板剪力墙长度对单层单跨SC-SPSW的PT框架承担剪力的影响可忽略;结构基底剪力与钢板剪力墙长度和厚度均成正比;该建模方法能够精细模拟SC-SPSW中钢板剪力墙的应力分布行为,可用于含有复杂钢板剪力墙构造的SC-SPSW建模分析。
  • 吴王平, 刘书贤, 刘书会, 魏晓刚, 王志强
    建筑结构学报. 2018, 39(04): 74-81. https://doi.org/10.14006/j.jzjgxb.2018.04.009
    摘要 ( ) PDF全文 ( )   可视化   收藏
    以某选煤厂钢筋混凝土输煤栈桥为研究对象,对其进行了现场自振频率实测,并采用ABAQUS软件建立了“栈桥桁架-框架柱”整体结构数值模型,基于结构实测振动频率对数值模型进行了修正。采用修正的数值模型分析研究了7度罕遇地震作用下大跨度输煤栈桥的抗震性能。测试与计算结果表明:采用该输煤栈桥模型进行弹塑性时程分析得到的数值模拟结果与实测结果较为一致,证明了该数值模型可信、高效;栈桥的框架柱是主要的抗震防线,其弹塑性水平振动位移相对较大,耗散了大量栈桥桥身桁架的地震能量,具有良好的变形与耗能能力;输煤栈桥桥身桁架具有较高的抗震承载能力,可抑制框架柱的侧向水平位移,且具有明显的复位作用,能够起到第二道抗震防线的作用;在7度罕遇地震作用下框架柱最大的弹塑性层间位移角为1/107,栈桥桁架最大的挠度与跨径的比值为1/1984,均满足相关规范的规定。研究结果表明该输煤栈桥具有良好的抗震性能,无需进行加固。
  • 混凝土及组合结构
  • 孟一, 易伟建, 黄方林
    建筑结构学报. 2018, 39(04): 82-90. https://doi.org/10.14006/j.jzjgxb.2018.04.010
    摘要 ( ) PDF全文 ( )   可视化   收藏
    为研究钢筋混凝土(RC)框架梁抗冲击特性,取其反弯点间子结构作为试验对象,采用铰支约束边界,对两组试验梁分别进行了落锤冲击加载和静力加载,利用LS-DYNA显式有限元程序对冲击试验进行了数值模拟,并对试验工况进行了扩展分析。结果表明:试验梁在冲击和静力加载下破坏特性差异显著,在冲击加载下,随冲击速度的增加,梁抗冲击特性逐渐由局部破坏所控制,多次冲击加载对梁损伤累积作用明显;在静力加载下,通过梁自身的大变形及开裂抵抗外部荷载,裂缝分布范围广而密集,且发展充分。试验结果和模拟结果均显示,在试验梁纵筋配筋率较低时,增加受拉区纵筋能显著改善RC梁的抗冲击性能,但随着配筋率的提高,梁抗冲击性能逐渐由局部破坏所控制,数值模拟结果表明,配筋率和抗冲击临界垮塌耗能间大致呈抛物线关系,通过与试验梁静力加载失效耗能对比,可以偏保守地取静力加载失效耗能的90%作为试验梁抗冲击垮塌临界耗能,用以评估其抗冲击性能。
  • 甘丹, 周绪红, 闫标, 韩凤丽, 刘界鹏
    建筑结构学报. 2018, 39(04): 91-101. https://doi.org/10.14006/j.jzjgxb.2018.04.011
    摘要 ( ) PDF全文 ( )   可视化   收藏
    针对钢管约束钢筋混凝土柱的构造及受力特点,提出了环筋式节点形式,并对该类节点的轴压及滞回性能进行了试验研究。通过对2个短柱及1个环筋式节点进行轴压试验,结果表明,节点的环筋可有效限制试件剪切变形开展,其承载力及延性均优于发生剪切破坏的对比短柱试件。通过对1个常规节点及2个环筋式节点进行滞回性能试验研究,结果表明,节点区钢筋用量相当的条件下,常规节点发生节点区剪切破坏;环筋式节点可有效约束包括混凝土保护层在内的整个节点区域,对节点核心区混凝土的利用更充分,受力更为合理,发生梁端破坏,可满足“强节点弱构件”的抗震要求。
  • 徐金俊, 陈宗平, 薛建阳
    建筑结构学报. 2018, 39(04): 102-109. https://doi.org/10.14006/j.jzjgxb.2018.04.012
    摘要 ( ) PDF全文 ( )   可视化   收藏
    为建立型钢混凝土T形柱框架边节点开裂剪力计算模型,对按“弱节点”设计的10个型钢混凝土T形柱-钢梁空间边节点进行低周反复荷载试验,获取了节点核心区的开裂模式及剪切裂缝的开裂部位。采用叠加原理和弹性理论对型钢混凝土T形柱框架边节点开裂剪力进行分析;基于截面置换法,将实腹式配钢节点核心区型钢腹板的抗剪贡献计入计算模型。研究结果表明:型钢混凝土T形柱-钢梁空间边节点最初于型钢的混凝土保护层出现竖向黏结裂缝;之后,于核心区柱肢面上出现剪切裂缝,其首条斜裂缝的产生部位与加载角度有关,加载角不超过45°时,剪切裂缝最先出现于腹板上,加载角在45°时,剪切裂缝在腹板和翼缘出现的概率一致,加载角为60°时,剪切裂缝最先出现在翼缘上。当加载角在0°~45°以及45°~90°时,T形柱框架空间边节点的开裂剪力验算肢分别以核心区腹板和核心区翼缘为主。无论是叠加原理还是弹性理论,所计算的开裂剪力均大于试验值;相比于实用性更强的叠加原理,弹性理论的计算值更加接近试验结果。
  • 石宇, 周绪红, 管宇, 程睿
    建筑结构学报. 2018, 39(04): 110-118. https://doi.org/10.14006/j.jzjgxb.2018.04.013
    摘要 ( ) PDF全文 ( )   可视化   收藏
    为研究冷弯薄壁型钢组合楼盖的平面内滞回性能,对不同楼面板类型的压型钢板组合楼盖、压型钢板-石膏基自流平砂浆组合楼盖和设置钢丝网的压型钢板-石膏基自流平砂浆组合楼盖足尺模型进行了平面内循环往复加载试验,分析了组合楼盖的破坏形式、承载能力和延性等。试验结果表明:冷弯薄壁型钢组合楼盖最终破坏都表现为固定边梁与压型钢板之间的自攻螺钉连接破坏,而石膏基自流平砂浆楼面板和中间楼盖梁发生微小破坏。三个组合楼盖均表现出较好的平面内受力性能,具有良好的面内承载力和刚度、耗能性能、延性等,冷弯薄壁型钢-石膏基自流平砂浆组合楼盖的整体工作性能良好。采用钢丝网构造有助于提高楼盖的面内刚度以及组合楼板的黏结性能和抗裂性能,但对楼盖的延性会有不利影响。
  • 基础理论与共性技术
  • 郑文忠, 苗天鸣, 王识宇, 王英
    建筑结构学报. 2018, 39(04): 119-129. https://doi.org/10.14006/j.jzjgxb.2018.04.014
    摘要 ( ) PDF全文 ( )   可视化   收藏
    为研究带锚固板高强热轧钢筋(HRB500、HRB600)与混凝土之间的黏结性能,设计了24组共120个试件,对其进行拉拔试验。试件主要变化参数为钢筋公称直径、钢筋屈服强度、钢筋的锚固长度、混凝土强度。通过在纵肋一侧槽底面粘贴应变片(间距为30mm)的实测值,获得了各级荷载下拉拔力在锚固段钢筋黏结力和端部锚固板承压力间的分配。基于试验结果,分析了钢筋锚固板的锚固长度与钢筋公称直径之比和钢筋屈服强度与混凝土抗拉强度之比对钢筋屈服时拉拔力在钢筋锚固段黏结力和端部锚固板承压力间的分配影响。试验结果表明,锚固板承压力与加载端钢筋屈服力的比值随钢筋锚固板的锚固长度与钢筋公称直径之比的增加、随钢筋强度与混凝土抗拉强度之比的减小而线性减小。基于试验结果,拟合得到了以两个影响因素为自变量的计算公式。
  • 高丹盈, 房栋, 谷泓学
    建筑结构学报. 2018, 39(04): 130-139. https://doi.org/10.14006/j.jzjgxb.2018.04.015
    摘要 ( ) PDF全文 ( )   可视化   收藏
    GFRP-钢绞线复合筋不仅抗拉强度高、耐腐蚀性好、质量小,同时具有较高的弹性模量。复合筋的高强度能否得到充分发挥,一定程度上取决于其与混凝土的黏结性能。通过15组黏结试件的拉拔试验,分析对比筋材类型、直径、钢绞线体积率、保护层厚度和混凝土强度对FRP筋与混凝土黏结强度及破坏形态的影响。结果表明:复合筋与混凝土黏结强度较GFRP筋与混凝土黏结强度有一定的提高,且随着钢绞线体积率的增加而增大,但仍低于钢筋与混凝土的黏结强度;随着保护层厚度的增加,复合筋与混凝土黏结强度逐渐增大,试件的破坏形态由混凝土劈裂转为筋材拔出;混凝土强度的提高对黏结强度的增强作用较为显著。在试验的基础上,将筋材周围的混凝土作为带裂缝的弹性体,并考虑开裂部分混凝土的残余强度,根据混凝土环向应力的分布,建立了筋材与混凝土最大黏结应力计算模型。根据该计算模型和试验结果,引入黏结应力分布系数,建立了带肋FRP筋与混凝土黏结强度的计算方法,黏结强度计算值与试验值吻合较好。
  • 徐礼华, 李彪, 池寅, 黄彪, 李长宁, 时豫川
    建筑结构学报. 2018, 39(04): 140-152. https://doi.org/10.14006/j.jzjgxb.2018.04.016
    摘要 ( ) PDF全文 ( )   可视化   收藏
    为研究钢-聚丙烯混杂纤维混凝土的力学行为,对48个混凝土试件进行了单轴循环受压试验,分析纤维种类、体积掺量和长径比等因素对受压应力-应变全曲线的影响。研究结果表明:混杂纤维混凝土试件循环受压破坏呈现明显的延性特征;混杂纤维的掺入可显著改善混凝土循环力学行为,表现为混凝土峰值应力高、延性好、滞回耗能能力强、性能退化程度低等;混杂纤维对混凝土塑性应变累积具有明显约束作用;与普通混凝土相比,混杂纤维混凝土的刚度退化较慢,受纤维特征参数的影响不明显;纤维对混凝土应力退化影响较小,可忽略不计。基于试验结果以及其他相关文献的试验数据,建立了钢-聚丙烯混杂纤维混凝土单轴循环受压应力-应变关系全曲线方程,计算结果与试验结果吻合良好。
  • 郭远新, 李秋义, 岳公冰, 李倩倩
    建筑结构学报. 2018, 39(04): 153-159. https://doi.org/10.14006/j.jzjgxb.2018.04.017
    摘要 ( ) PDF全文 ( )   可视化   收藏
    再生混凝土的粗骨料表面存在硬化砂浆和大量的界面结构,致使其抗压强度较普通混凝土的有所降低,且受压破坏情况更为复杂。为建立一个普遍适用的再生粗骨料混凝土抗压强度计算公式,试验中采用不同再生粗骨料品质、不同取代率的再生混凝土,研究了胶水比、再生粗骨料的品质和取代率对再生混凝土抗压强度的影响,并分析了再生粗骨料吸水率、表观密度和压碎指标等品质特征参数和其影响因子的相关性。在普通混凝土Bolomey抗压强度公式的基础上,建立了考虑骨料品质和取代率的再生粗骨料混凝土抗压强度计算公式,并与常用的抗压强度计算公式的计算结果进行了误差比较。研究结果表明:再生粗骨料混凝土抗压强度与胶水比、取代率之间均呈线性关系,并且再生粗骨料的品质对再生混凝土抗压强度影响显著;误差分析表明,与试验结果相比,普通混凝土Bolomey抗压强度公式的最大误差约为16.51%,考虑有效胶水比的再生粗骨料混凝土抗压强度的最大误差约为36.33%,而考虑再生粗骨料品质差异和取代率的再生混凝土抗压强度的最大误差仅为4.90%,具有较高的精度和较好的适用性。
  • 马瑞嘉, 马人乐
    建筑结构学报. 2018, 39(04): 160-166. https://doi.org/10.14006/j.jzjgxb.2018.04.018
    摘要 ( ) PDF全文 ( )   可视化   收藏
    张拉整体高耸结构是一种新型结构体系,是张拉整体在竖直方向上的应用,目前尚未有功能性结构建成。针对一座电视塔的张拉整体高耸结构,采用改进的遗传算法和三级混合算法,依靠有限元分析对结构进行了优化设计。改进的遗传算法能够识别迭代过程中松弛的索,通过自动调整对应编码区的变异率来避免索的松弛,采用非线性求解器对结构的侧向刚度进行优化;三级混合算法包含了模式搜索法、单纯形法和齿行法,采用线性求解器对结构的侧向刚度和自重进行了联合优化,提高侧向刚度的同时减小自重。优化结果表明:这两种优化算法都能够在预应力水平基本不变的情况下大幅提高结构侧向刚度,优化效果良好。
  • 阳洋, 吕良, 李建雷, 尹涛
    建筑结构学报. 2018, 39(04): 167-173. https://doi.org/10.14006/j.jzjgxb.2018.04.019
    摘要 ( ) PDF全文 ( )   可视化   收藏
    以位移统计矩理论为基础,对钢筋混凝土框架振动台结构进行损伤识别。采用位移四阶统计矩作为损伤指标,利用模型修正的方法对平面框架结构进行损伤识别,然后利用概率密度演化理论,对考虑阻尼比为不确定性参数的随机结构进行损伤识别,采用损伤程度的概率密度函数进行损伤判别。通过振动台试验数据对建立的理论分析模型进行模型验证,选取3个典型工况进行确定性分析研究,进一步对试验中前20个工况进行损伤识别。在此基础上,对所选取的3个典型工况进行了不确定因素分析,并将识别结果与试验中不同工况下的损伤情况进行对比。结果表明,利用确定性和不确定性损伤识别理论对钢筋混凝土结构进行损伤识别可行、有效。